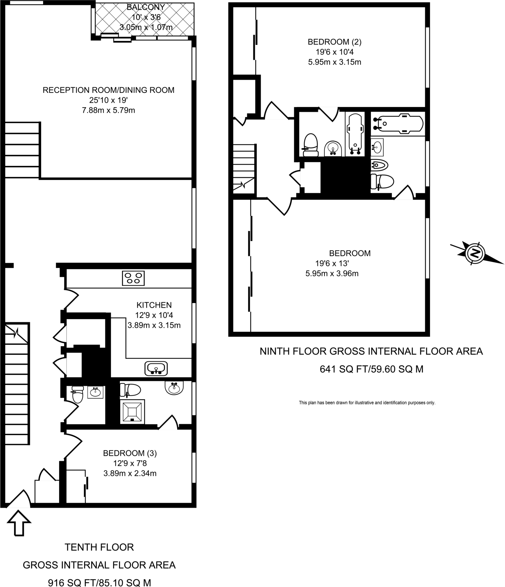
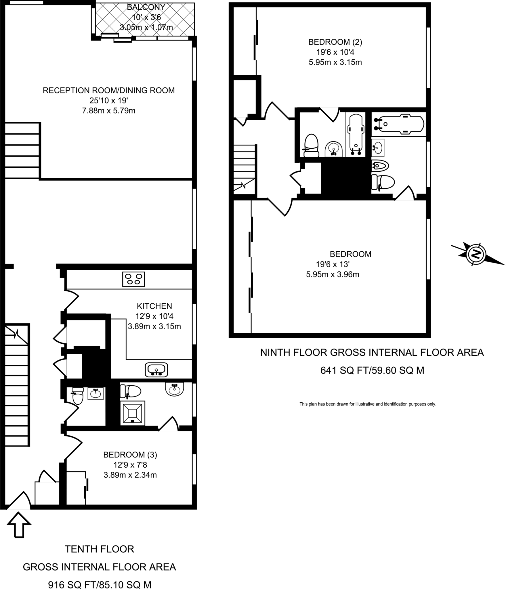
Three en-suite bedrooms, balcony and generous reception in central W2 location.
Large duplex apartment over ninth and tenth floors, 1,557 sq ft
Set across the ninth and tenth floors, this large three-bedroom duplex in W2 offers generous living space and city views. The reception and dining room are roomy and light-filled, opening onto a private balcony — useful for fresh air and outdoor seating. Each bedroom benefits from its own en-suite, providing practical privacy for family life or sharable occupancy.
Accommodation includes a modern fitted kitchen with appliances and a good overall footprint of 1,557 sq ft, giving scope for flexible layouts and storage. Built in the late 1970s on a system-built structure, the building has double glazing but some fabric and insulation details are assumed rather than confirmed. The property is leasehold with 149 years remaining, so long lease security is in place.
Buyers should note clear negatives alongside the positives. The annual service charge is reported as £18,800 — extremely expensive and a major ongoing cost. Crime levels in the area are above average and heating is electric boiler and radiators, which can be costlier than gas. Some finishes (for example carpeting in places) appear dated and the flat may suit buyers prepared to update certain elements.
Positioned moments from Edgware Road, Praed Street and close to Baker Street, the flat has excellent transport options and fast broadband for home-working. Local schools include strong state and independent choices, making this a practical central family base for those who can accommodate the service charge and urban living trade-offs.
3 bedroom flat for sale in Park West, Hyde Park Estate, London, W2 — £700,000 • 3 bed • 2 bath • 1090 ft²
3 bedroom flat for sale in The Quadrangle, Hyde Park Estate, London, W2 — £1,500,000 • 3 bed • 3 bath • 1862 ft²
3 bedroom flat for sale in Lancaster Gate, Lancaster Gate, London, W2 — £2,950,000 • 3 bed • 2 bath • 2391 ft²
3 bedroom flat for sale in South Wharf Road, Paddington, London, W2 — £1,300,000 • 3 bed • 2 bath • 1277 ft²
4 bedroom flat for sale in Praed Street, Paddington, London, W2 — £1,650,000 • 4 bed • 3 bath • 1584 ft²
3 bedroom flat for sale in Chepstow Villas, Notting Hill, London, W11 — £1,450,000 • 3 bed • 2 bath • 1177 ft²






























































































