Bright, well-sized flat near Hyde Park and excellent transport links.
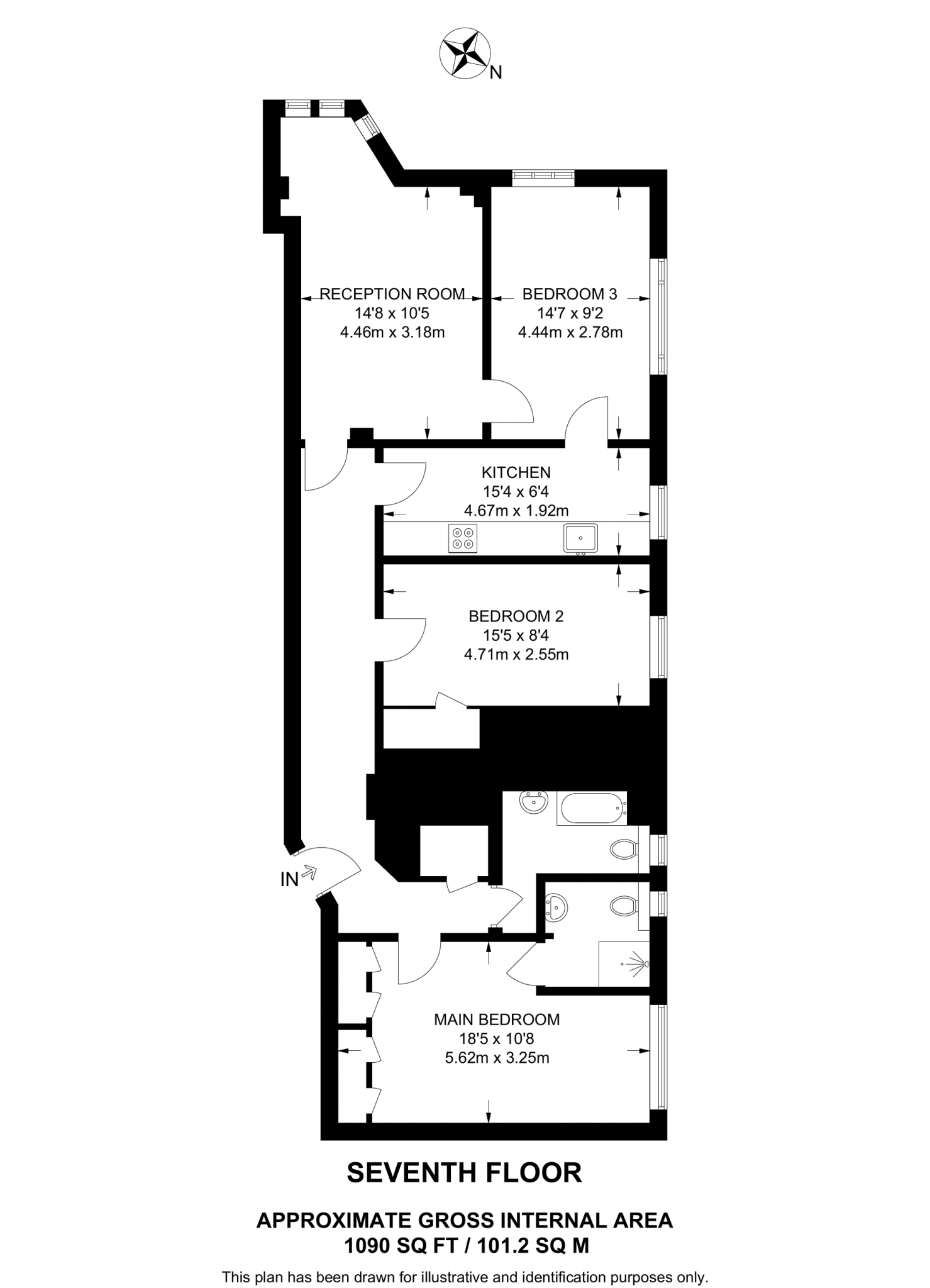
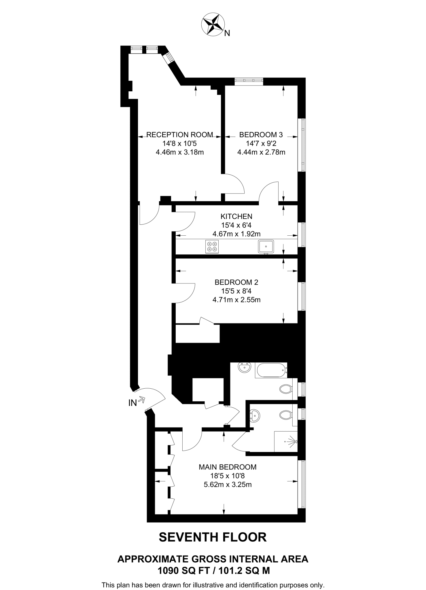
Approximately 1,090 sq ft — larger-than-average central London flat
This well-sized three-bedroom flat offers roomy living in a central W2 location close to Marble Arch, Hyde Park and Edgware Road amenities. The reception room provides dining space and city views, while a modern fitted kitchen and two bathrooms (one en suite) make the layout practical for family life or sharers.
The property sits within a secure building and benefits from a long lease (168 years) and a generous internal area of about 1,090 sq ft — uncommon for central London flats and useful for flexible living arrangements. Local transport links are excellent and a wide choice of state and independent schools is within easy reach.
There are a number of material factors to note. The building operates a community heating scheme and the glazing is secondary only. Service charges are high at £10,500 per year, and local crime levels are reported above average. The wider area is classified as deprived despite strong local amenities. Prospective buyers should verify the flat’s floor level, which is described inconsistently in supplied information.
This flat suits buyers seeking central space and convenience — families wanting nearby schooling and park access, professionals needing transport links, or investors aware of the service charge and local social indicators. The long lease and substantial square footage give scope for comfortable living or rental potential, provided the running costs and local considerations are acceptable.
3 bedroom flat for sale in Forset Court, W2 — £925,000 • 3 bed • 2 bath • 746 ft²
3 bedroom flat for sale in Albion Street, Hyde Park Estate, London, W2 — £2,275,000 • 3 bed • 2 bath • 1435 ft²
3 bedroom flat for sale in Park West, EDGWARE ROAD, London, W2 — £975,000 • 3 bed • 2 bath • 1038 ft²
3 bedroom flat for sale in Water Gardens, Hyde Park Estate, London, W2 — £1,700,000 • 3 bed • 3 bath • 1557 ft²
3 bedroom flat for sale in Queensway, Bayswater, London, W2 — £1,000,000 • 3 bed • 2 bath • 818 ft²
3 bedroom flat for sale in Stourcliffe Close, Marylebone, London, W1H — £995,000 • 3 bed • 2 bath • 1050 ft²






















































































