Moments from Hyde Park, expansive rooms and elegant period character for families.
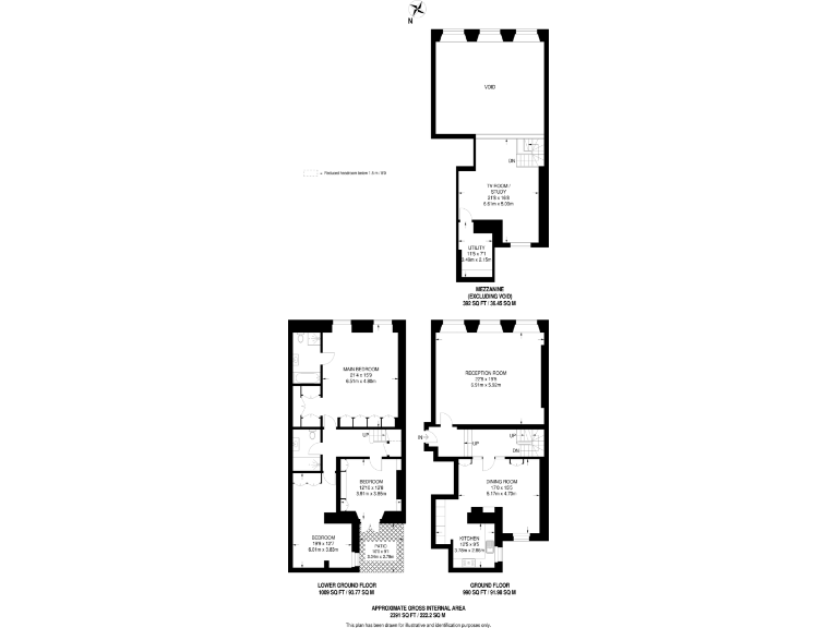
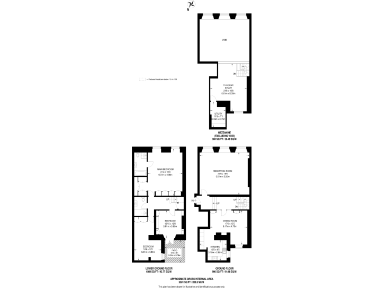
Extremely large 2,391 sqft three-bedroom duplex, generous entertaining space
Set within a handsome period conversion moments from Hyde Park, this exceptionally large three-bedroom duplex delivers generous living and entertaining space across an expansive lower-ground layout. High ceilings and large windows create an airy, elegant atmosphere, while a beautifully finished modern kitchen with integrated appliances sits at the heart of the home.
The principal bedroom benefits from built-in wardrobes and an en suite, with a second bathroom serving two further bedrooms—making the home practical for family life or for owners who frequently host. The building’s impressive entrance hall and staircase add period character and a strong sense of arrival.
Practical strengths include an extremely long lease and share of freehold, fast broadband, and excellent mobile signal. Transport links are strong and a wide range of shops, cafes and schools—including several rated Good—are within easy reach. Hyde Park and West End amenities are immediately accessible for leisure and commuting.
Buyers should note the property’s lower-ground/multi-level layout requires navigation of internal stairs and may feel different to a conventional flat on a single level. Local crime statistics are higher than average for the area—an important consideration for families or those for whom security is paramount. Overall, the apartment offers substantial space and period charm in a coveted central location, suited to buyers seeking roomy, characterful living close to green space and city amenities.
3 bedroom flat for sale in Lancaster Gate,
Lancaster Gate, W2 — £2,350,000 • 3 bed • 2 bath • 1650 ft²
3 bedroom flat for sale in Lancaster Gate, Lancaster Gate, London, W2 — £2,900,000 • 3 bed • 3 bath • 1616 ft²
4 bedroom apartment for sale in Lancaster Gate, London, W2 — £2,750,000 • 4 bed • 3 bath • 2020 ft²
3 bedroom flat for sale in Lancaster Gate, Bayswater, London, W2, United Kingdom, W2 — £5,695,000 • 3 bed • 4 bath • 2690 ft²
3 bedroom flat for sale in Lancaster Gate London, Bayswater, London, W2, United Kingdom, W2 — £7,450,000 • 3 bed • 3 bath • 2000 ft²
3 bedroom flat for sale in Lancaster Gate, Notting Hill, W2 — £2,350,000 • 3 bed • 2 bath • 1650 ft²


























































































































































































































































































































































































































































































































