**Standout Features:**
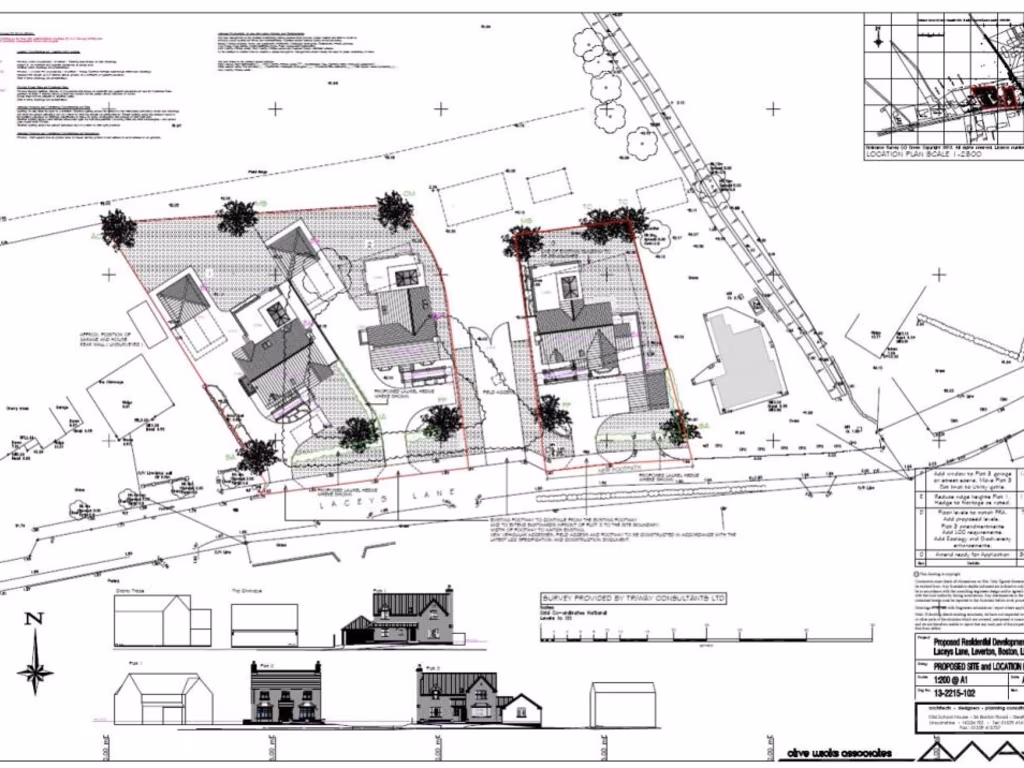
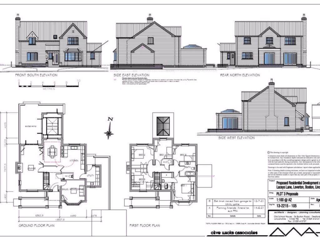
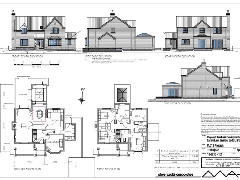
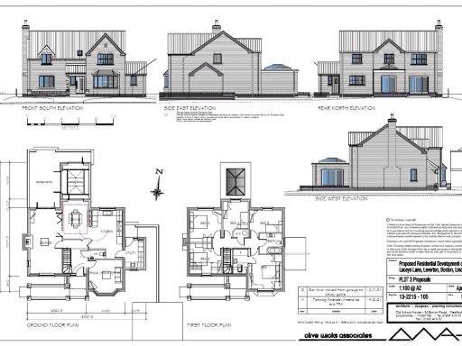
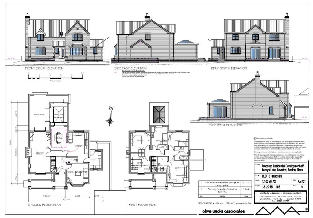
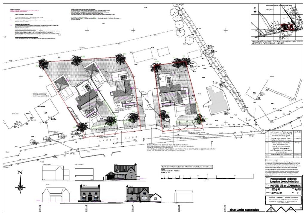
- **Full Planning Permission:** Granted for three detached two-storey homes (2 x 4-bedroom and 1 x 5-bedroom) with double garages.
- **Spacious Plot:** Approximately 0.56 acres, offering ample space for development.
- **Village Location:** Situated in the quaint village of Leverton, a peaceful rural setting near the market town of Boston.
- **Amenities Nearby:** Local shop, post office, village hall, church, and fire station within close proximity.
- **Low Crime Area:** A very safe neighborhood, enhancing the appeal for families.
**Summary:**
Discover a valuable residential development opportunity in the charming village of Leverton, Boston. This generous 0.56-acre plot comes with full planning permission for three executive detached homes, each equipped with double garages—perfect for investors or builders looking to make a mark in the ever-growing market. The proposed builds include two 4-bedroom homes and one spacious 5-bedroom residence.
Set against a backdrop of low crime and rural tranquility, this land is conveniently positioned near essential amenities and excellent schools rated "Good" by Ofsted. While the connectivity for broadband is currently slow and mobile service is average, the overall potential for high-demand residential living in this area remains strong. Seize this unique chance to create an exclusive community in Leverton—opportunities like this are rare and may not last long!
Land for sale in West End Road, Wyberton, Boston, Lincolnshire, PE21 — £320,000 • 1 bed • 1 bath • 3704 ft²
Residential development for sale in Tattershall Road, Boston, Lincolnshire, PE21 9LF, PE21 — £70,000 • 1 bed • 1 bath • 8712 ft²
Land for sale in Wyberton, Boston (Lincolnshire), PE21 — £995,000 • 1 bed • 1 bath • 4029 ft²
Land for sale in Station Road, Hubberts Bridge, Boston, PE20 — £75,000 • 1 bed • 1 bath
Commercial property for sale in West End Road, Wyberton, Boston, PE21 — £225,000 • 1 bed • 1 bath
Plot for sale in Robin Hoods Walk, Boston, Lincolnshire, PE21 9EP, PE21 — £240,000 • 1 bed • 1 bath


















































