**Standout Features:**
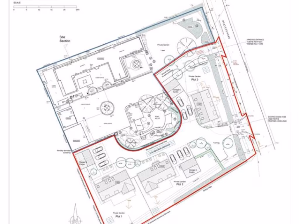
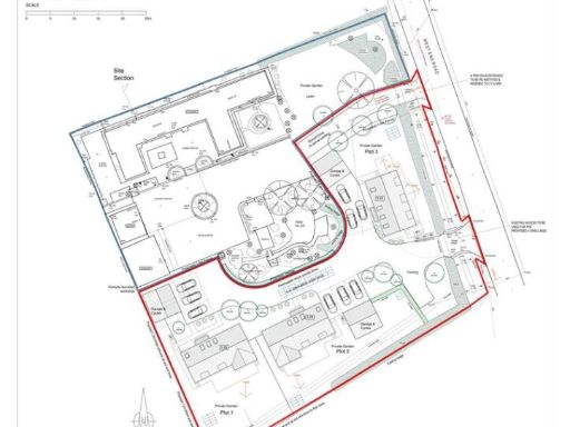
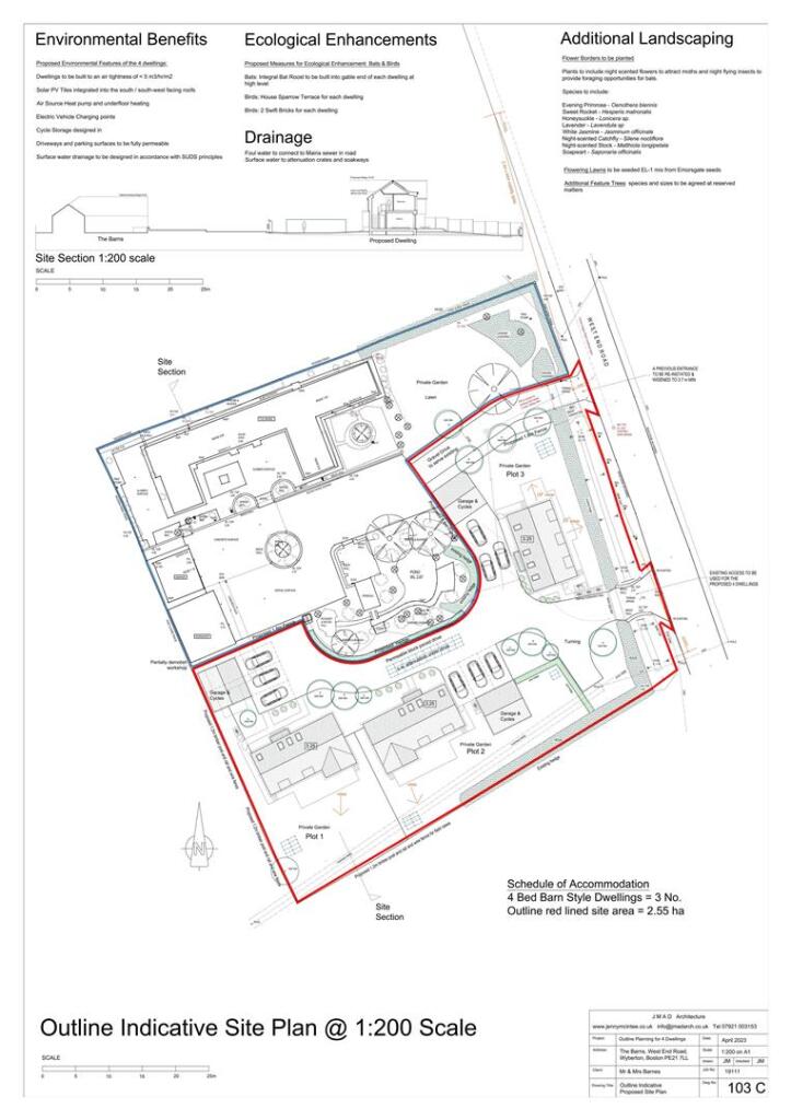
- Outlined planning permission for three executive barn-style homes (B/23/0207)
- Picturesque rural location with expansive countryside views
- Spacious building plot with direct road access
- Nearby amenities including schools, superstores, and transport links
- Large garden space and established greenery
- Freehold tenure providing ownership flexibility
- Low crime rate and affluent area
**Summary:**
Unlock the potential of a remarkable opportunity with this exclusive building plot on the edge of Frampton Fen. With outlined planning permission for three substantial barn-style homes, this expansive lot offers breathtaking rural views and is ideally suited for a bespoke residential development. Each proposed property will boast four spacious bedrooms, detached garages, and generous garden spaces, promising ultimate comfort and tranquility.
This serene locale provides excellent privacy while being conveniently close to the vibrant town of Boston, where you'll find essential amenities, schools with outstanding ratings, and excellent transport links. Seize the chance to create an exquisite living environment in a desirable rural setting—perfect for families or savvy investors looking for a promising project. Act now to secure a slice of countryside charm before it’s gone!
 Land for sale in Wyberton, Boston (Lincolnshire), PE21 — £995,000 • 1 bed • 1 bath • 4029 ft²
 Land for sale in Wyberton, Boston (Lincolnshire), PE21 — £995,000 • 1 bed • 1 bath • 4029 ft² Plot for sale in Fenside Road, Boston, PE21 8LB, PE21 — £325,000 • 1 bed • 1 bath
 Plot for sale in Fenside Road, Boston, PE21 8LB, PE21 — £325,000 • 1 bed • 1 bath Land for sale in Quadring, Spalding, PE11 — £150,000 • 1 bed • 1 bath
 Land for sale in Quadring, Spalding, PE11 — £150,000 • 1 bed • 1 bath Residential development for sale in Priory Road, Freiston, Boston, Lincolnshire, PE22 0JZ, PE22 — £135,000 • 1 bed • 1 bath • 1720 ft²
 Residential development for sale in Priory Road, Freiston, Boston, Lincolnshire, PE22 0JZ, PE22 — £135,000 • 1 bed • 1 bath • 1720 ft² Land for sale in West End Road, Wyberton, Boston, Lincolnshire, PE21 — £320,000 • 1 bed • 1 bath • 3704 ft²
 Land for sale in West End Road, Wyberton, Boston, Lincolnshire, PE21 — £320,000 • 1 bed • 1 bath • 3704 ft² Farm land for sale in Arable Land in and around Frampton Fen, Boston, PE20 — £1,200,000 • 1 bed • 1 bath
 Farm land for sale in Arable Land in and around Frampton Fen, Boston, PE20 — £1,200,000 • 1 bed • 1 bath






















