Ready-planned development on a large freehold plot close to Boston.
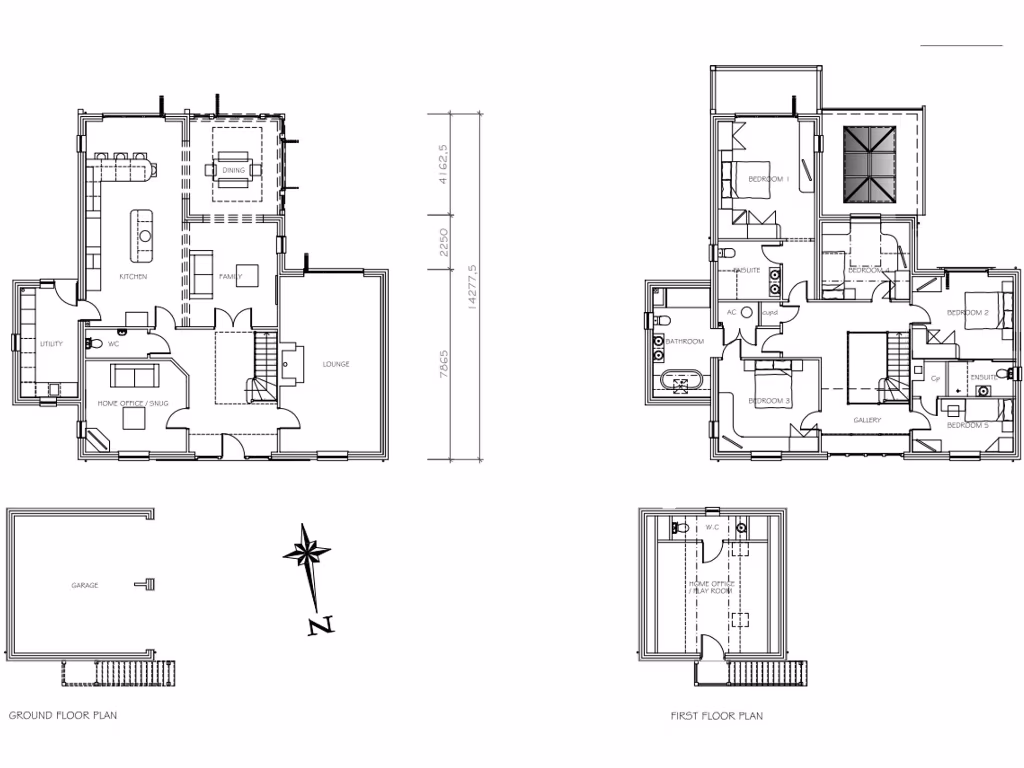
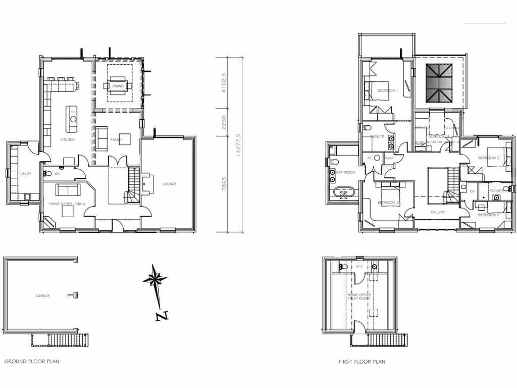
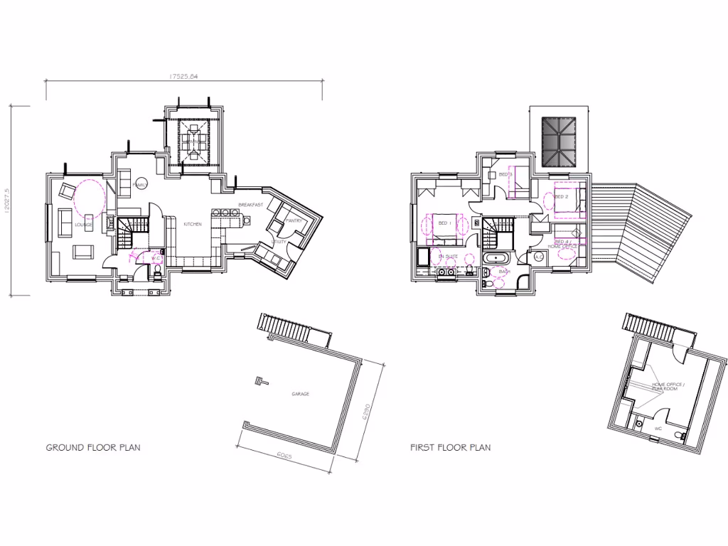
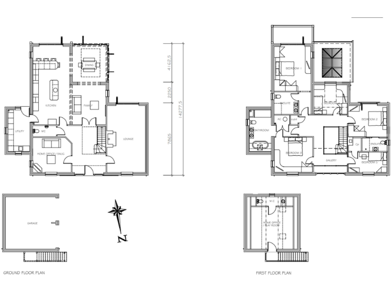
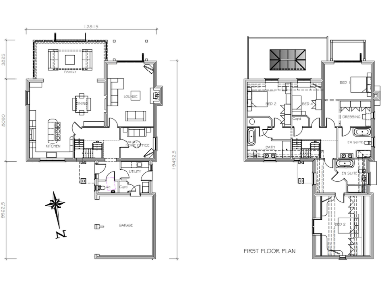
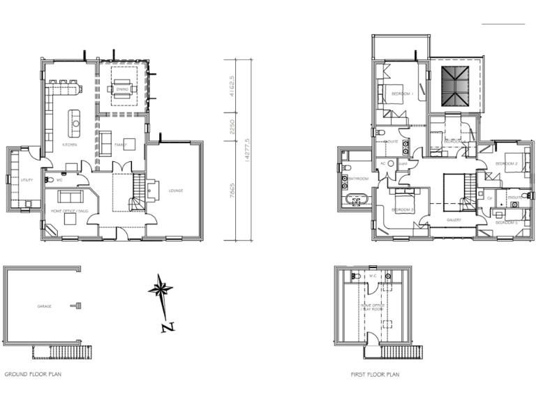
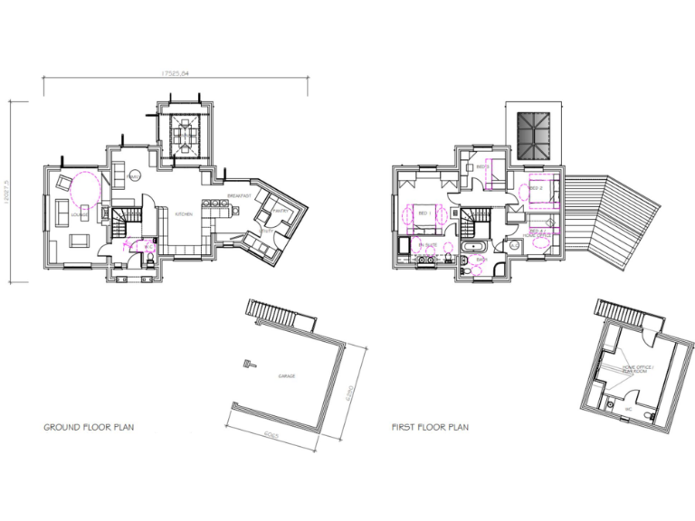
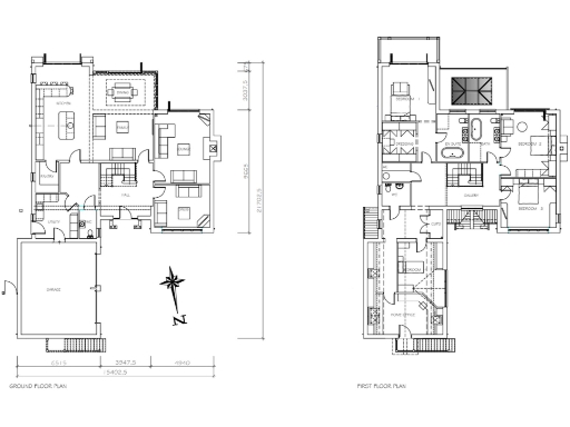
Full detailed planning consent for 13 detached homes across two phases
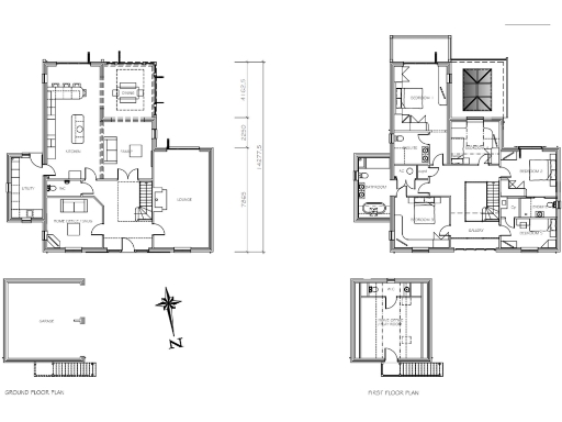
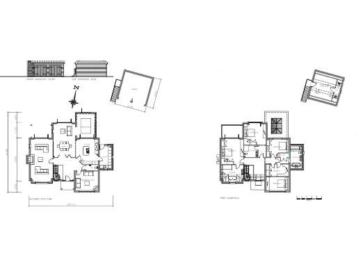
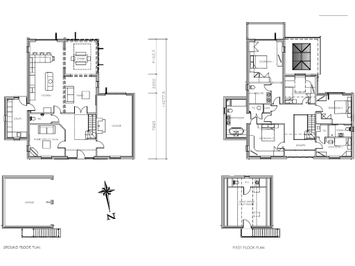
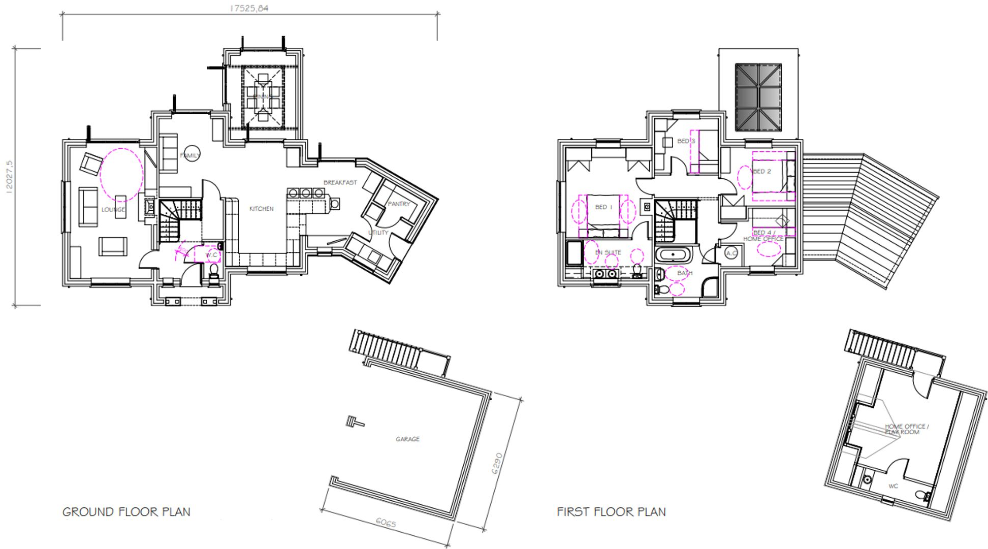
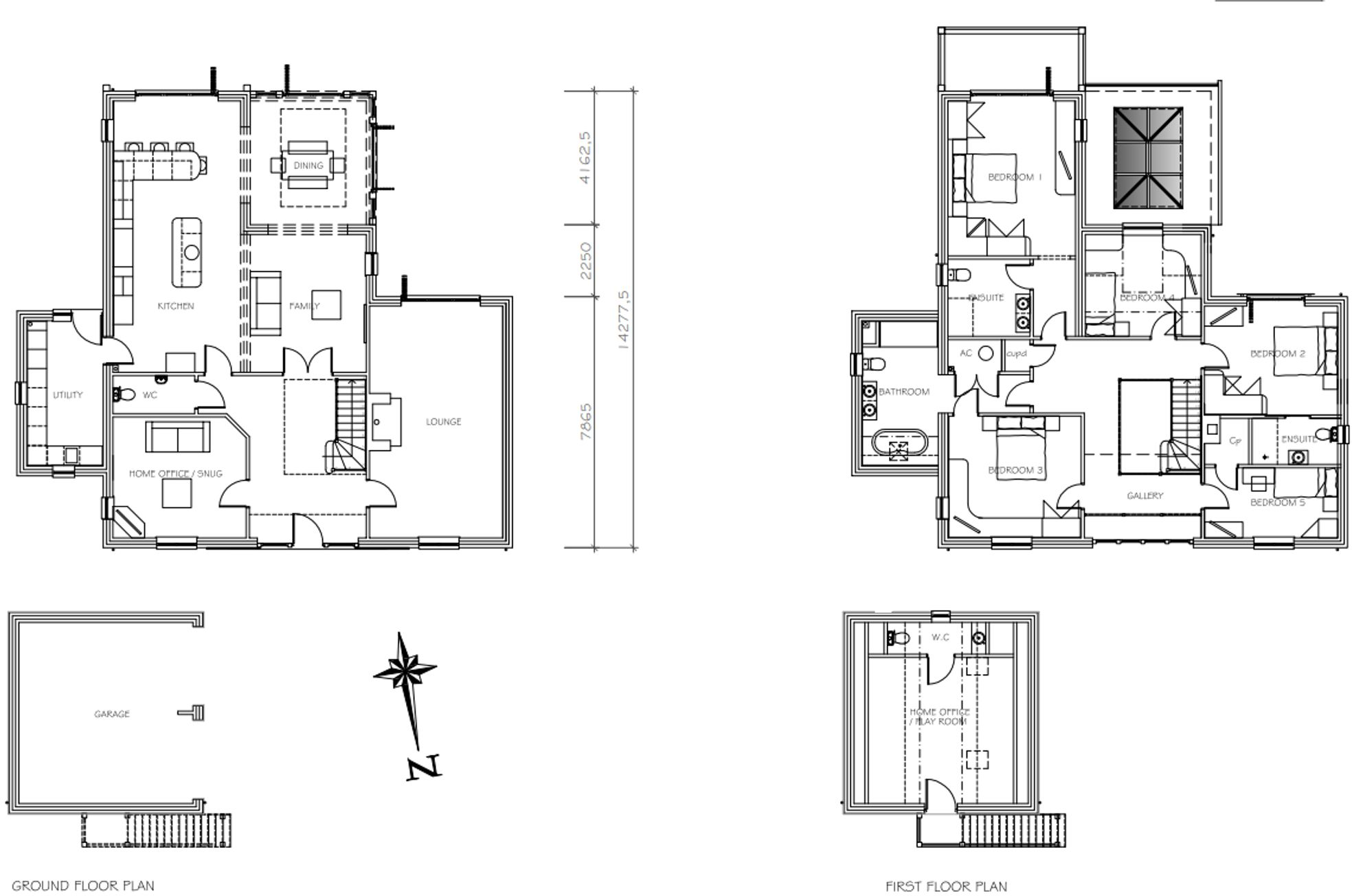
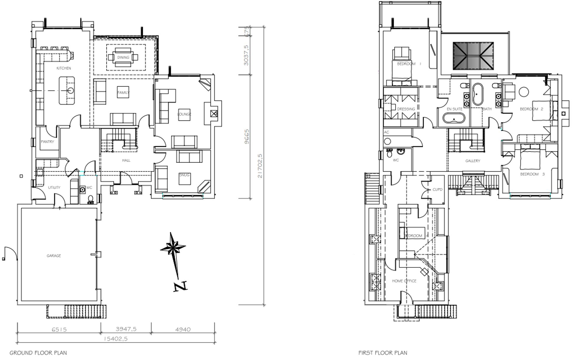
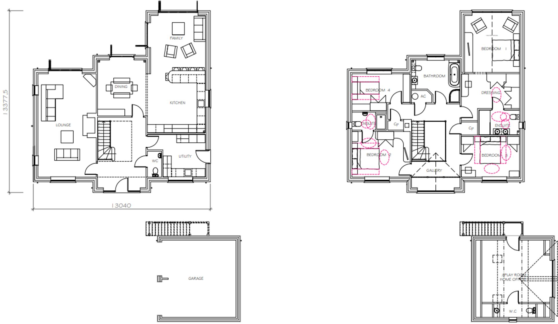
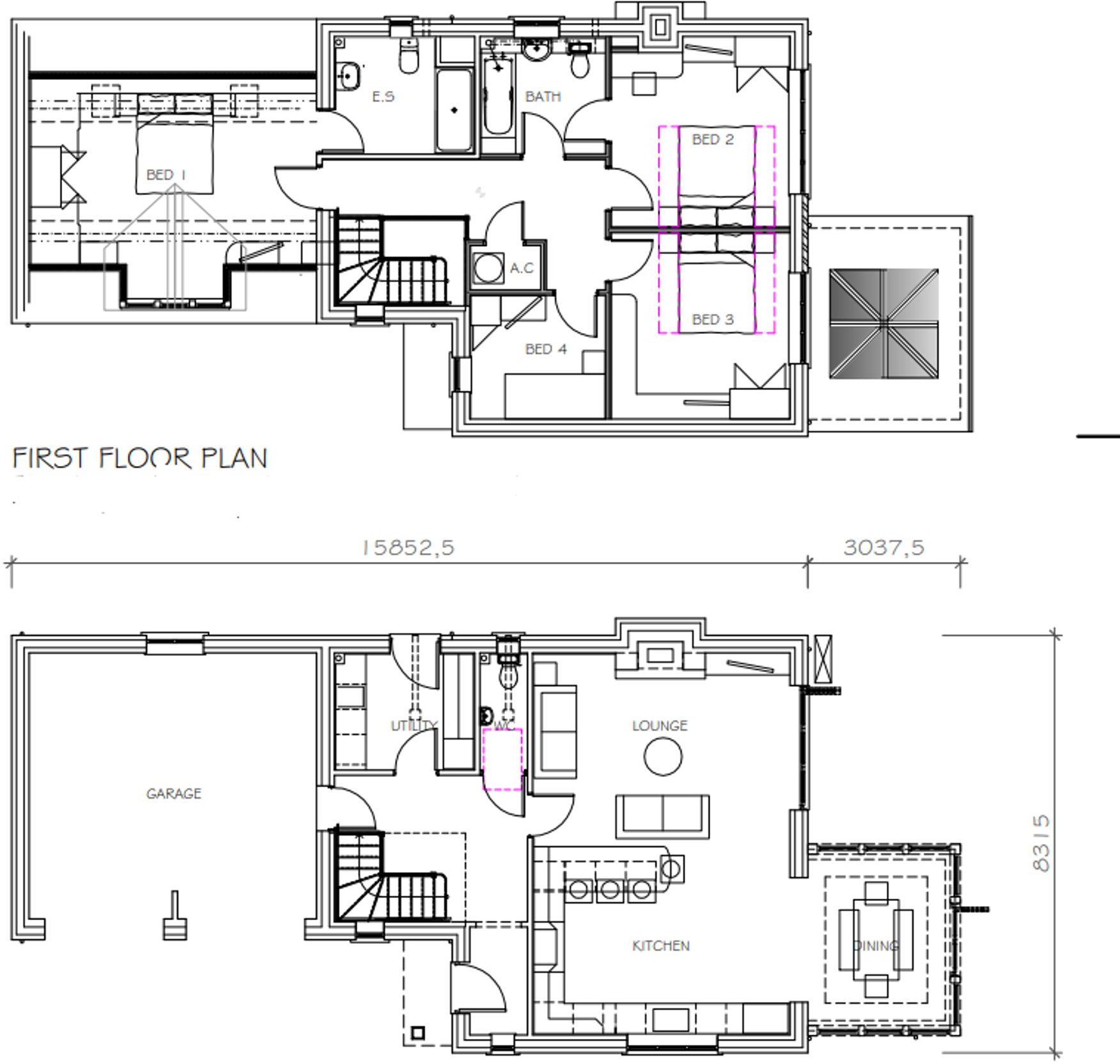
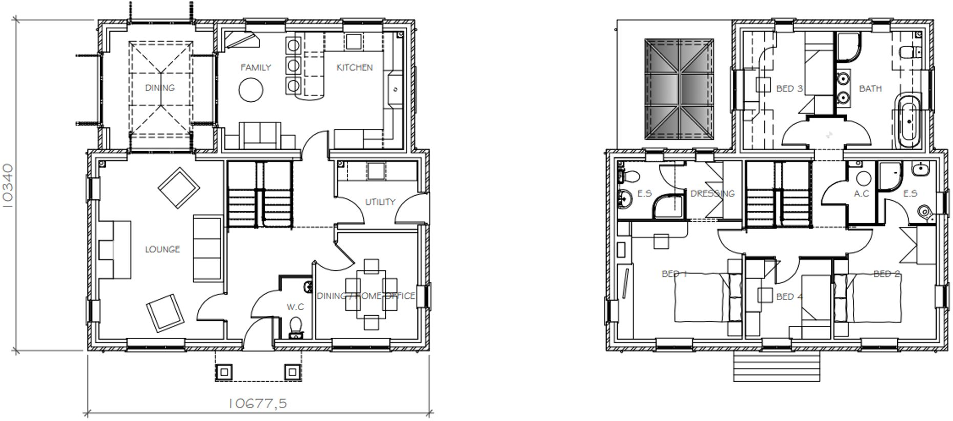
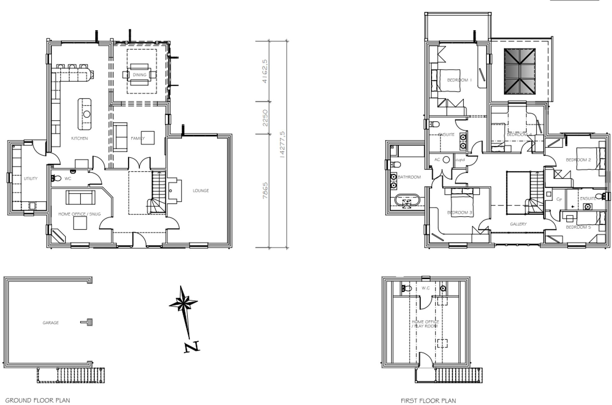
Phase 1 reserved matters approved for five executive houses with double garages
Phase 2 full permission for eight further detached dwellings as continuation
Extremely large freehold plot currently used as grazing land
Low flood risk; area records low crime and excellent mobile/broadband
Visible from Chain Bridge Road; easy on-site viewing at any time
Services and on-site infrastructure delivery to be confirmed by purchaser
Development delivery requires construction finance and build-cost allowance
An exceptional development opportunity on the edge of Wyberton, offered with full detailed planning consent for 13 individually designed detached homes across two phases. Phase 1 has reserved matters approved for five executive detached houses, each with a double garage and private courtyard-style access; Phase 2 benefits from full permission for a further eight detached dwellings. The site is currently grazing land, freehold, and visible from Chain Bridge Road, making it straightforward to inspect at any time.
The plot is extremely large and laid out for contemporary executive homes with generous plots, tree-lined avenues and private garages. Its location provides quick access to central Boston, A16 road links and the railway station, while nearby primary and secondary schools (including an Outstanding primary) and local amenities support family buyers. Flood risk is low and the area records low crime and good digital connectivity.
Practical considerations: the land is undeveloped grazing land so delivery will require construction funding, on-site infrastructure, and statutory service connections to be confirmed. Prospective purchasers should note build costs, planning condition compliance and market absorption for executive homes when assessing viability. The asking price is £980,000 (freehold) and further planning documents and technical information are available on request.
Residential development for sale in Wyberton Low Road, Boston, Lincolnshire, PE21 — £600,000 • 1 bed • 1 bath
Commercial property for sale in West End Road, Wyberton, Boston, PE21 — £225,000 • 1 bed • 1 bath
Commercial development for sale in 3.95 Acres Of Potential Commercial Dev Land, Great Fen Road, Wyberton Fen, Boston, Lincolnshire, PE21 — £375,000 • 1 bed • 1 bath
Industrial development for sale in Enterprise Way, Boston, Lincolnshire, PE21 — £89,000 • 1 bed • 1 bath • 10890 ft²
Residential development for sale in Tattershall Road, Boston, Lincolnshire, PE21 9LF, PE21 — £70,000 • 1 bed • 1 bath • 8712 ft²
Plot for sale in Chain Bridge Road, Boston, PE21 — £5,000,000 • 1 bed • 1 bath


























































































































