**Standout Features:**
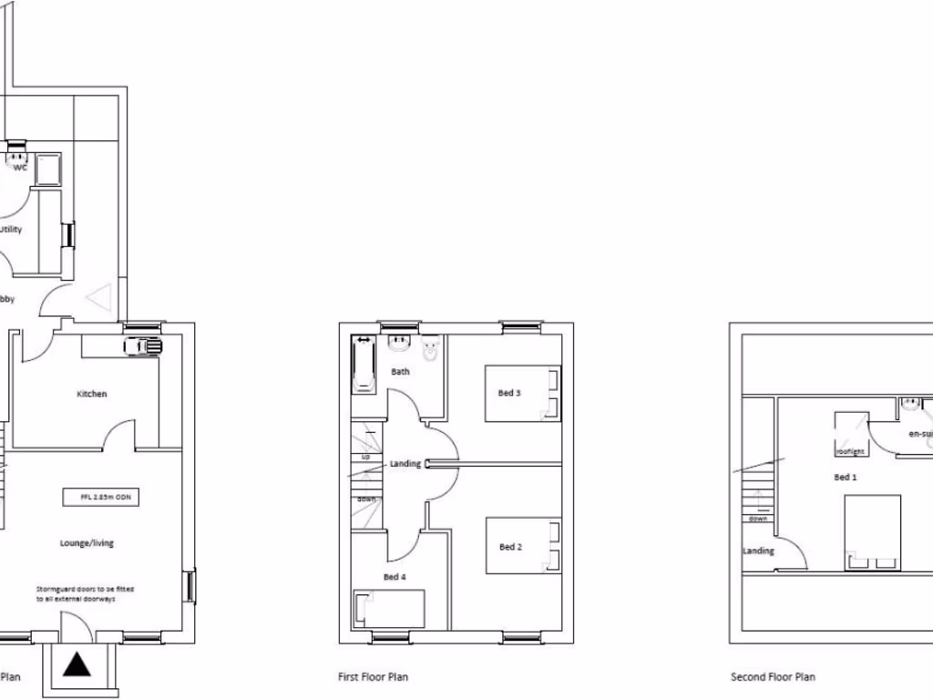
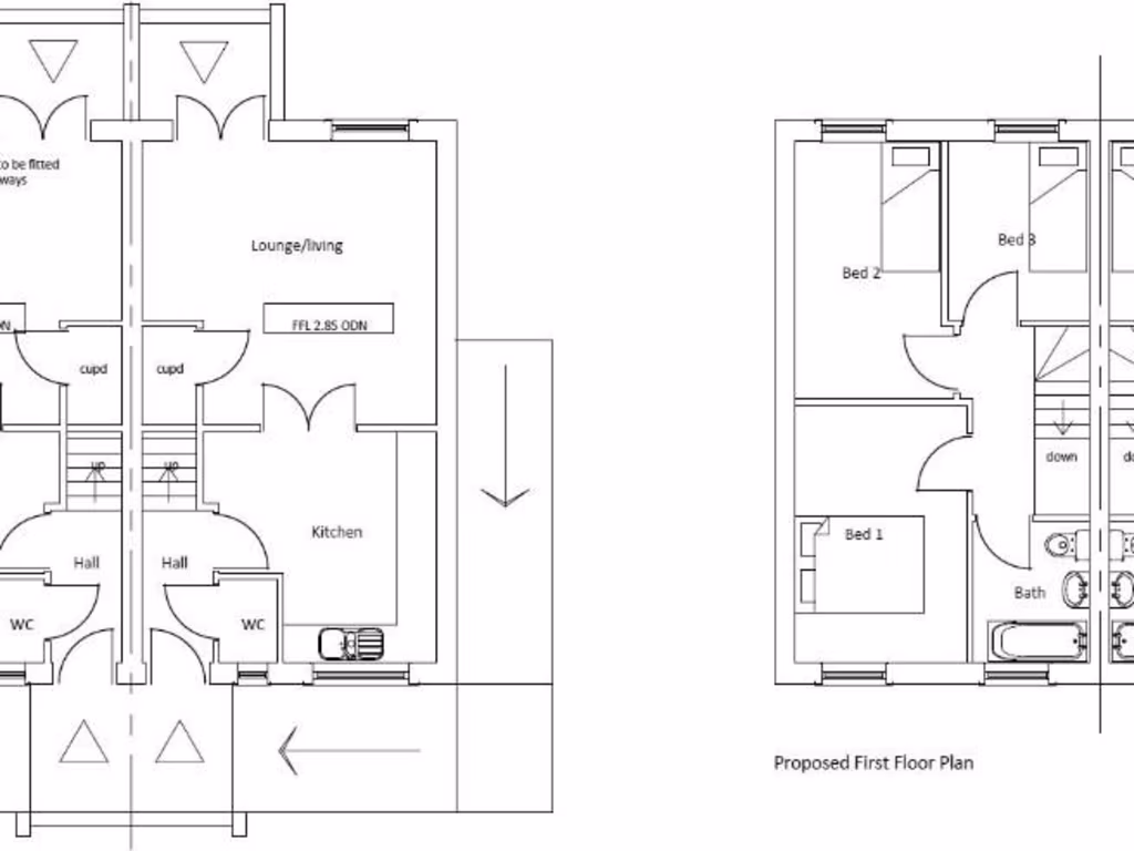
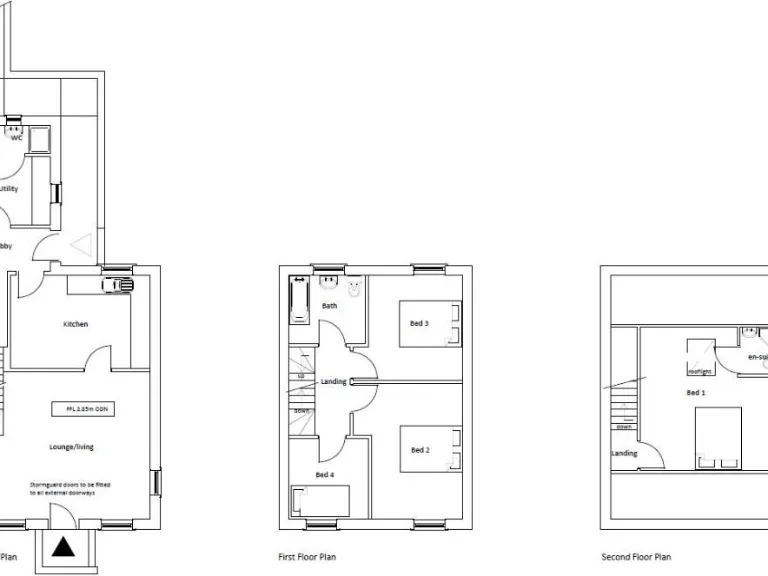
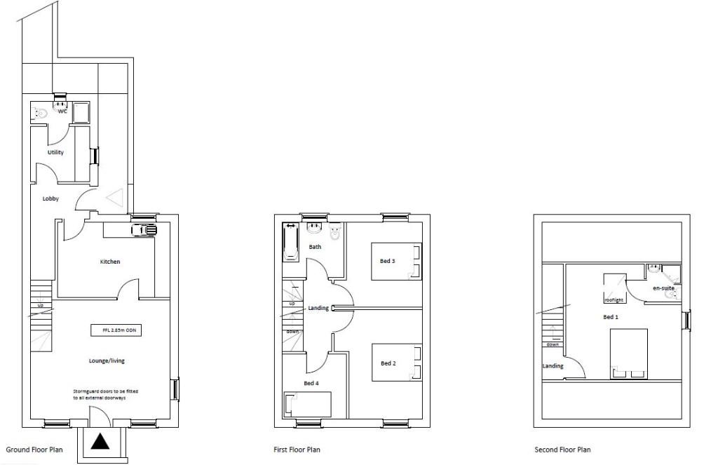
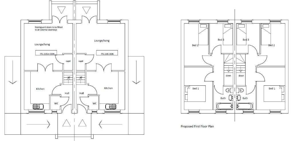
- Full Planning Permission for five new dwellings (2 pairs of three-bedroom semi-detached houses and a three-storey four-bedroom detached house).
- Footings already in place for one pair of semi-detached houses.
- Existing garages can continue to generate rental income during development.
- Conveniently located near Central Park, local schools, and town amenities.
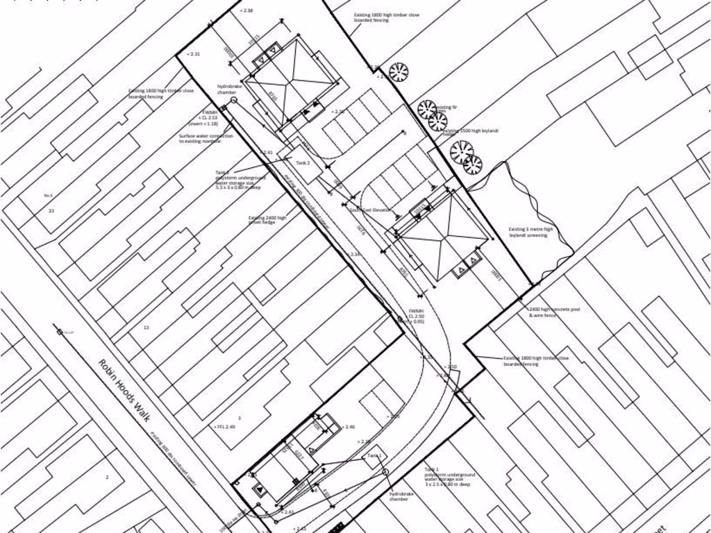
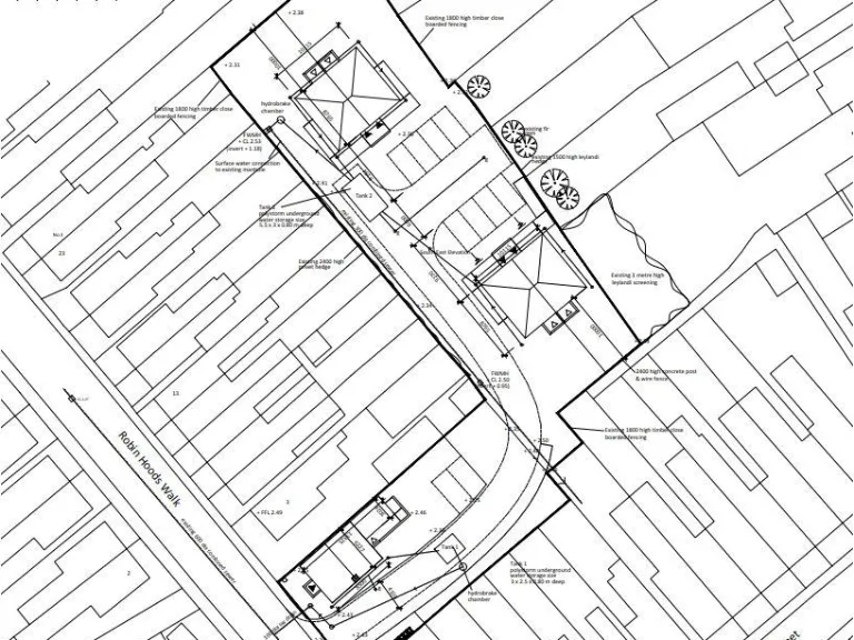
- Approximately 0.2 Hectares of land.
**Summary:**
Discover an exciting development opportunity on Robin Hoods Walk in Boston, Lincolnshire. This substantial plot of approximately 0.2 hectares comes with Full Planning Permission for the construction of five modern residential units, including four semi-detached three-bedroom houses and a prominent three-storey, four-bedroom house. Footings are already established for one pair of semi-detached homes, providing a head start for your project.
The site currently features a garage court generating rental income, ensuring a revenue stream during the initial development phase. Nestled within walking distance of Central Park, reputable schools, and a vibrant town center, this location offers the ideal mix of community living and convenience. Whether you're an investor looking to capitalize on rental demand or a developer seeking to create spacious family homes, this unique opportunity is not to be missed. Act quickly to secure this prime piece of land and start planning your new vision today!
Residential development for sale in Tattershall Road, Boston, Lincolnshire, PE21 9LF, PE21 — £70,000 • 1 bed • 1 bath • 8712 ft²
Land for sale in West End Road, Wyberton, Boston, Lincolnshire, PE21 — £320,000 • 1 bed • 1 bath • 3704 ft²
Land for sale in High Street, Boston, PE21 — £135,000 • 1 bed • 1 bath • 3294 ft²
Land for sale in Strait Bargate, Boston, Lincolnshire, PE21 — £3,250,000 • 1 bed • 1 bath
Residential development for sale in Wyberton Low Road, Boston, Lincolnshire, PE21 — £600,000 • 1 bed • 1 bath
Plot for sale in Chain Bridge Road, Boston, PE21 — £5,000,000 • 1 bed • 1 bath


























