**Standout Features:**
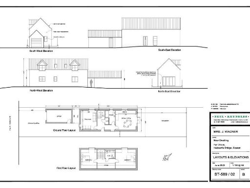
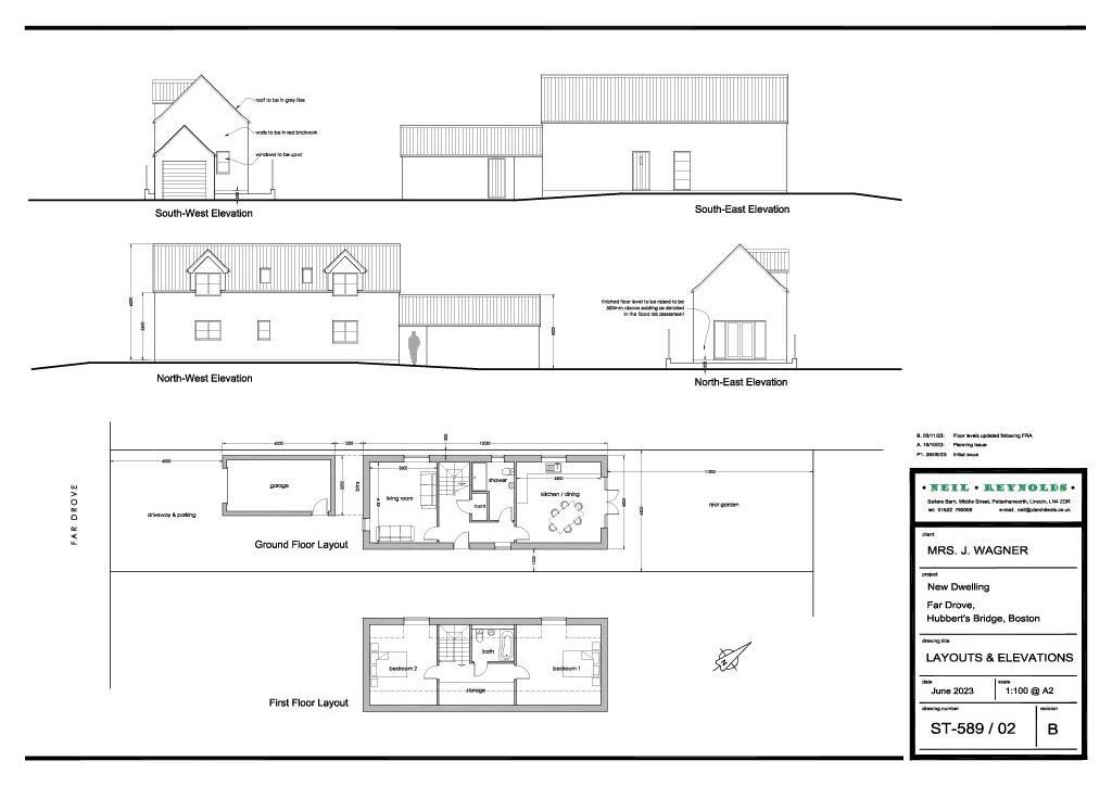
- Prime land with full planning permission for a two-bedroom house
- Breathtaking rural views, perfect for picturesque living
- Convenient location just 4 miles from Boston
- Surrounded by low crime rate and family-friendly amenities
- Access to schools with good to excellent Ofsted ratings
- Freehold tenure offering flexibility and security
**Potential Concerns:**
- Average mobile and broadband connectivity
- Limited to rural amenities within short distances
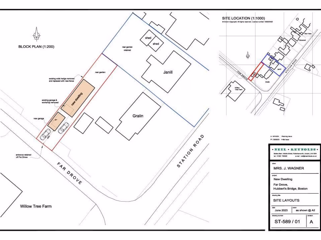
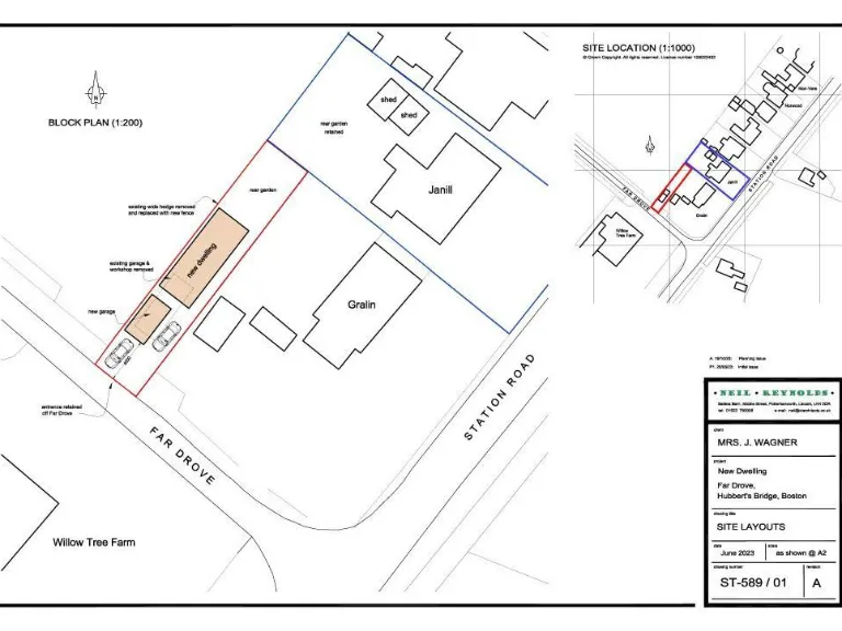
Discover your perfect canvas in the tranquil hamlet of Hubberts Bridge, Boston. This generous plot of land offers rare full planning permission for a charming two-bedroom home, set against stunning countryside views that promise both peace and beauty. Located just four miles from Boston and with excellent transport links, you’ll find yourself within reach of essential amenities, making it an ideal spot for families or those seeking a retreat from city life.
Imagine walking out your door to scenic vistas while knowing your future home will be nestled in a setting that balances rural charm with proximity to conveniences. With good local schools and a welcoming community nearby, this property holds great potential for both personal enjoyment and investment. Take this opportunity to secure your future in a premium location—where building your dream home awaits. Don’t let this opportunity pass you by!
Commercial property for sale in West End Road, Wyberton, Boston, PE21 — £225,000 • 1 bed • 1 bath
Land for sale in Land North Side of Laceys Lane, Leverton, Boston, Lincolnshire, PE22 — £250,000 • 1 bed • 1 bath
Land for sale in West End Road, Wyberton, Boston, Lincolnshire, PE21 — £320,000 • 1 bed • 1 bath • 3704 ft²
Residential development for sale in Tattershall Road, Boston, Lincolnshire, PE21 9LF, PE21 — £70,000 • 1 bed • 1 bath • 8712 ft²
Land for sale in Wyberton, Boston (Lincolnshire), PE21 — £995,000 • 1 bed • 1 bath • 4029 ft²
Land for sale in Quadring, Spalding, PE11 — £150,000 • 1 bed • 1 bath


















































