### Standout Features:
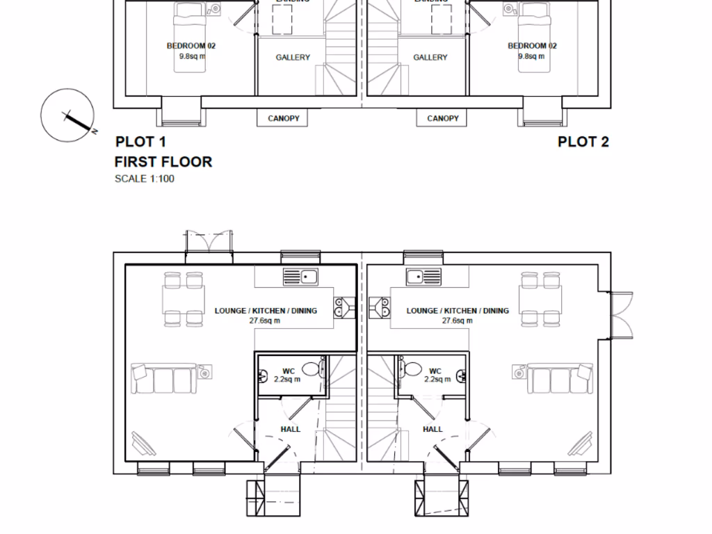
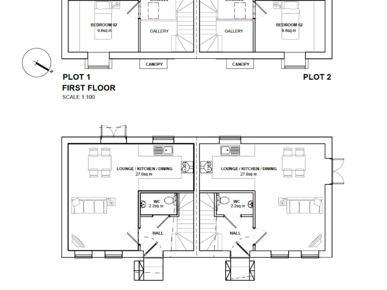
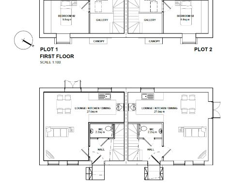
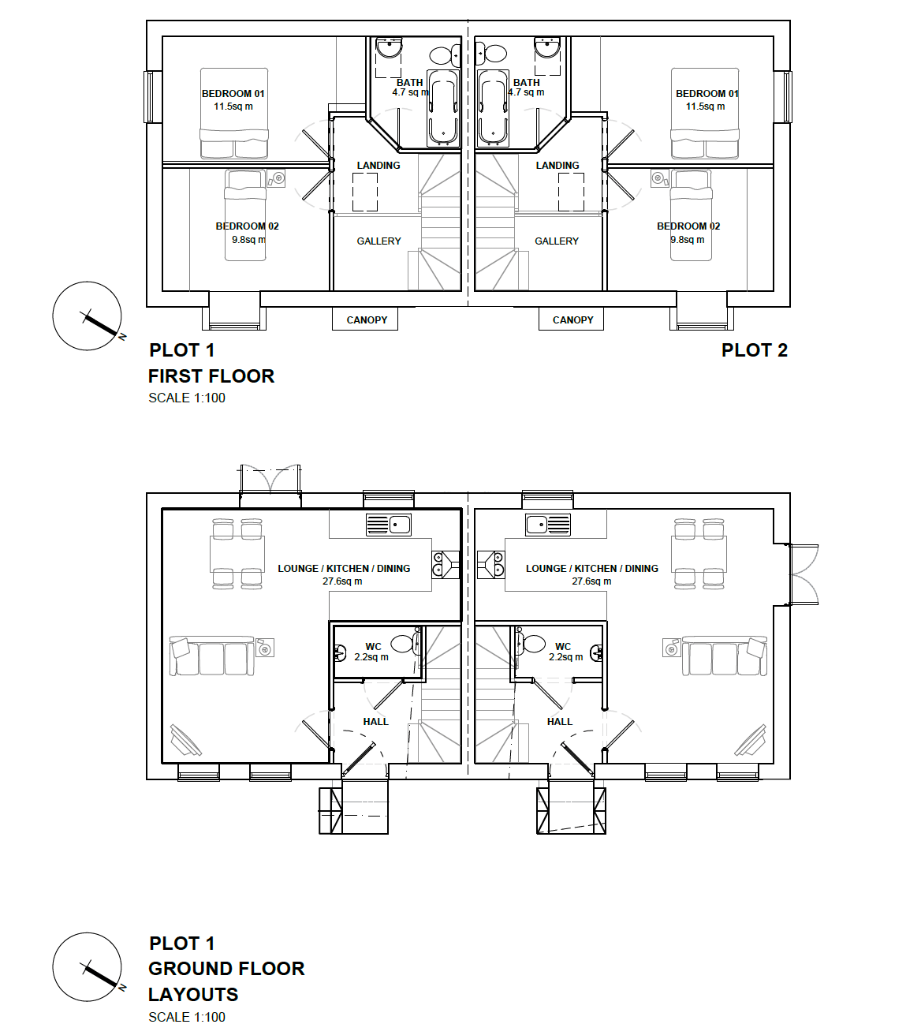
- **Full Planning Permission**: Approved for a pair of two-bedroom semi-detached houses with garage and a separate detached four-bedroom home.
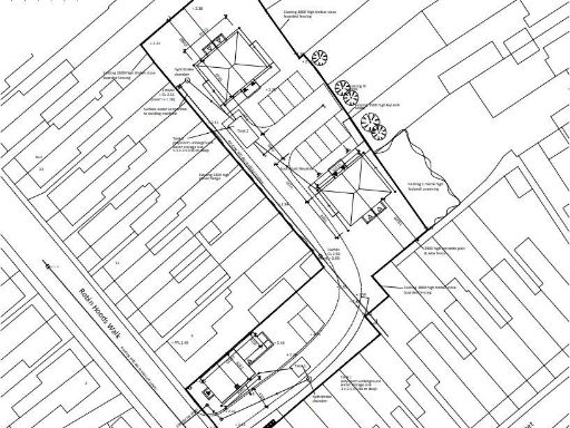
- **Large Plot Size**: Expansive 0.2-acre land with a 5m road frontage, providing ample space for development.
- **Strategic Location**: Situated in a growing area of Boston, close to major road networks (A16, A17, A52) and community amenities.
- **Educational Access**: Proximity to several well-regarded schools, enhancing family appeal.
### Summary:
Discover a unique opportunity to invest in residential development land in Boston, Lincolnshire. Spanning 0.2 acres, this desirable parcel is strategically located just a mile from the town center, making it an ideal spot for a suburban neighborhood. With full planning permission granted for two distinct residential projects—a pair of modern semi-detached homes and a spacious detached four-bedroom house—this site offers versatility for builders and investors alike.
The locations nearby include reputable schools and essential amenities, ensuring convenience for future residents. Although the area has above-average crime rates and is classified as very deprived, it holds potential for growth and could attract families seeking quality homes. Take advantage of this fantastic investment opportunity at a competitive price of £70,000, and envision the possibilities for your future development! Don't miss out—land in this fast-growing market won't last long.
Land for sale in West End Road, Wyberton, Boston, Lincolnshire, PE21 — £320,000 • 1 bed • 1 bath • 3704 ft²
Plot for sale in Robin Hoods Walk, Boston, Lincolnshire, PE21 9EP, PE21 — £240,000 • 1 bed • 1 bath
Land for sale in High Street, Boston, PE21 — £135,000 • 1 bed • 1 bath • 3294 ft²
Land for sale in Land North Side of Laceys Lane, Leverton, Boston, Lincolnshire, PE22 — £250,000 • 1 bed • 1 bath
House for sale in Land Adjacent To 22 Revesby Avenue, PE21 — £59,950 • 1 bed • 1 bath
Residential development for sale in Wyberton Low Road, Boston, Lincolnshire, PE21 — £600,000 • 1 bed • 1 bath


















