Ready-permission plot near fast rail links and top local schools.
Planning permission granted for 2 x 4-bed houses (ref EPF/0752/25)
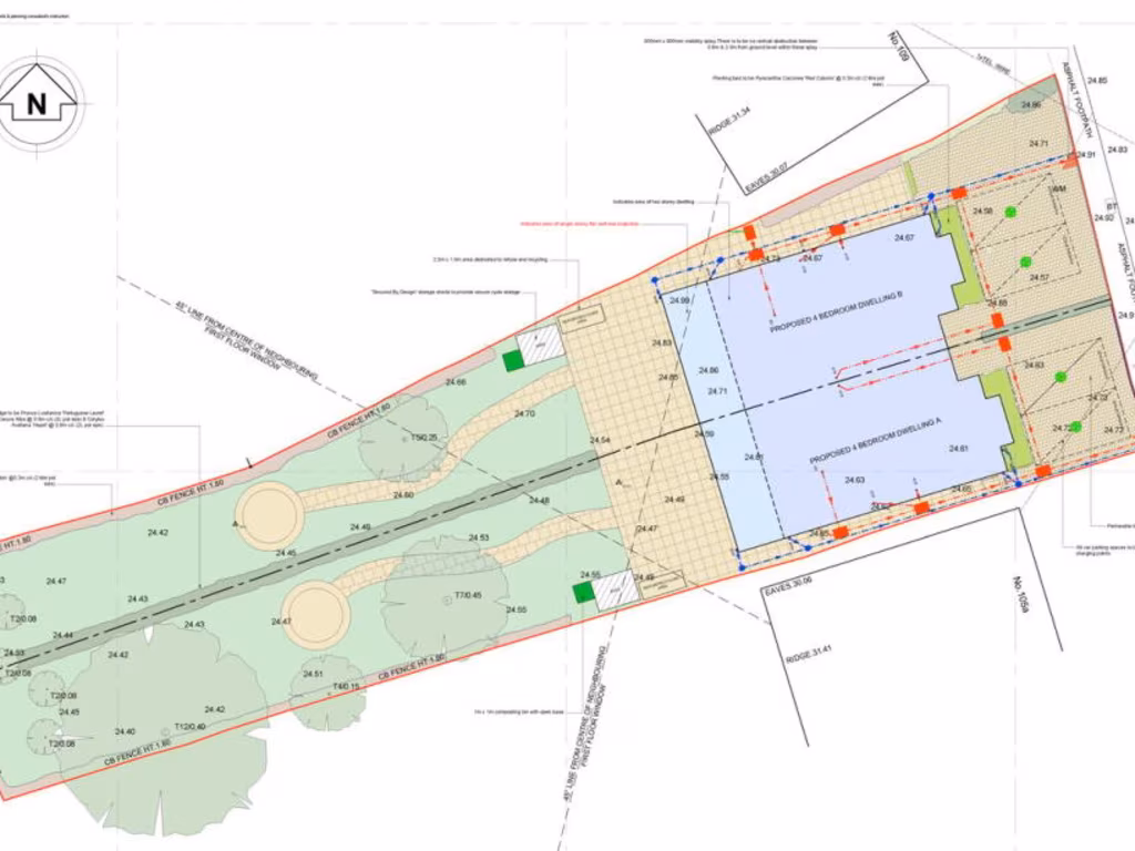
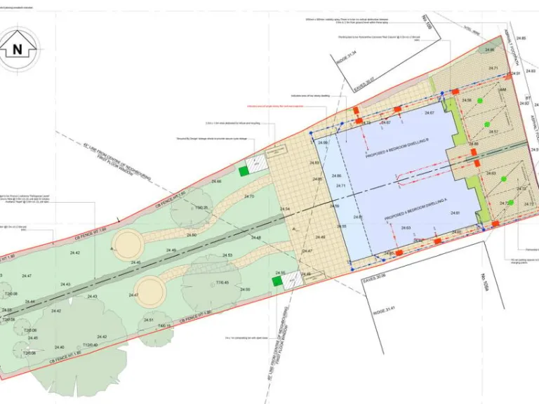
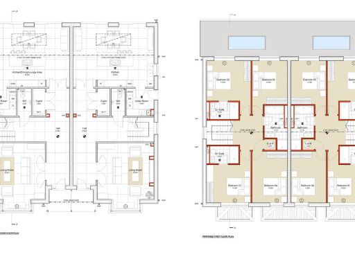
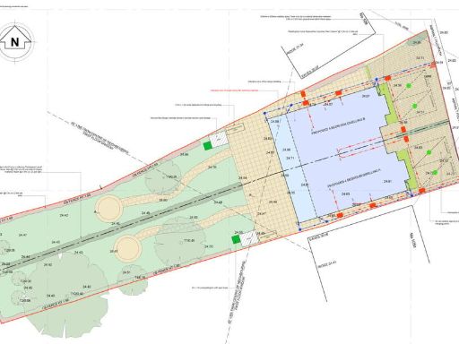
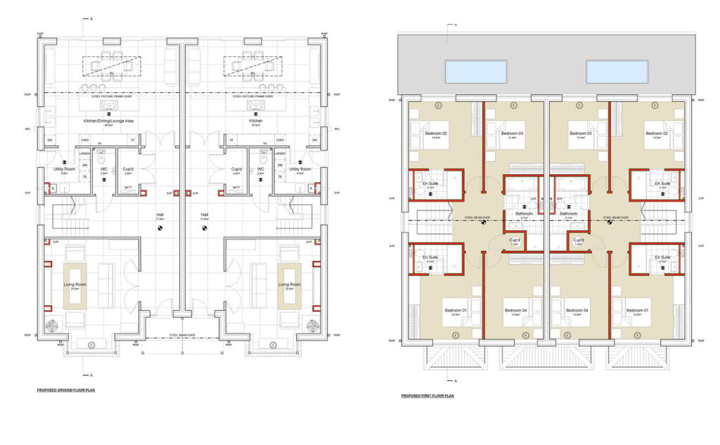
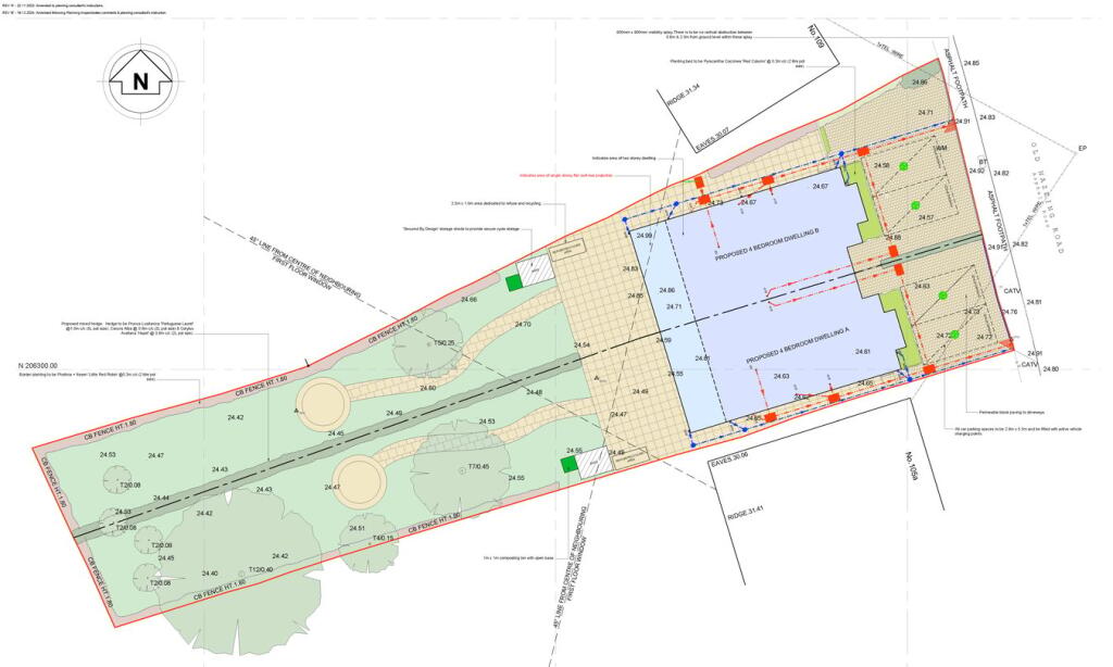
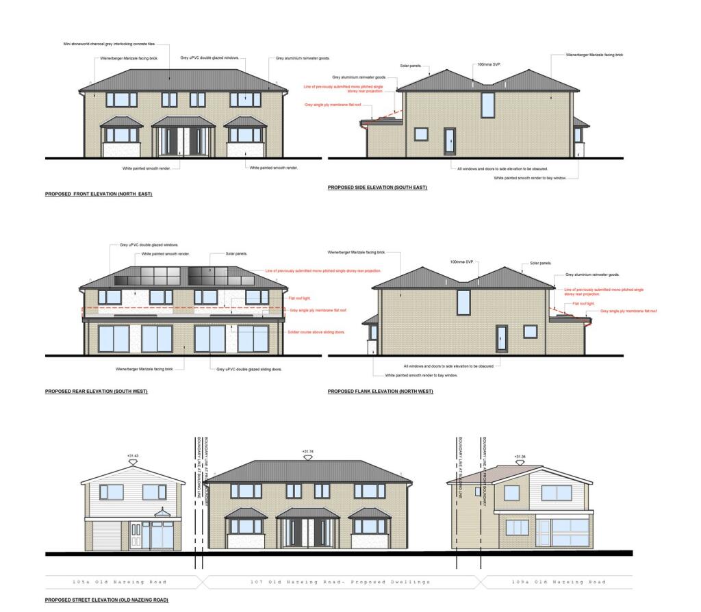
This sizable freehold plot in Broxbourne comes with planning permission to replace the existing bungalow with two luxury 4-bedroom houses (Epping Forest ref: EPF/0752/25). The consented designs show contemporary two-storey homes with garages and private gardens, making the site a ready development opportunity for owner-builders or small developers.
The location is a principal selling point: the site sits in a sought-after, comfortable suburban neighbourhood within walking distance of Broxbourne station, offering fast services into London. It is also close to a mix of highly regarded state, grammar and independent schools, and benefits from quick road connections to the A10 and M25.
Buyers should note practical considerations: the existing bungalow will require demolition to implement the permission, broadband speeds in the area are slow, and local council tax levels are above average. Viewings are by appointment only and the planning portal reference provides full application details for due diligence.
For investors or developers seeking a near-term build scheme in an affluent commuter location, this plot offers clear upside from the granted permission, good transport links and strong local school provision. The site suits those prepared to manage demolition and implement the approved plans to deliver two modern family homes.
Residential development for sale in Old Nazeing Road, Broxbourne, EN10 — £895,000 • 1 bed • 1 bath
Land for sale in Park Lane, Broxbourne, EN10 — £350,000 • 1 bed • 1 bath • 2614 ft²
Land for sale in Churchgate Road, Cheshunt, EN8 — £700,000 • 1 bed • 1 bath
4 bedroom detached house for sale in Woodstock Road, Broxbourne, EN10 — £1,250,000 • 4 bed • 2 bath • 2206 ft²
Land for sale in Beech Hill Avenue, Hadley Wood, Hertfordshire, EN4 — £3,500,000 • 1 bed • 1 bath
Plot for sale in Honey Lane, Waltham Abbey, EN9 — £725,000 • 3 bed • 1 bath • 951 ft²






















