**Standout Features:**
- Development opportunity for two building plots in a highly sought-after area
- Freehold tenure with a large, private garden surrounded by mature trees
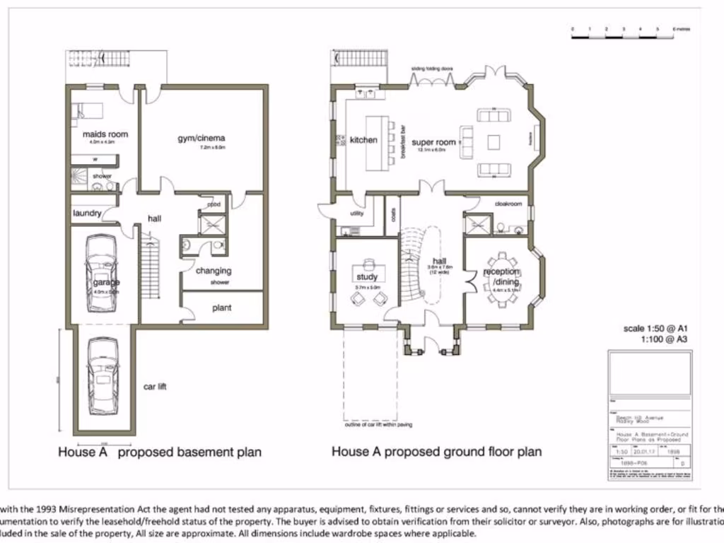
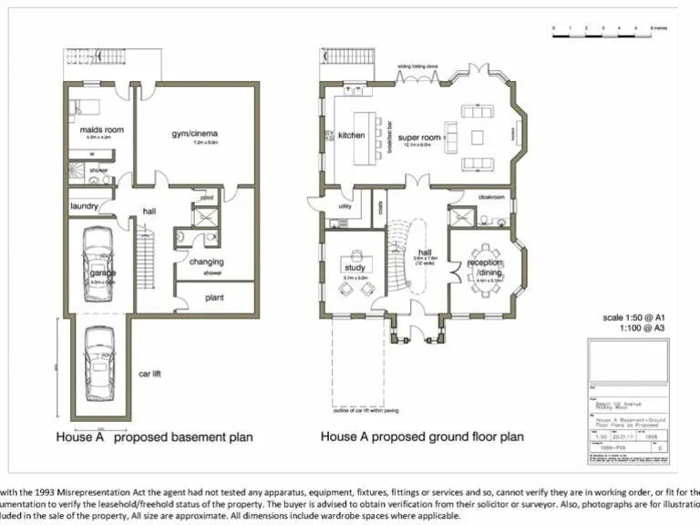
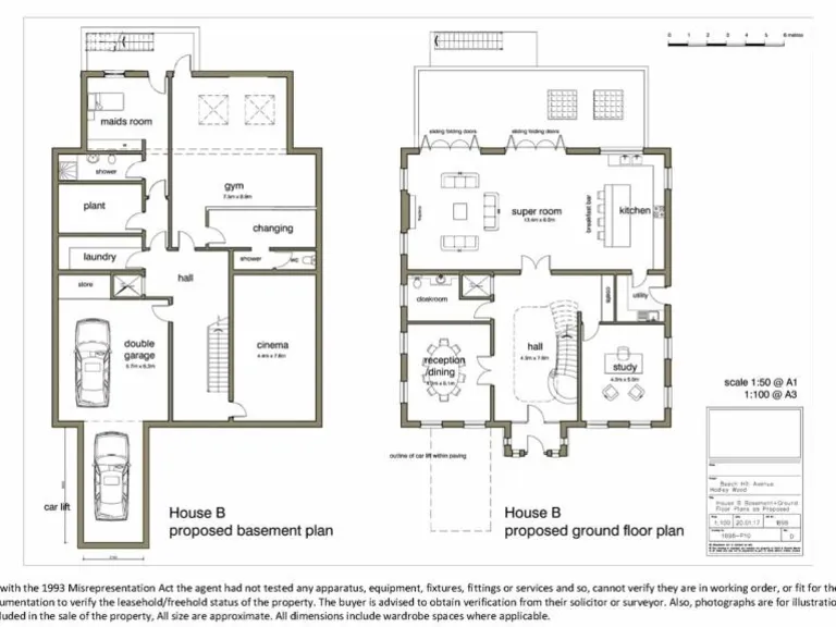
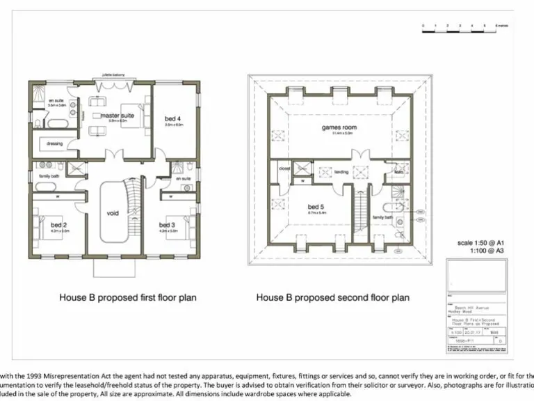
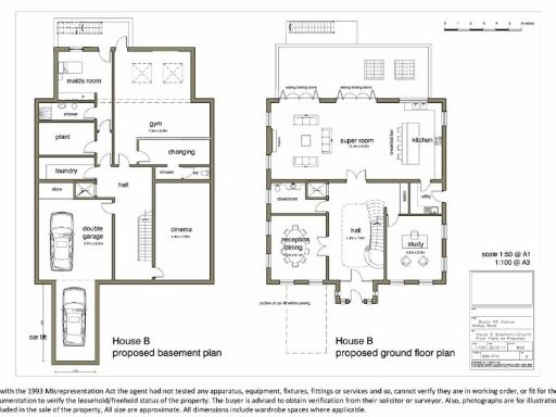
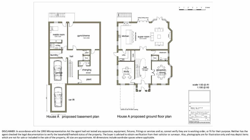
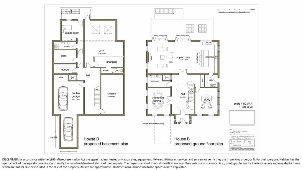
- Previously granted planning permission (lapsed) for two detached, 5-bedroom homes
- Close proximity to Hadley Wood mainline station and excellent schools
- Low crime rates in a very affluent neighborhood
**Notable Concerns:**
- Planning permission has lapsed and will need to be reapplied for
- Existing property may require significant renovation or demolition
**Summary:**
Discover an exceptional development opportunity situated in the coveted EN4 postcode, suitable for savvy investors or builders seeking a prime location for future residential projects. The property offers a large plot with a traditional 1930s detached house and a spacious garden filled with mature trees, providing both privacy and potential for expansion. Originally, planning permission was granted for the construction of two impressive 5-bedroom homes, each with multiple levels and modern amenities like basement parking and spacious garages; however, this permission has since lapsed, necessitating re-application.
Nestled within a tranquil suburban environment, the site is mere moments from Hadley Wood mainline station and a selection of top-rated local schools, making it an ideal setting for families. This unique opportunity is perfect for those envisioning a contemporary residence in a prestigious neighborhood. Given the exceptional location and the potential for lucrative redevelopment, it is not likely to stay on the market for long—seize this moment to invest in a bright future!
Plot for sale in Hadley Road, Barnet, EN5 — £850,000 • 1 bed • 1 bath
Plot for sale in Quinta Drive, Arkley, Hertfordshire, EN5 — £1,495,000 • 1 bed • 1 bath
Land for sale in Rowley Lane, Barnet, EN5 — £100,000 • 1 bed • 1 bath
Land for sale in Quinta Drive, Barnet, EN5 — £1,500,000 • 1 bed • 1 bath • 5468 ft²
4 bedroom detached house for sale in Beech Hill, Barnet, EN4 — £1,650,000 • 4 bed • 3 bath • 1935 ft²
Land for sale in Partingdale Lane, Mill Hill, London, NW7 — £3,650,000 • 1 bed • 1 bath • 7500 ft²


































































