Two luxury family dwellings approved, ideal for commuters and school catchments.
Planning permission granted for 2 × 4‑bed luxury houses (EPF/0752/25)
Large freehold plot in a prestigious, comfortable suburban neighbourhood
Walking distance to Broxbourne station; fast frequent London services
Close to highly regarded state, grammar and independent schools
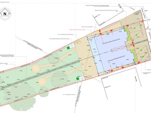
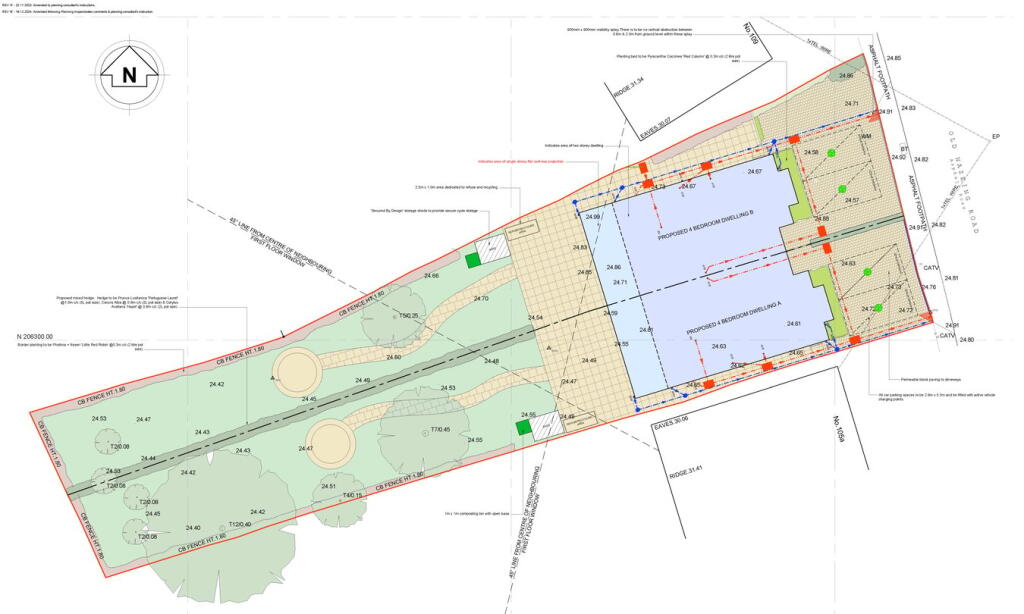
Demolition of existing bungalow required to implement permission
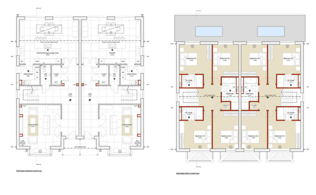
Attached garages and parking included in proposed designs
Fast broadband; low flood risk; mobile signal average
Council tax above average; viewings by appointment only
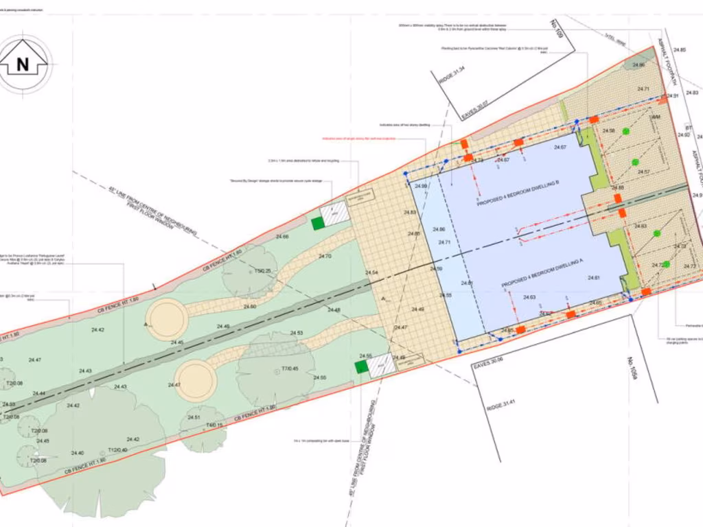
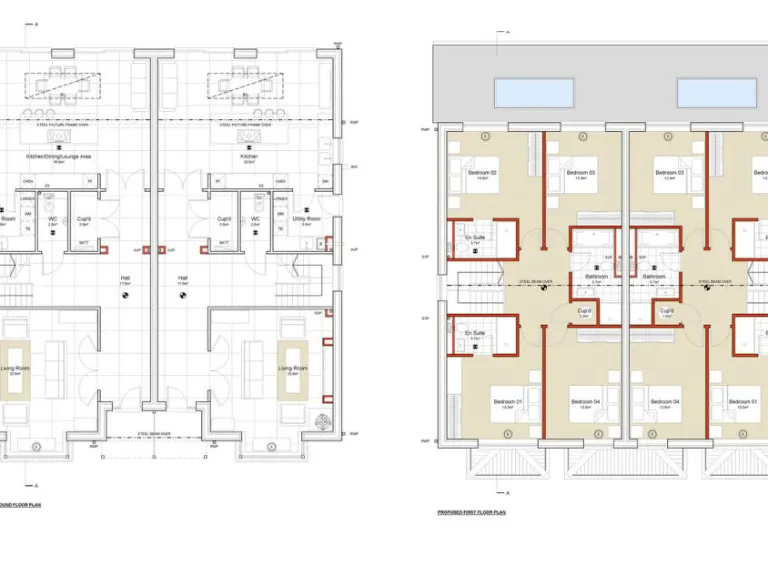
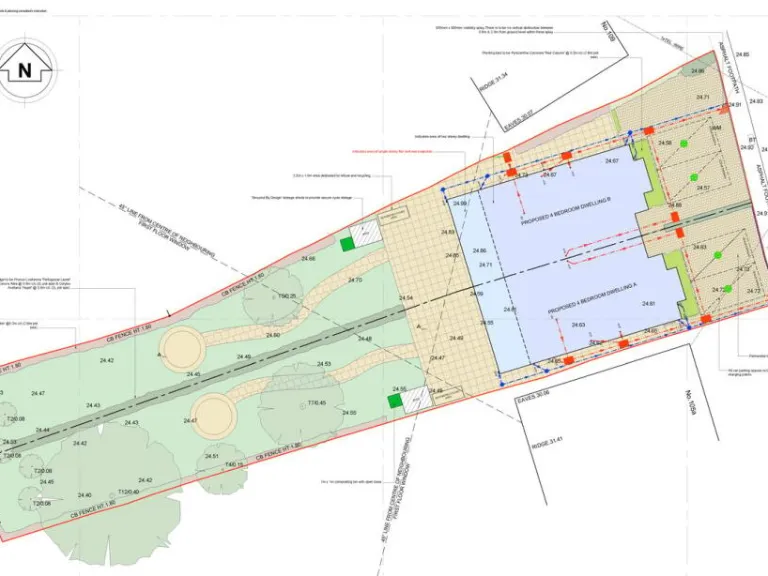
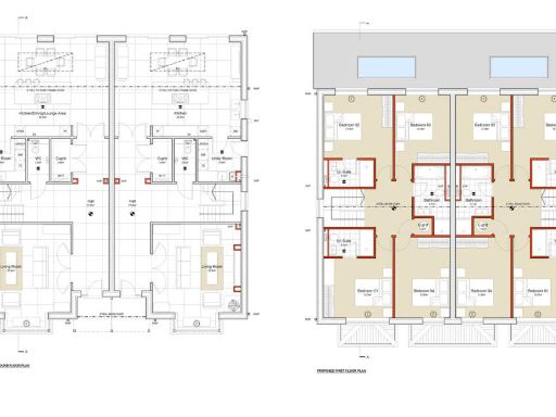
An uncommon residential development opportunity with planning permission granted to build two luxury four‑bedroom family homes on a large freehold plot. Permission (Epping Forest EPF/0752/25) covers demolition of the existing bungalow and replacement with two modern, double‑storey dwellings with attached garages and en‑suite layouts.
The site is in a prestigious, comfortable suburban neighbourhood within walking distance of the station, offering fast, frequent trains into London and quick road access to the A10 and M25. The location is well served by a mix of highly regarded state, grammar and independent schools, making the scheme attractive to growing families and commuting professionals.
Practical factors: broadband speeds are fast and flood risk is low. Mobile signal is average and council tax in the area is above average, and the sale requires demolition and full rebuild to realise the planning consent. Viewings are by appointment only.
This opportunity suits a developer or a builder‑owner looking to deliver two high‑spec family homes in an affluent suburb with strong commuter links and school catchments.
Land for sale in Old Nazeing Road, Broxbourne, EN10 — £885,000 • 1 bed • 1 bath
Land for sale in Churchgate Road, Cheshunt, EN8 — £700,000 • 1 bed • 1 bath
Land for sale in Beech Hill Avenue, Hadley Wood, Hertfordshire, EN4 — £3,500,000 • 1 bed • 1 bath
4 bedroom detached house for sale in Woodstock Road, Broxbourne, EN10 — £1,250,000 • 4 bed • 2 bath • 2206 ft²
Plot for sale in Brick End, Broxted, CM6 2BJ, CM6 — £600,000 • 4 bed • 2 bath • 1776 ft²
Plot for sale in Great Hallingbury, Bishop's Stortford, CM22 — £1,000,000 • 1 bed • 1 bath • 2218 ft²


















