**Standout Features:**
- Large plot with existing three-bedroom bungalow
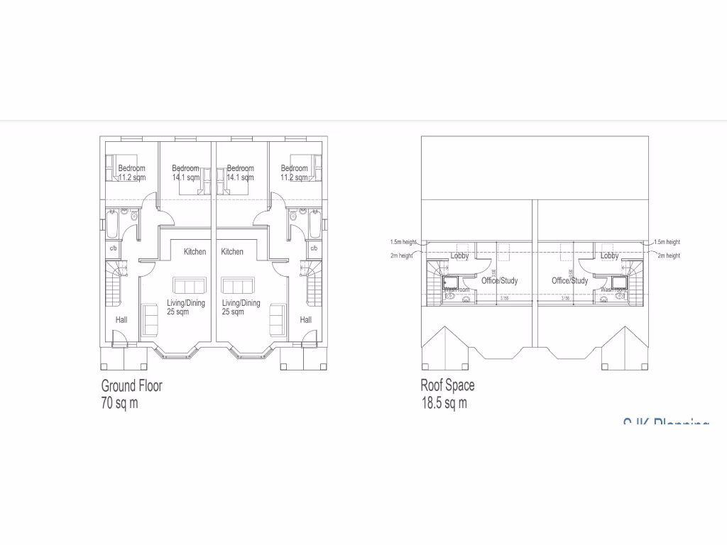
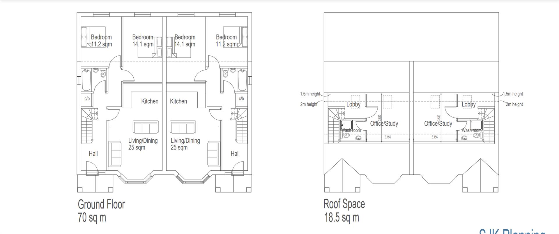
- Approved planning permission for two semi-detached bungalows (EPF/0362/24)
- Prior approval for vertical extension of the existing bungalow (EPF/2376/23)
- Freehold title, chain-free sale
- Off-street parking and sizeable garden
- Conveniently located near the M25 for commuters
- Low crime rate, excellent mobile signal, and fast broadband
**Summary:**
This expansive plot offers a rare development opportunity featuring a three-bedroom bungalow in a desirable Waltham Abbey location. Currently presented with robust planning permissions for two semi-detached bungalows and prior approval for upward expansion, this property is perfect for developers or investors looking to capitalize on the growing housing demand. The bungalow awaits renovation or potential demolition, allowing for fresh, modern designs tailored to today’s living standards.
The generational charm of the existing structure comes with a sizeable garden and ample off-road parking, inviting a serene atmosphere that’s both comfortable and family-friendly. Nestled in a community-friendly area with low crime rates and excellent access to local schools rated "Good" by Ofsted, this property is well-positioned for families as well.
Don't miss your chance to invest in this promising plot, conveniently located near the M25, ensuring both lifestyle and accessibility. Act quickly—opportunities like this, with extensive planning options and significant growth potential, are not likely to last long!
Plot for sale in Theydon Park Road, Theydon Bois, CM16 — £675,000 • 4 bed • 1 bath • 1645 ft²
Plot for sale in Tysea Hill, Stapleford Abbotts, RM4 — £350,000 • 1 bed • 1 bath • 1400 ft²
Residential development for sale in Old Nazeing Road, Broxbourne, EN10 — £895,000 • 1 bed • 1 bath
Property for sale in Old Nazeing Road, Broxbourne, EN10 — £895,000 • 1 bed • 1 bath
Plot for sale in Coxtie Green Road, Pilgrims Hatch, Brentwood, Essex, CM14 — £1,000,000 • 1 bed • 1 bath • 6634 ft²
Land for sale in Horseman Side, Brentwood, CM14 — £550,000 • 1 bed • 1 bath • 21780 ft²


































