Private garden and parking within easy reach of Manor Park station.
Bright reception room with large contemporary window
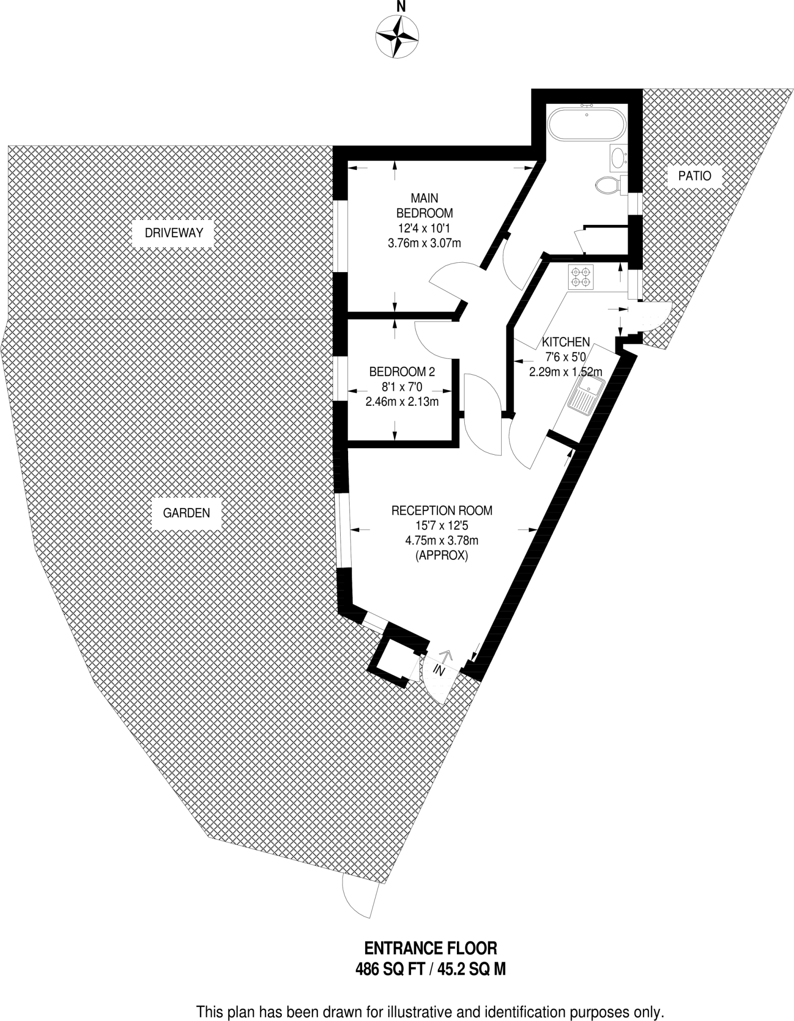
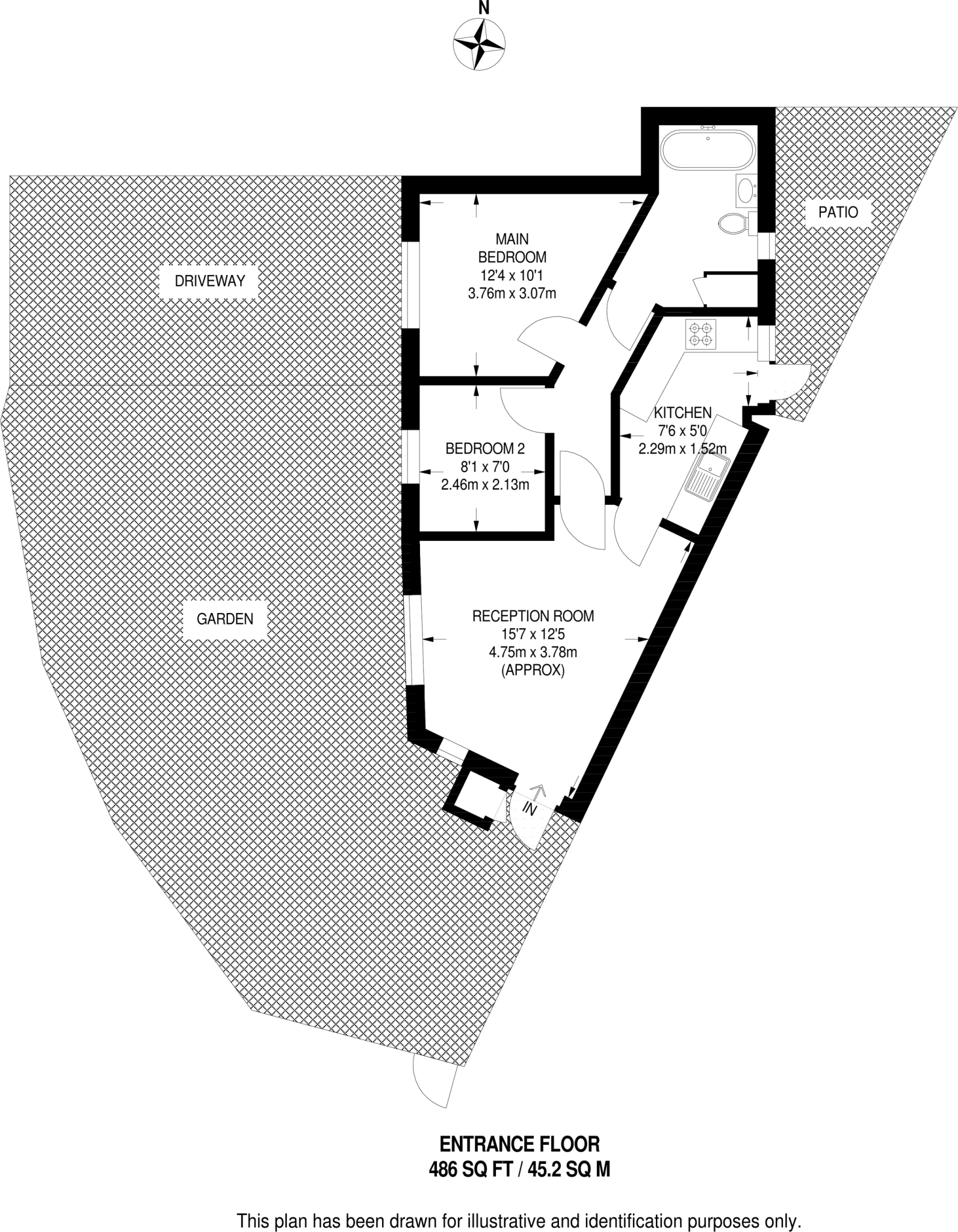
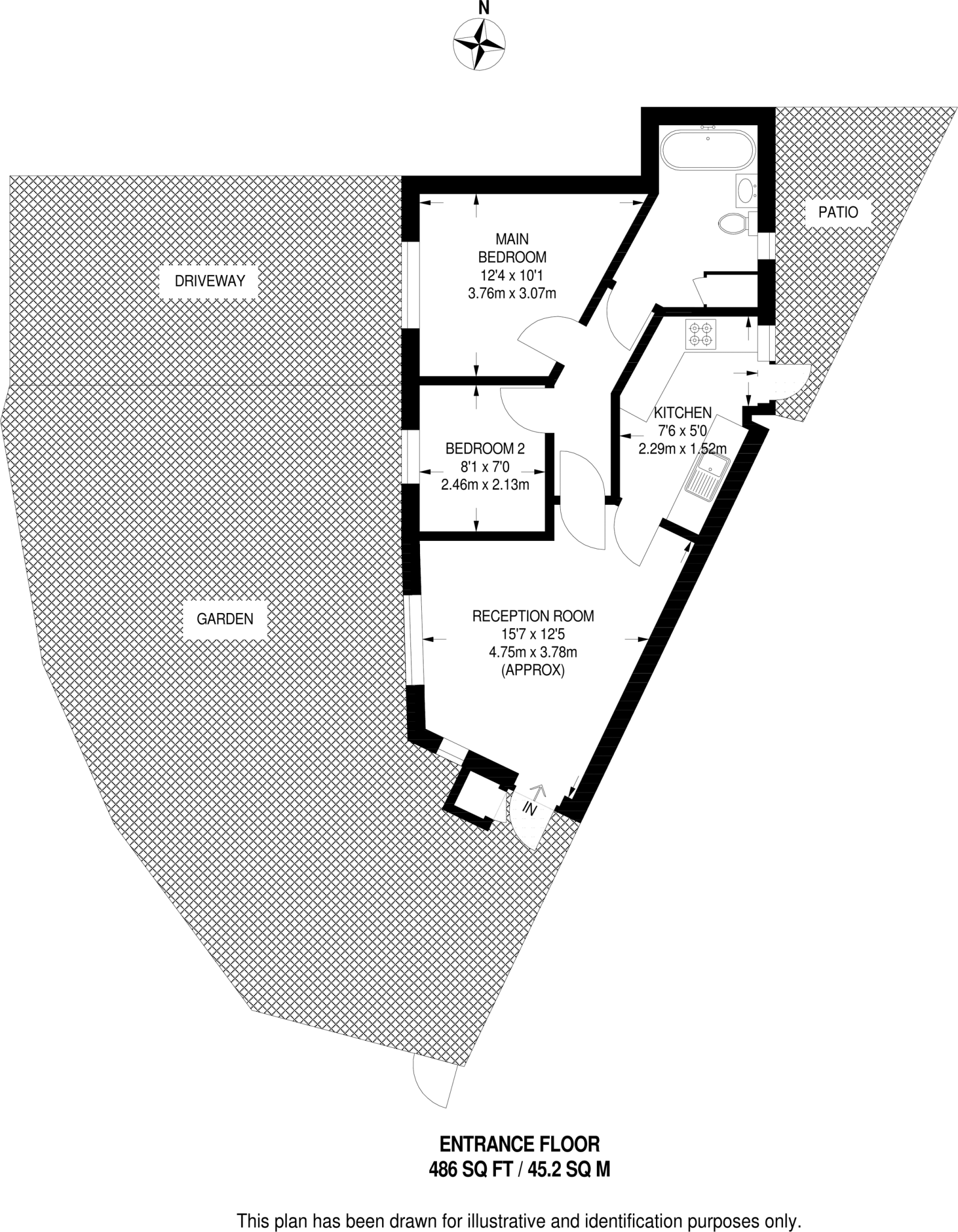
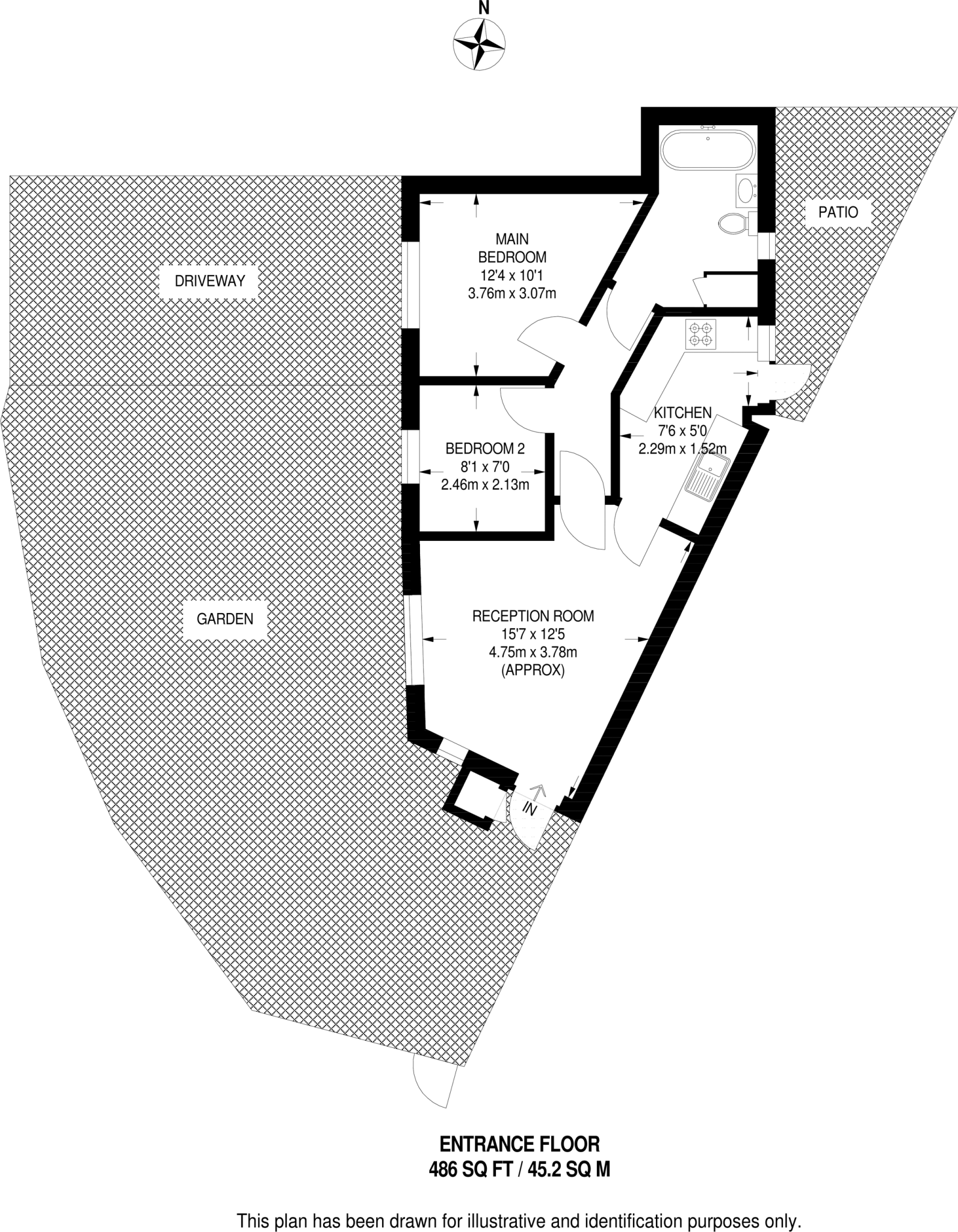
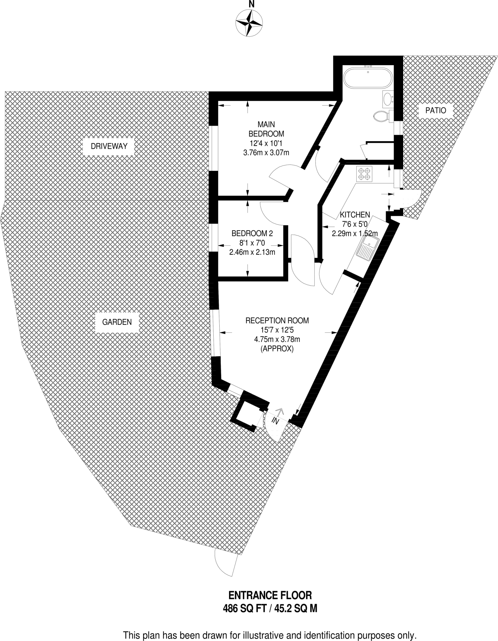
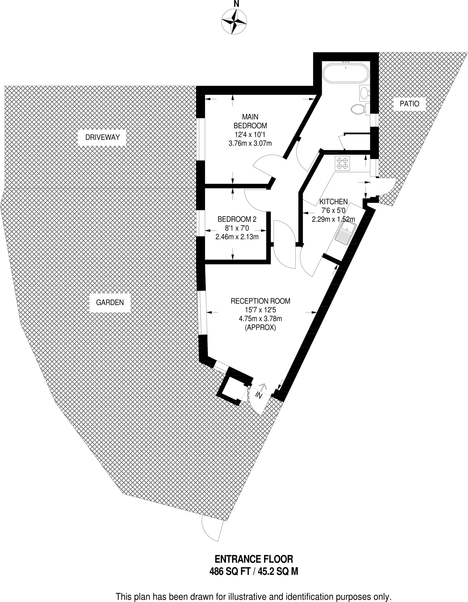
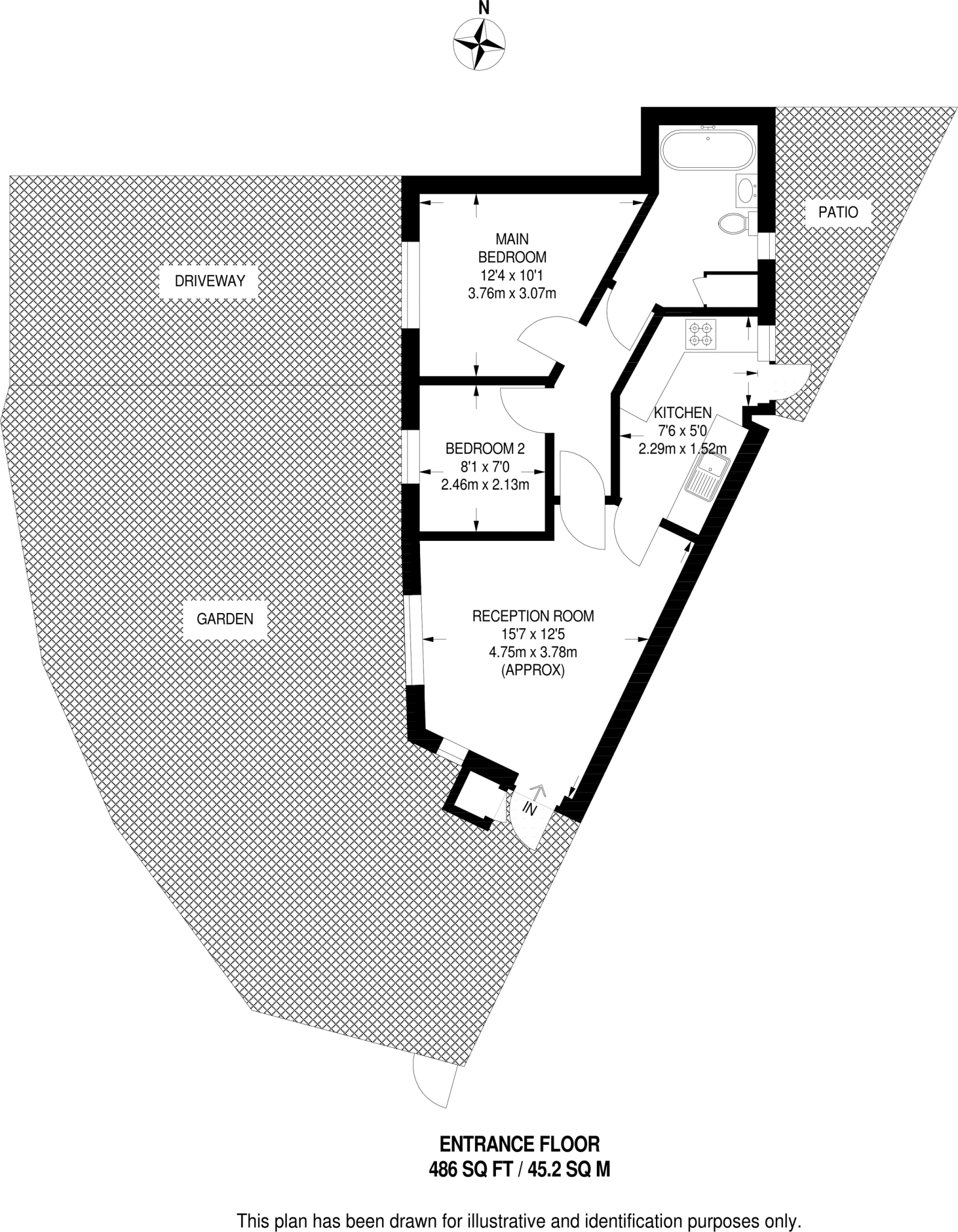
This compact 2-bedroom flat offers sensible, modern living with the rare benefit of a private garden and off-street parking. The bright reception room and separate contemporary kitchen make good use of the 486 sq ft layout, and double glazing installed after 2002 helps reduce heat loss.
The property is leasehold and heated by electric storage heaters, which can be more costly than gas central heating; consider energy running costs and any lease terms before committing. The home was built in the 1980s and presents as well-maintained but small overall, so storage and space are limited compared with larger family homes.
Location is a key asset: quiet residential street close to Manor Park Station, local shops and several well-regarded schools. Broadband speeds are fast and mobile signal is excellent, supporting home working. The surrounding area is classified as deprived and has average crime levels, which may affect long-term resale values for some buyers.
This flat suits a first-time buyer or investor seeking an affordable entry into East London with outdoor space and parking — bearing in mind the leasehold tenure, compact footprint and electric heating when assessing running costs and resale potential.
2 bedroom flat for sale in Clarence Road, Manor Park, London, E12 — £330,000 • 2 bed • 1 bath • 630 ft²
2 bedroom flat for sale in Fairfoot Road, E3, Bow, London, E3 — £375,000 • 2 bed • 1 bath • 736 ft²
2 bedroom flat for sale in Stratford Road, Plaistow, London, E13 — £350,000 • 2 bed • 1 bath • 621 ft²
2 bedroom flat for sale in Alfred Prior House, Manor Park, E12 — £260,000 • 2 bed • 1 bath • 721 ft²
2 bedroom flat for sale in Durham Road, Manor Park, London, E12 — £350,000 • 2 bed • 1 bath • 637 ft²
2 bedroom flat for sale in Cheshunt Road E7, Forest Gate, London, E7 — £270,000 • 2 bed • 1 bath • 539 ft²


















































































































































































































































































































































































































































