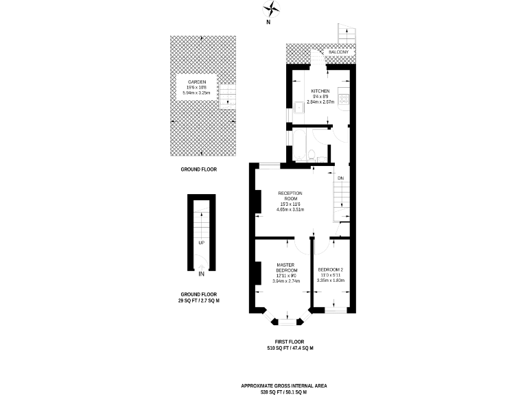
First-floor home with balcony, private garden and easy access to parks and stations.
Bright contemporary interiors with hardwood flooring
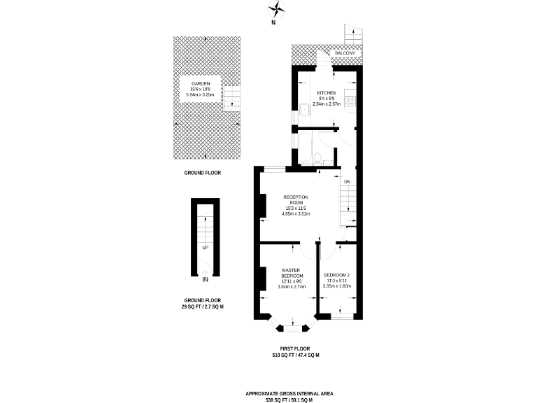
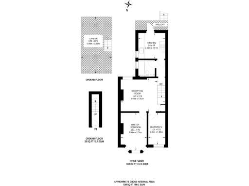
Set on the first floor of a period terrace, this two-bedroom apartment offers bright, contemporary interiors and character features such as high ceilings and hardwood floors. A private ground-floor entrance leads to a compact layout that includes a balcony and a private garden — rare extras for a home at this price point in Forest Gate.
Transport and local amenities are strong selling points: Forest Gate and Upton Park stations are walkable, Romford Road shops are close by, and Wanstead Flats and the Queen Elizabeth Olympic Park are within easy reach. Fast broadband and excellent mobile reception suit homeworking or streaming.
Practical facts to note: the property is leasehold and relatively small at about 539 sq ft, with a single bathroom. The building dates from the 1950–66 period and walls are likely solid brick with no added insulation, so heating efficiency may be below modern standards. The surrounding area scores as relatively deprived, though several highly rated primary and secondary schools are nearby.
This apartment will suit first-time buyers or couples seeking an affordable entry into East London with outdoor space and transport links. Buyers prepared to update heating/insulation or personalise finishes will unlock further value; those seeking a larger footprint should consider alternatives.
2 bedroom flat for sale in St. Georges Road, Forest Gate, London, E7 — £365,000 • 2 bed • 1 bath • 751 ft²
2 bedroom flat for sale in Kinglet Close, Forest Gate, London, E7 — £375,000 • 2 bed • 1 bath • 709 ft²
2 bedroom flat for sale in Upton Heights, Forest Gate, London, E7 — £300,000 • 2 bed • 1 bath • 660 ft²
2 bedroom flat for sale in Clova Road, Forest Gate, London, E7 — £375,000 • 2 bed • 1 bath • 809 ft²
2 bedroom flat for sale in Park Road, Stratford, London, E15 — £375,000 • 2 bed • 1 bath • 648 ft²
2 bedroom apartment for sale in Dames Road, London, E7 — £375,000 • 2 bed • 1 bath • 646 ft²














































































































































































































































































