Well-sized two-bedroom home near excellent transport and schools.
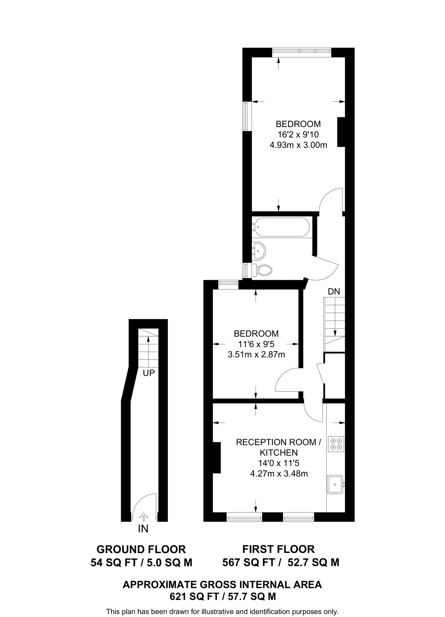
First-floor two-bedroom flat, approximately 621 sq ft
Generous reception room with dining space and open-plan kitchen
Large main bedroom with ample built-in storage
Sleek bathroom with white suite; contemporary interior finishes
Leasehold tenure—check remaining term and service charges
Electric storage heaters; no gas central heating, higher running costs
Solid brick walls with assumed no insulation; potential retrofit needed
Area deprived with above-average crime—consider security and insurance
This well-presented two-bedroom first-floor flat offers comfortable living space and practical layout for a first-time buyer. The generous reception room accommodates a dining area and flows to an open-plan kitchen fitted with contemporary fixtures. The main bedroom is notably large with good built-in storage; the second bedroom is well proportioned for guests or a home office.
The building dates from 1900–1929 and retains period character externally. Internally the property is updated with a sleek white-suite bathroom, double glazing (installation date unknown) and electric storage heating. At approximately 621 sq ft, the flat sits close to Plaistow and Stratford amenities, multiple outstanding primary schools, and excellent transport links—suitable for commuters and local families.
Buyers should note the tenure is leasehold and the block is mid-terrace solid brick construction with assumed no wall insulation. The exterior shows signs of historic wear and may need renovation; heating is electric storage heaters rather than gas, which can affect running costs. The area is classified as deprived with above-average crime statistics—important considerations for budgeting and insurance.
This property suits a purchaser seeking a central, well-sized flat with immediate usability and further potential to add value through targeted external and energy-efficiency improvements. Investors and first-time buyers will appreciate the location and rental demand nearby, while families will value proximity to highly rated schools.
2 bedroom flat for sale in Grange Road, Plaistow, London, E13 — £350,000 • 2 bed • 1 bath • 793 ft²
2 bedroom flat for sale in Clarence Road, Manor Park, London, E12 — £330,000 • 2 bed • 1 bath • 630 ft²
2 bedroom flat for sale in Prince Regent Lane, London, E13 — £325,000 • 2 bed • 1 bath • 623 ft²
2 bedroom apartment for sale in Prince Regent Lane, London, E13 — £270,000 • 2 bed • 1 bath • 586 ft²
2 bedroom flat for sale in Chamberlain Court, Upton Park, London, E13 — £450,000 • 2 bed • 2 bath • 856 ft²
2 bedroom flat for sale in Hallings Wharf Studios, Stratford, London, E15 — £350,000 • 2 bed • 1 bath • 845 ft²










































