Design and build a generous family home with countryside views.
Planning permission in place for ~3,000 sqft four-bedroom detached home
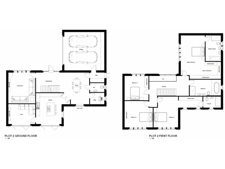
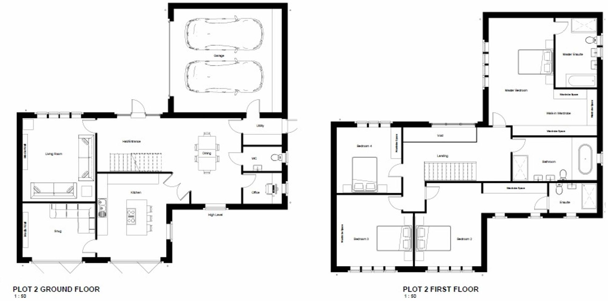
This very large single building plot comes with recently granted planning permission for a contemporary four-bedroom detached family house of approximately 3,000 sqft. The proposed design includes a generous entrance, home office, large lounge, open-plan kitchen with bifold doors to the garden, utility, impressive principal and second bedrooms with dressing areas and en‑suites, two further double bedrooms, a house bathroom and a double garage.
Set on the edge of Denby Dale with wide rear views over open fields, the plot sits within an exclusive two-plot development a short walk from the village centre, local pub and countryside walks. The site offers excellent mobile signal and low local crime, making it attractive for families seeking space, privacy and rural outlook while remaining close to local schools, several of which are rated Good or Outstanding.
Buyers should note practical points: services are nearby but will need connecting, and the two plots share costs for the front driveway and the boundary between plots. Broadband speeds in the area are very slow, and once built the property would be in a relatively high council tax band. The plot is freehold and presents scope to build a spacious, energy-efficient home with solar-ready design features as shown in planning materials.
This is a rare chance to design and deliver a substantial family home in a prosperous, low-crime area with strong schooling nearby. The site suits purchasers wanting seclusion, sizeable gardens and long-term value, but those prioritising immediate high-speed broadband or turnkey delivery should factor in additional connection and build costs.
Land for sale in Barnsley Road, Denby Dale, HD8 — £400,000 • 5 bed • 3 bath • 22034 ft²
Plot for sale in Commercial Road, Skelmanthorpe, HD8 — £225,000 • 4 bed • 2 bath • 1903 ft²
Plot for sale in Nine Acre House, Chevet Lane, Chevet, WF2 — £725,000 • 4 bed • 4 bath • 4300 ft²
Plot for sale in Land at Foxglove Road, Almondbury, HD5 — £375,000 • 1 bed • 1 bath • 4000 ft²
Plot for sale in Foxroyd Lane, Thornhill, WF12 — £250,000 • 1 bed • 1 bath • 3000 ft²
3 bedroom detached house for sale in Burton Road, Monk Bretton, Barnsley, S71 — £430,000 • 3 bed • 1 bath • 1500 ft²






















































