WF2 6PT - 4 bed nine acre building plot in Chevet Lane, WF2 6PT

View on Property Piper

Plot for sale in Nine Acre House, Chevet Lane, Chevet, WF2

Summary - HILL TOP HOUSE, CHEVET LANE WF2 6PT

4 bed 4 bath Plot

Substantial approved build plot with panoramic valley views and expansive grounds.
Approximately 9 acres of private land surrounding the plot
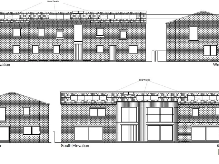
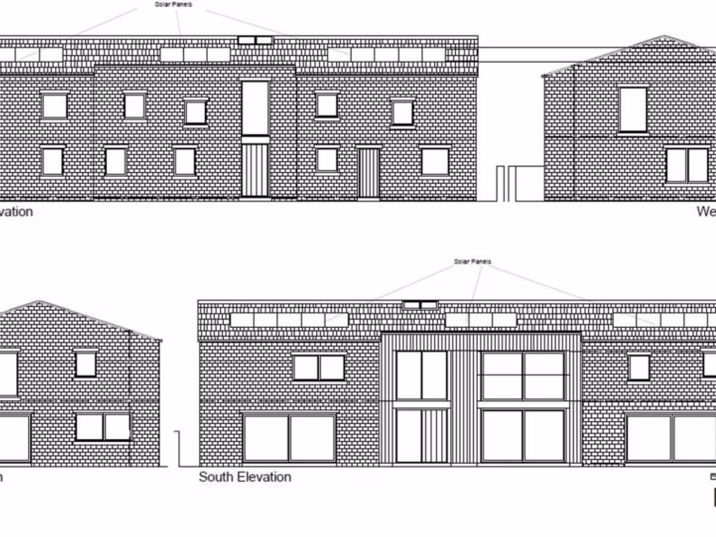
Planning permission drawn and approved for a 4,300 sqft dwelling
Current approved layout shown as three-bed; adaptable to four bedrooms
Substantial new-build: purchaser responsible for construction costs
Superb valley views and large glazed elevations in the design
Freehold plot with driveway and garage provision shown
Affluent rural location; fast broadband, average mobile signal
Hamlet/isolated setting — private but limited immediate services
A rare, private opportunity: approximately nine acres surrounding an approved building plot for a 4,300 sq ft new home with valley views. The site benefit from planning permission already drawn and approved following removal of a former equestrian building, allowing a substantial contemporary residence to be constructed to your specification. The approved design makes extensive use of large windows and outdoor aspect to capture the panorama and natural light.

The drawings currently show a three-bedroom layout, with clear and practicable scope to adapt internal arrangements to provide four bedrooms as advertised. The design includes a very large open-plan dining/kitchen/family space, principal suite with dressing room and en-suite, further double bedrooms with en-suites, home office/study areas, utility and integral garage.

Buyers should note this is a plot sale for a new build: construction, final finishes and landscaping are the purchaser’s responsibility. Services, build costs and timing will therefore be key considerations. The site is freehold, in an affluent countryside setting with good broadband, average mobile signal and easy road access to Wakefield, local villages and motorway links.

This location will suit purchasers seeking a substantial, bespoke family house in a private rural setting, or investors/developers able to manage a large new-build project. There is excellent local schooling and abundant outdoor amenity on-site including meadow and woodland.

Property Details

Image Descriptions

Textual Property Features

Target Audience

AI Tags

Detected Visual Features

Nearby Schools

Nearest Bars And Restaurants

,,,,}

Nearest General Shops

,,}

Nearest Grocery shops

,,}

Nearest Supermarkets

,,}

Nearest Religious buildings

,,}

Nearest Medical buildings

,,,}

Nearest Airports

}

Nearest Leisure Facilities

,,,,}

Nearest Tourist attractions

,,}

Nearest Train stations

,,,,}

Nearest Bus stations and stops

,,,,}

Nearest Hotels

,,}

Tags

Local Market Stats

Similar Properties

Meta

High Res Images

Compatible Images

Low res Images

Thumbnails

Raw Images

High Res Floorplan Images

Compatible Floorplan Images

Low res Floorplan Images

FloorplanImages Thumbnail

Raw Floorplan Images