HD5 8LW - Plot for sale in Land at Foxglove Road, Almondbury, HD5

View on Property Piper

Plot for sale in Land at Foxglove Road, Almondbury, HD5

Summary - Land at Foxglove Road, Almondbury HD5 8LW

1 bed 1 bath Plot

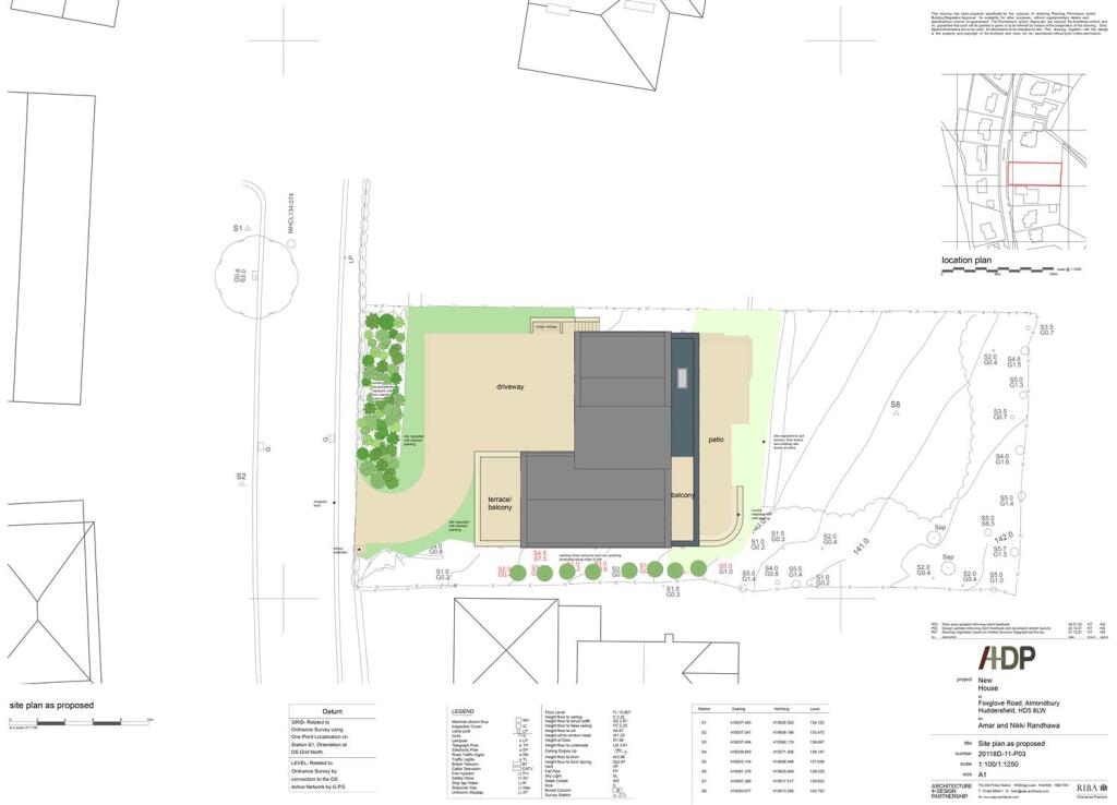
Rare freehold Almondbury plot with planning for a substantial bespoke 4,000 sq ft home.
Planning permission granted Nov 2023 (App 2022/62/92372/W)
Freehold plot with proposed 4,000 sq ft dwelling
Large, private plot backing onto mature treeline
Currently overgrown; requires clearance and landscaping
Services not tested — buyer to confirm utility connections
No flood risk; low local crime; very affluent area
Mobile signal average; broadband reported fast
Measurements indicative only; commission surveys
This large freehold plot in Almondbury offers a rare self-build or small-development opportunity with planning permission granted (application 2022/62/92372/W, Nov 2023) for a substantial c.4,000 sq ft dwelling. Set in an affluent, low-crime neighbourhood and backing onto mature treeline, the site is private and large enough for extensive landscaping, gardens or a bespoke family home.

The land is currently overgrown and requires clearance and landscaping; services have not been tested and measurements in the marketing material are for guidance only. Buyers should factor in site preparation, connection costs for utilities, and any garden remediation. There is no flood risk recorded, but mobile signal is average and broadband is reported fast.

This parcel suits a homeowner-builder who wants control over design and specification, or a developer seeking a single high-quality new-build in a desirable suburb. Planning consent reduces initial planning risk, but prospective purchasers should verify the consent details, service connections and construction costs before committing.

Practical considerations: the plot is sold freehold and lies within a very affluent, predominantly retirement-orientated local profile. Nearby schools and local amenities serve families well, which keeps longer-term resale prospects positive. Expect groundwork, clearance and technical surveys to be required prior to construction.

Property Details

Brochure Descriptions

Image Descriptions

Textual Property Features

Target Audience

AI Tags

Detected Visual Features

Nearby Schools

Nearest Bars And Restaurants

,,,,}

Nearest General Shops

,,}

Nearest Grocery shops

,,}

Nearest Supermarkets

,,}

Nearest Religious buildings

,,}

Nearest Medical buildings

,,,}

Nearest Airports

}

Nearest Leisure Facilities

,,,,}

Nearest Tourist attractions

,,}

Nearest Train stations

,,,,}

Nearest Bus stations and stops

,,,,}

Nearest Hotels

,,}

Tags

Local Market Stats

AirBnB Data

Similar Properties

Meta

High Res Images

Compatible Images

Low res Images

Thumbnails

Raw Images