Design and build your own two-storey home on a well-connected Soham plot.
- Eleven self-build plots; sizes c.207–511 m²
- Suitable for two-storey detached houses 80–120 m²
- Utilities provided: drainage, water, telecoms, electrical connection
- Purchaser responsible for detailed planning application and approval
- Build completion required within 12 months of start on site
- Small-to-average gardens; adjacent to existing terraces and pumping station
- Anticipated annual management charge ~£230; purchaser as principal contractor
- Buyers must manage CIL/self-build relief and three-year occupancy rule
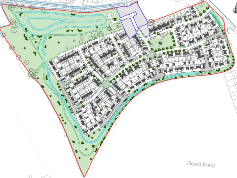
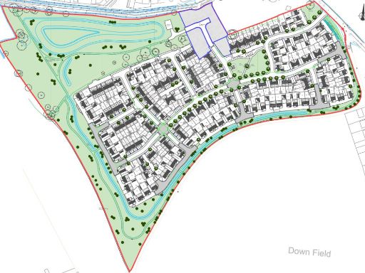
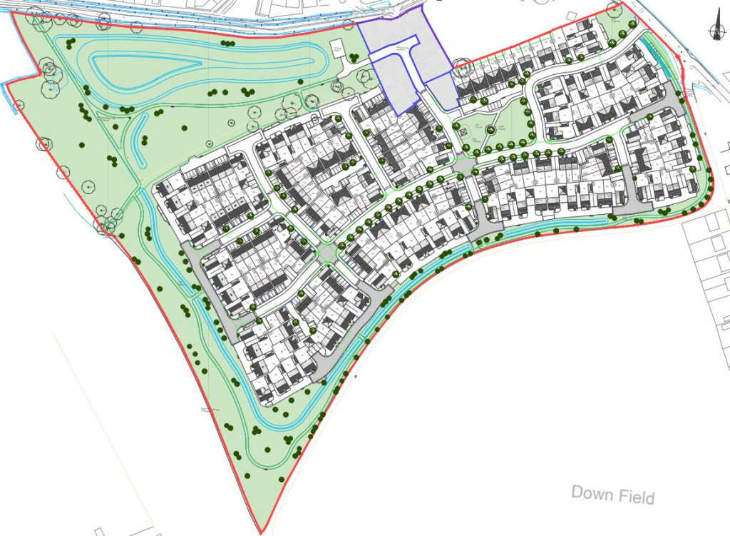
Eleven individual self-build plots are offered on the northern edge of a new development off Fordham Road, Soham, with guide pricing from £150,000. Plot sizes range from about 207–511 m² and are suitable for two‑storey detached houses of roughly 80–120 m² (864–1,217 ft²). Each plot will be served with foul and surface water drainage, potable water and telecom connections, and a point of electrical connection; driveways to be constructed with permeable paving as part of the site-wide surface water strategy.
The principal of development is secured under a Section 106 agreement linked to Outline Planning Permission (ref: 21/00291/OUM), but purchasers must obtain their own detailed planning permission. A draft planning application must be submitted to the vendor for approval and then to the Local Planning Authority within 14 working days of that approval. Construction must be completed within 12 months of start on site and plot purchasers act as their own principal contractor, with responsibility for health and safety and any damage to estate roads or services caused during build.
The site is well connected locally: Soham town centre services are nearby (schools, medical centre, shops), the new Soham railway station is about 1.2 miles away, and road links include the A142 with easy access to the A10 and A14. The plots sit adjacent to existing residential terraces and a pumping station; gardens and footprints are small to average, appropriate for low‑density infill homes. Annual management service charge is anticipated at about £230 and buyers should check Community Infrastructure Levy (CIL) self‑build relief conditions and the three‑year primary residence requirement.
This is a practical opportunity for buyers wanting to design a custom home with utility connections and outline permission in place. It suits purchasers prepared to manage a build project, meet specification controls, and work within the vendor’s design brief and estate management rules.
House for sale in Fordham Road, Ely, Soham, CB7 — £150,000 • 1 bed • 1 bath
House for sale in Fordham Road, Ely, Soham, CB7 — £170,000 • 1 bed • 1 bath
House for sale in Fordham Road, Ely, Soham, CB7 — £170,000 • 1 bed • 1 bath
House for sale in Fordham Road, Ely, Soham, CB7 — £160,000 • 1 bed • 1 bath
House for sale in Cherry Tree Lane, Ely, Soham, CB7 — £150,000 • 1 bed • 1 bath
House for sale in Fordham Road, Ely, Soham, CB7 — £170,000 • 1 bed • 1 bath














