Design and build a contemporary two-storey home close to schools, shops and new rail links.
Serviced plots 207–511 sqm with water, drainage, telecoms and electricity connection points
Principle of development secured under Section 106; purchaser must obtain full planning permission
Plots suitable for two-storey homes ~80–120 sqm; vendor approval required for proposals
Freehold sale; anticipated management charge approximately £230 per annum
Driveways to be permeable paving; designed to support surface water strategy
Purchaser acts as principal contractor; responsible for health & safety and any damage
Construction completion required within 12 months of start; buyer bears build costs
No flood risk; fast broadband and good local transport links (rail, bus, A142/A14)
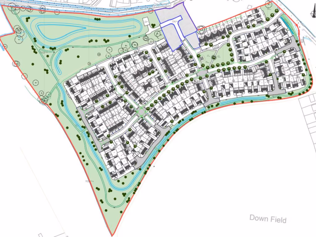
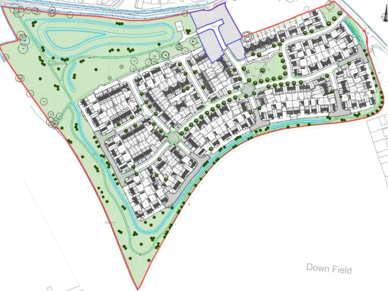
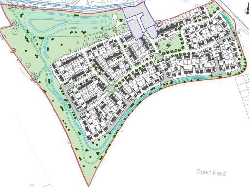
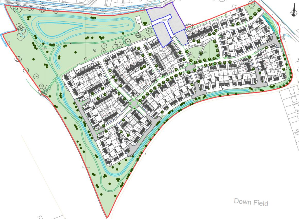
Take control of your new home from the ground up with one of eleven serviced self-build plots on the edge of Soham. Plots range from c.207–511 sqm, suitable for two-storey detached houses between c.80–120 sqm, with connections for water, telecoms and electricity provided to each plot. The site sits within easy reach of Soham’s shops, schools and the new railway station for links to Ely, Cambridge and London.
The principle of development is secured by a Section 106 agreement under the wider outline permission, but purchasers must obtain full planning permission for their individual house. Draft applications need vendor approval and the purchaser will act as principal contractor, responsible for all build health & safety, costs and any damage to estate infrastructure.
This is a practical, value-driven option for buyers wanting to specify finishes and layout rather than buying an off-the-peg home. The plots are freehold, come with low anticipated management charges (c.£230pa) and include permeable paving for driveways to support the site-wide surface water strategy. Completion of construction must be within 12 months of start, and buyers should note the stated requirement to occupy the completed property as their principal residence for three years in order to claim self-build CIL relief.
Suitable for developers, owner-builders and experienced self-builders, these plots give scope for contemporary family homes in a well-connected market town location. Prospective purchasers should factor in planning fees, build costs, vendor approval steps and their responsibility for on-site management and compliance during construction.
House for sale in Fordham Road, Ely, Soham, CB7 — £150,000 • 1 bed • 1 bath
House for sale in Cherry Tree Lane, Ely, Soham, CB7 — £170,000 • 1 bed • 1 bath
House for sale in Fordham Road, Ely, Soham, CB7 — £160,000 • 1 bed • 1 bath
House for sale in Cherry Tree Lane, Ely, Soham, CB7 — £150,000 • 1 bed • 1 bath
House for sale in Cherry Tree Lane, Ely, Soham, CB7 — £150,000 • 1 bed • 1 bath
House for sale in Cherry Tree Lane, Ely, Soham, CB7 — £185,000 • 1 bed • 1 bath














