Design and build your own detached home close to Soham town centre.
Plots range from c.207–511 m² suitable for two-storey homes
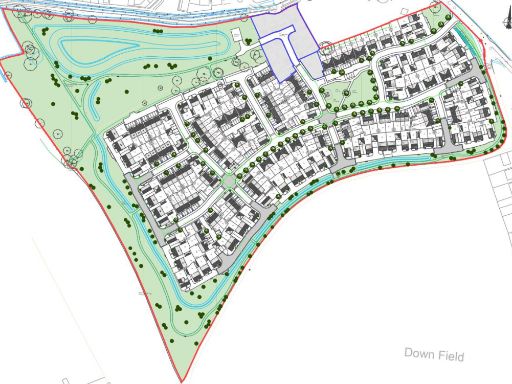
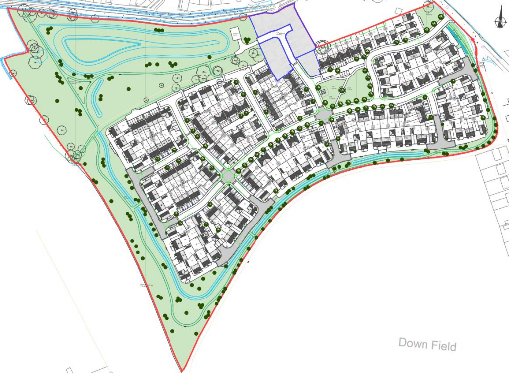
An uncommon chance to buy one of eleven freehold self-build plots on the northern edge of a new residential development off Fordham Road, Soham. Plot sizes vary (approx. 207–511 m²) and are accompanied by services connections and reserved connection points for electricity, water, foul and surface drainage. The principle of development is already secured under the Section 106 agreement (Outline Planning ref: 21/00291/OUM), making this a straightforward starting point for a bespoke two‑storey detached home.
The plots are delivered with vehicular access, permeable block-paved driveways and a site-wide surface water strategy. Indicative dwelling sizes range from about 80.36–120.46 m² (864–1,217 ft²), and the site sits within easy reach of local facilities — primary and secondary schools, medical centre, shops, hourly bus links and the new Soham rail station providing onward travel to Ely, Cambridge and London. Broadband is fast and the area is shown as low flood risk.
Important buyer responsibilities and constraints are clear: purchasers must obtain full planning permission for their proposed dwelling, submit a draft application to the vendor for approval and lodge the application with the Local Planning Authority within 14 working days of that approval. Construction of each dwelling must be completed within 12 months of start on site, and plot buyers become members of a management company with an anticipated annual service charge of around £230.
This opportunity suits buyers who want control over design and specification — self-builders, small developers or buyers seeking a tailored home in a well‑connected market town setting. Note the obligations around planning, completion timescales, membership of the management company and the three‑year occupation requirement linked to Self‑Build Housing Relief for CIL — these are material commitments to factor into costs and timetable.
House for sale in Cherry Tree Lane, Ely, Soham, CB7 — £170,000 • 1 bed • 1 bath
House for sale in Cherry Tree Lane, Ely, Soham, CB7 — £175,000 • 1 bed • 1 bath
House for sale in Cherry Tree Lane, Ely, Soham, CB7 — £150,000 • 1 bed • 1 bath
Plot for sale in Cherry Tree Lane, Ely, Soham, CB7 — £150,000 • 1 bed • 1 bath
House for sale in Cherry Tree Lane, Ely, Soham, CB7 — £170,000 • 1 bed • 1 bath
House for sale in Cherry Tree Lane, Ely, Soham, CB7 — £150,000 • 1 bed • 1 bath














