Design a bespoke two-storey home on a serviced plot near Soham town centre.
Serviced plots with water, telecoms, drainage and electricity connection points provided
Plots range c.207–511 sqm; typical homes 80–120 sqm (two-storey detached)
Principle of development secured under S106; purchaser must obtain full planning permission
Draft planning application must be approved by vendor and submitted within 14 working days
Purchaser is principal contractor; responsible for construction, health & safety and repairs
Anticipated management charge c.£230 per year; freehold with vacant possession
No flood risk; fast broadband and walking distance to new Soham rail station
Smaller plots = compact gardens; building zones and utility easements restrict footprint
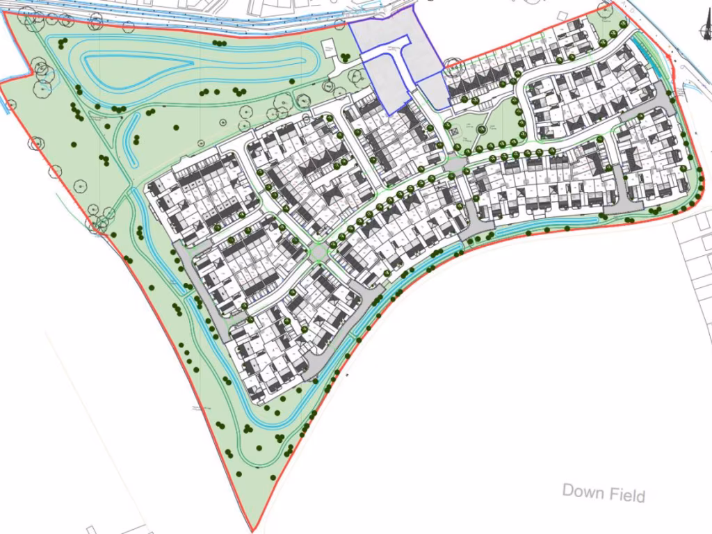
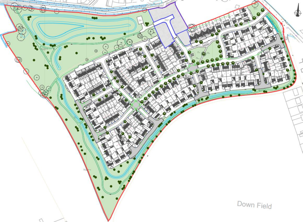
This is one of eleven serviced self-build plots on the northern edge of a new development off Fordham Road, Soham — a practical opportunity to design and build a two-storey home to your own specification. Plots range from c.207–511 sqm, with typical house footprints for 80–120 sqm dwellings. Services for foul and surface water drainage, potable water, telecoms and electricity connection points are provided, and driveways will use permeable paving to meet the site strategy.
The principle of development is secured under a Section 106 agreement (Outline ref: 21/00291/OUM), but purchasers are responsible for submitting and securing full planning permission for their chosen house. Draft applications must be shown to the vendor for approval and lodged with the local authority within 14 working days of that approval. Successful buyers will act as their own principal contractor and must follow the vendor’s Construction and Environmental Management Plan.
Practical benefits include easy access to Soham town centre services, a recently reopened local rail station (walking/cycling distance), hourly bus routes to Cambridge/Newmarket/Ely, fast broadband and average crime levels. There is a modest annual management charge (c. £230) and freehold tenure with vacant possession. No VAT is charged on the sale price.
Important considerations: you must obtain planning permission and manage construction, including repair of any damage caused to estate roads/services. Community Infrastructure Levy rules mean the new home must remain your principal residence for three years to retain self-build relief — seek professional tax/planning advice. Smaller plots will yield compact gardens and homes; refer to the Plot Passport Plan for building zones and utility easements before designing your layout.
House for sale in Fordham Road, Ely, Soham, CB7 — £170,000 • 1 bed • 1 bath
House for sale in Fordham Road, Ely, Soham, CB7 — £165,000 • 1 bed • 1 bath
House for sale in Fordham Road, Ely, Soham, CB7 — £150,000 • 1 bed • 1 bath
House for sale in Fordham Road, Ely, Soham, CB7 — £150,000 • 1 bed • 1 bath
House for sale in Fordham Road, Ely, Soham, CB7 — £170,000 • 1 bed • 1 bath
House for sale in Fordham Road, Ely, Soham, CB7 — £160,000 • 1 bed • 1 bath














