Design and build your own two-storey home near Ely with services ready to connect.
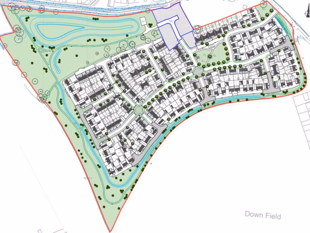
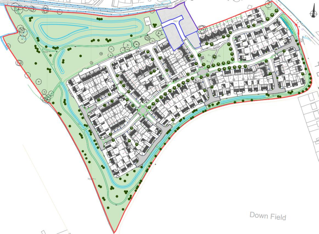
Self-build plots freehold, sizes c.207–511 sqm
An uncommon chance to buy one of eleven freehold self-build plots on the northern edge of a new development off Fordham Road, Soham. Plots range from c.207–511 sqm and are sized for two‑storey detached homes of roughly 80–120 sqm (864–1,217 ft²). Essential services will be provided to each plot: foul and surface drainage, potable water, telecoms and electricity connection points; driveways will use permeable paving to align with the site drainage strategy.
This opportunity suits a hands‑on buyer who wants to design and specify a home to their own taste. The site is well placed for local amenities, schools and frequent bus links to Ely, Newmarket and Cambridge; Soham railway station (opened 2021) is about 1.2 miles away. Broadband speeds are reported as fast, and the plots have no recorded flood risk.
Buyers should note material responsibilities and constraints. Purchasers must obtain full planning permission for their dwelling (the principle is secured under the Section 106 of the wider outline permission), submit a draft application for vendor approval, and lodge the planning application within 14 working days of approval. The vendor must approve the draft (approval not to be unreasonably withheld) and the design must respect the site’s Plot Passport building zones, utility easements and street interface requirements.
Construction must usually finish within 12 months of start to limit disruption; plot buyers act as principal contractor and are accountable for health & safety on site and any damage to estate roads or services caused during build. There is an anticipated annual management service charge of about £230 and the self‑build CIL relief rules require the dwelling remain the builder’s principal residence for three years to retain relief. These practical obligations are offset by clear parcelisation, service connections and the freedom to create a bespoke home in a well‑connected town fringe location.
House for sale in Fordham Road, Ely, Soham, CB7 — £150,000 • 1 bed • 1 bath
House for sale in Fordham Road, Ely, Soham, CB7 — £160,000 • 1 bed • 1 bath
Plot for sale in Cherry Tree Lane, Ely, Soham, CB7 — £150,000 • 1 bed • 1 bath
House for sale in Cherry Tree Lane, Ely, Soham, CB7 — £170,000 • 1 bed • 1 bath
House for sale in Cherry Tree Lane, Ely, Soham, CB7 — £150,000 • 1 bed • 1 bath
House for sale in Cherry Tree Lane, Ely, Soham, CB7 — £185,000 • 1 bed • 1 bath














