Create a custom detached home close to schools, shops and good transport links.
- Eleven self-build plots from c.207–511 sqm
- Indicative homes 80–120 sqm (864–1,217 ft²)
- Services: foul, surface water, potable water, telecoms, electricity point
- Vehicular access and parking to meet council standards
- Purchaser must obtain full planning permission (vendor approval step)
- Construction completion required within 12 months of start
- Management charge approx. £230 per year
- You act as principal contractor; responsible for H&S and site repairs
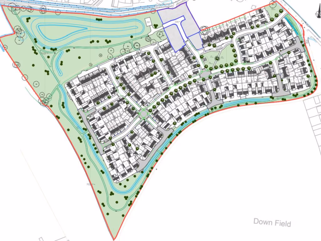
An opportunity to design and build your own two-storey home on one of eleven self-build plots at Cherry Tree Farm, Soham. Plots range from c.207–511 sqm with developable house sizes from about 80–120 sqm (864–1,217 ft²). Basic infrastructure is provided: foul and surface drainage, potable water, telecoms and an electricity connection point.
The site sits on the northern edge of a new development with good local services nearby — primary and secondary schools, convenience stores, medical centre, and an hourly bus to Ely, Cambridge and Newmarket. Soham railway station is roughly 1.2 miles away, giving rail links to Ely and beyond. Vehicle access to the A142/A10/A14 is straightforward for regional commuting.
Purchasers must obtain full planning permission for their chosen dwelling; the principle of development is secured under the Section 106 linked to the outline permission. Plot buyers will submit a draft application for vendor approval and must progress the planning submission within a short contractual window. Construction completion is required within 12 months of start on site, and purchasers become members of a Management Company with an anticipated annual charge of c.£230.
This is a practical choice for self-builders or small-scale developers wanting a relatively quick plot with mains services in place. Be aware: you are the principal contractor, responsible for planning, health & safety, site damage and securing any CIL/self-build relief — that administrative and build risk suits buyers comfortable managing a bespoke project.
House for sale in Cherry Tree Lane, Ely, Soham, CB7 — £170,000 • 1 bed • 1 bath
Plot for sale in Cherry Tree Lane, Ely, Soham, CB7 — £150,000 • 1 bed • 1 bath
House for sale in Cherry Tree Lane, Ely, Soham, CB7 — £170,000 • 1 bed • 1 bath
House for sale in Cherry Tree Lane, Ely, Soham, CB7 — £175,000 • 1 bed • 1 bath
House for sale in Cherry Tree Lane, Ely, Soham, CB7 — £160,000 • 1 bed • 1 bath
House for sale in Cherry Tree Lane, Ely, Soham, CB7 — £150,000 • 1 bed • 1 bath














