Spacious family living with west-facing garden and four bathrooms.
Double reception plus separate study for flexible family living
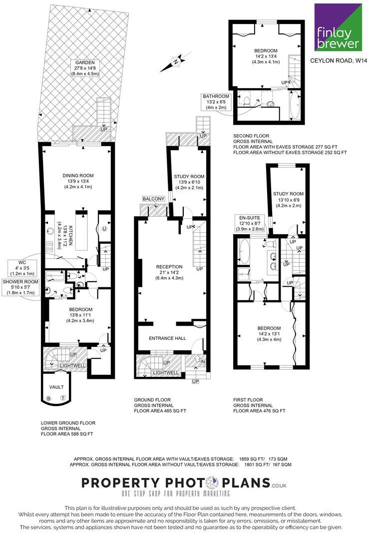
Light-filled Victorian townhouse arranged over four floors, designed for family living and flexible entertaining. The raised ground double reception, separate study and a custom-built kitchen/dining room give clear living and dining zones, while the lower-ground bedroom with ensuite and the principal suite occupying the entire first floor add privacy for family members or guests. The west-facing garden and a small balcony extend usable space outdoors and bring afternoon sun into the house.
The house is presented in a contemporary style with hardwood floors, a limestone fireplace and high-quality joinery; it is described as move-in ready and requires no immediate works. Practical details include four bathrooms (three en suite), a guest cloakroom, useful storage and a small plot typical of inner-London terraces. Broadband speeds are average but mobile signal is excellent.
Buyers should note some important facts: the property sits in Council Tax Band G (expensive) and the EPC rating is to be confirmed. The plot and garden are small to average for the area, and the layout is multi-level, which may suit families comfortable with stairs but could challenge those needing single-level accommodation.
Overall this freehold terrace offers a strong central Hammersmith location, a family-friendly layout, good natural light and quality finishes — attractive to families seeking ready-to-live-in period accommodation with modern conveniences.
5 bedroom house for sale in Frithville Gardens, London W12 — £2,395,000 • 5 bed • 3 bath • 2304 ft²
4 bedroom house for sale in Sterndale Road, London W14 — £2,350,000 • 4 bed • 3 bath • 2232 ft²
5 bedroom terraced house for sale in Lena Gardens, London W6 — £2,295,000 • 5 bed • 3 bath • 2270 ft²
5 bedroom house for sale in Minford Gardens, London W14 — £2,275,000 • 5 bed • 4 bath • 2325 ft²
4 bedroom house for sale in Percy Road, London W12 — £1,625,000 • 4 bed • 3 bath • 2084 ft²
4 bedroom house for sale in Bolingbroke Road, London W14 — £2,400,000 • 4 bed • 3 bath • 2120 ft²


























































