W12 7JG - 5 bedroom house for sale in Frithville Gardens, London W12

View on Property Piper

5 bedroom house for sale in Frithville Gardens, London W12

Summary - 23 Frithville Gardens W12 7JG

5 bed 3 bath House

Large newly refurbished five-bed house with garden, chain-free and move-in ready.
Five bedrooms and three bathrooms, including principal en suite
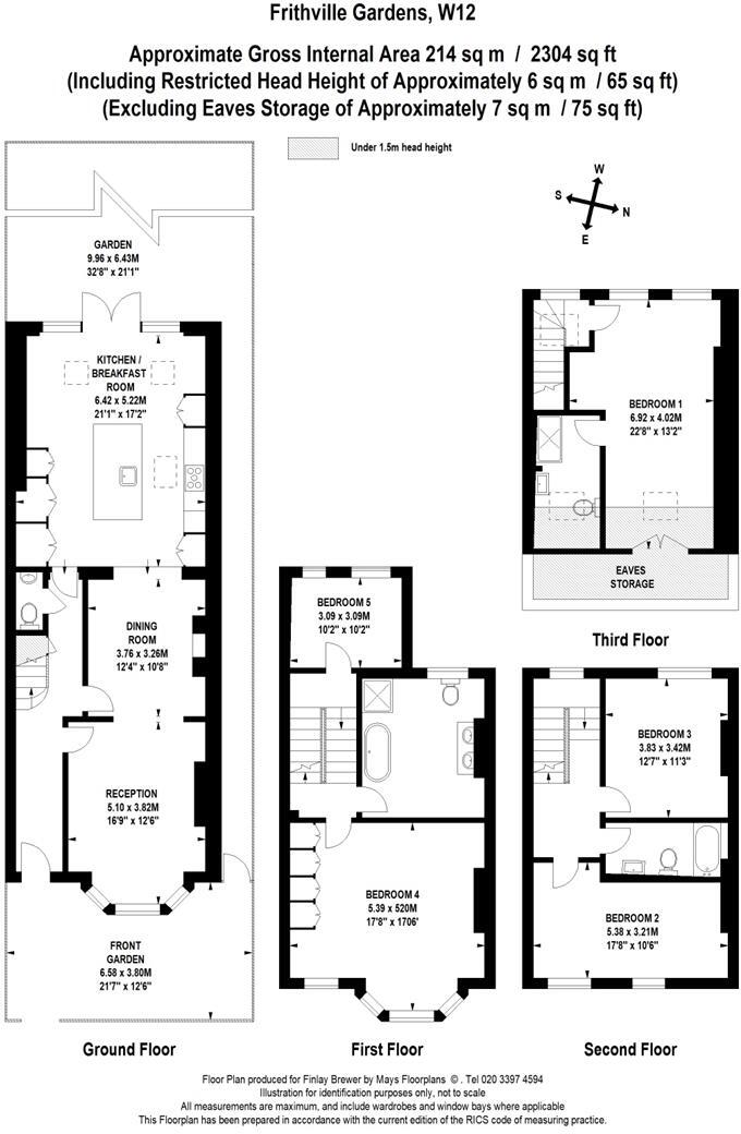
This substantial newly refurbished Victorian end-terrace offers generous family living across four storeys with five bedrooms and three bathrooms. The elegant double reception retains high ceilings, a bay window and a marble fireplace; it flows into a full-width bespoke kitchen/breakfast room with island, marble worktops and integrated appliances. Crittall-style doors open onto a west-facing paved and decked garden ideal for afternoon light and entertaining.

The house is offered chain-free and appears ready to move into following a high-standard refurbishment. The layout includes a ground-floor guest cloakroom and a versatile fifth room suitable as a study or bedroom. At about 2,304 sq ft, the property provides substantial accommodation for a growing family and sits conveniently close to Hammersmith Park, Westfield and Central line transport links.

Buyers should note practical and running-costs facts: the EPC is rated D (55) and the property sits in Council Tax Band G, which reflects higher local taxes. Construction is solid brick (1930s–1940s) with no known installed wall insulation; further insulation or energy upgrades could improve efficiency and running costs.

The house is in a lively inner-city location with excellent broadband and mobile signal, broad local amenities and strong school options nearby. However, local crime levels are very high — an important factor for families to consider when viewing and planning security or lifestyle arrangements.

Property Details

Brochure Descriptions

Image Descriptions

Floorplan Description

Rooms

Textual Property Features

Target Audience

AI Tags

Detected Visual Features

EPC Details

Nearby Schools

Nearest Bars And Restaurants

,,,,}

Nearest General Shops

,,}

Nearest Grocery shops

,,}

Nearest Supermarkets

,,}

Nearest Religious buildings

,,}

Nearest Medical buildings

,,,}

Nearest Airports

,}

Nearest Leisure Facilities

,,,,}

Nearest Tourist attractions

,,}

Nearest Train stations

,,,,}

Nearest Bus stations and stops

,,,,}

Nearest Hotels

,,}

Tags

Local Market Stats

AirBnB Data

Similar Properties

Meta

High Res Images

Compatible Images

Low res Images

Thumbnails

Raw Images

High Res Floorplan Images

Compatible Floorplan Images

Low res Floorplan Images

FloorplanImages Thumbnail

Raw Floorplan Images