Characterful three-bedroom home with large garden and excellent transport links.
Chain-free freehold sale, simplifies purchase process
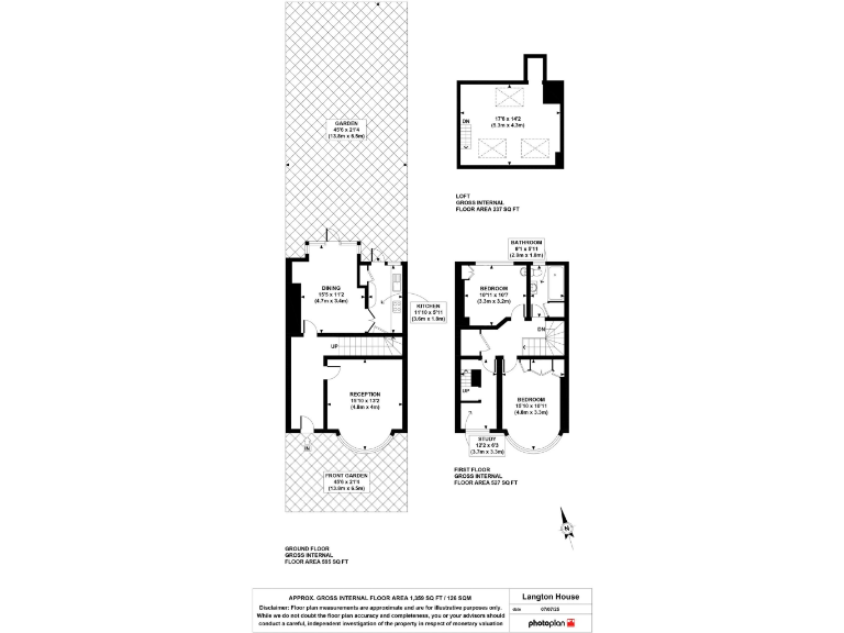
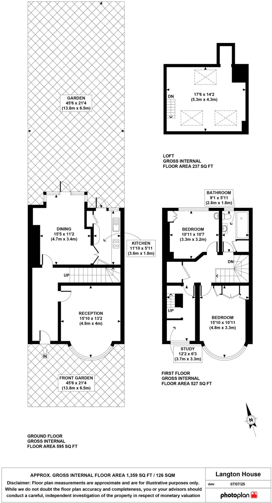
Approximately 1,359 sq ft internal space including loft conversion
Loft conversion provides a large third bedroom or home office
Large rear garden and substantial plot with extension potential
Close to Gladstone Park and Dollis Hill (Jubilee) Tube station
Single bathroom for three bedrooms may be limiting for families
1930s solid-brick build likely without cavity insulation
Some rooms described as requiring refurbishment or modernisation
Set on the popular Dollis Hill Estate, this three-bedroom terrace offers generous family living with immediate access to Gladstone Park and Dollis Hill (Jubilee) Tube. The house extends to about 1,359 sq ft including a loft conversion that forms a large bedroom — useful for a growing family or home office. Chain-free freehold sale simplifies the move.  
Internally the home benefits from gas central heating and double glazing, and retains attractive 1930s bay-window character and parquet-style flooring in parts. The large rear garden (noted as 43'2 x 16'5 in parts of the listing) and sizeable plot give space for children, gardening or an extension (subject to permissions). Local schools are well-regarded and a wide range of amenities and transport links are within easy reach.  
There is clear scope to update and personalise: several descriptions indicate a mix of modern fittings and areas needing refurbishment. The property has a single bathroom for three bedrooms, and the solid-brick 1930s construction likely lacks cavity wall insulation — consider energy improvement costs. Council tax is above average.  
Overall this is a spacious, characterful family home in a well-connected NW10 location. Buyers seeking immediate move-in comfort will value the heating and glazing; those wanting more space/value can capitalise on the large plot and loft footprint to modernise or extend (subject to consents).
 5 bedroom semi-detached house for sale in Fleetwood Road, London NW10 — £999,950 • 5 bed • 2 bath • 1735 ft²
 5 bedroom semi-detached house for sale in Fleetwood Road, London NW10 — £999,950 • 5 bed • 2 bath • 1735 ft² 4 bedroom semi-detached house for sale in Dollis Hill Lane, London, NW2 — £950,000 • 4 bed • 2 bath • 1482 ft²
 4 bedroom semi-detached house for sale in Dollis Hill Lane, London, NW2 — £950,000 • 4 bed • 2 bath • 1482 ft² 3 bedroom terraced house for sale in Fleetwood Road, London, NW10 — £850,000 • 3 bed • 1 bath • 1110 ft²
 3 bedroom terraced house for sale in Fleetwood Road, London, NW10 — £850,000 • 3 bed • 1 bath • 1110 ft² 5 bedroom semi-detached house for sale in Dollis Hill Lane, London, NW2 — £780,000 • 5 bed • 3 bath • 1742 ft²
 5 bedroom semi-detached house for sale in Dollis Hill Lane, London, NW2 — £780,000 • 5 bed • 3 bath • 1742 ft² 3 bedroom terraced house for sale in Clifford Way, London, NW10 — £600,000 • 3 bed • 1 bath • 1152 ft²
 3 bedroom terraced house for sale in Clifford Way, London, NW10 — £600,000 • 3 bed • 1 bath • 1152 ft² 3 bedroom end of terrace house for sale in Aberdeen Road, London NW10 — £899,950 • 3 bed • 2 bath • 1394 ft²
 3 bedroom end of terrace house for sale in Aberdeen Road, London NW10 — £899,950 • 3 bed • 2 bath • 1394 ft²


























































