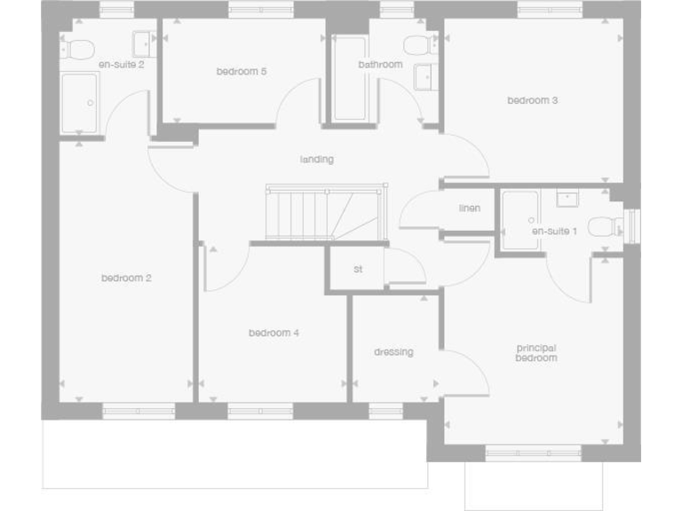
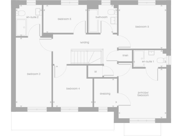
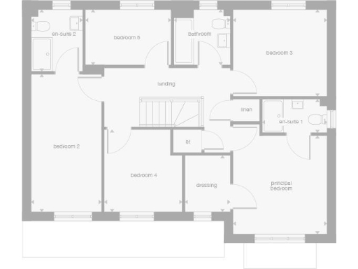
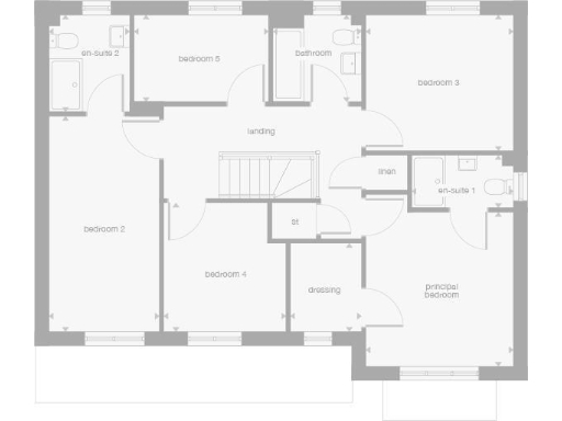
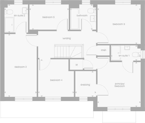
Spacious family layout with modern fittings and practical storage options.
- Five bedrooms with two en-suites and principal dressing room
- Open-plan lounge, dining and breakfast kitchen with French doors
- Separate laundry room and downstairs WC for family convenience
- Integral single garage and private rear garden
- 10-year NHBC warranty included for new-build security
- Small overall size for five bedrooms (1,169 sq ft)
- Slow broadband speeds reported despite excellent mobile signal
- Area classified as very deprived; consider local amenity impact
A modern five-bedroom detached house arranged over two floors, designed for family living and flexible working. The principal bedroom includes a dressing room and en-suite, and bedroom two also has an en-suite, giving practical comfort for a growing household. The open-plan kitchen, dining and lounge flow from a feature square bay window to French doors that open onto a private garden — a strong layout for family life and entertaining. Practical extras include a separate laundry room, downstairs WC and an integral single garage for storage and parking. This is a new-build home with a 10-year NHBC warranty and an annual service charge of £234.50. Buyers should note the small overall floor area (1,169 sq ft) for a five-bedroom house and the development’s slower broadband speeds. The postcode sits in an area classified as very deprived, which may affect local amenities and resale comparables. Council tax band TBC; tenure shown as freehold.
5 bedroom detached house for sale in Common Road,
East Calder,
West Lothian,
EH53 0JR, EH53 — £474,000 • 5 bed • 1 bath • 1417 ft²
5 bedroom detached house for sale in Off Millerhill Road,
Danderhall,
Midlothian,
EH22 1SB, EH22 — £534,000 • 5 bed • 1 bath • 1140 ft²
5 bedroom detached house for sale in Off Millerhill Road,
Danderhall,
Midlothian,
EH22 1SB, EH22 — £487,000 • 5 bed • 1 bath • 1169 ft²
4 bedroom detached house for sale in Common Road,
East Calder,
West Lothian,
EH53 0JR, EH53 — £374,000 • 4 bed • 1 bath • 859 ft²
5 bedroom detached house for sale in Off Grahamsdyke Road,
Bo'ness
EH51 9DH, EH51 — £415,000 • 5 bed • 1 bath • 1202 ft²
4 bedroom detached house for sale in Common Road,
East Calder,
West Lothian,
EH53 0JR, EH53 — £427,000 • 4 bed • 1 bath






























































































































































