Light-filled open-plan living with NHBC warranty and garden access.
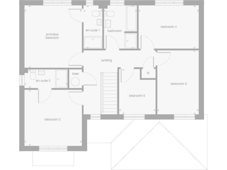
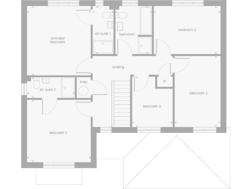
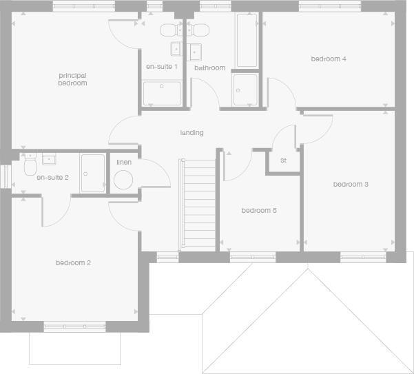
5 bedrooms with two en-suites and principal en-suite
This new-build five-bedroom detached house offers flexible family living across two storeys with contemporary fixtures and a 10-year NHBC warranty. The ground floor features a generous open-plan kitchen/family/dining area with twin French doors to the garden, plus a lounge with a bay window and double doors that bring extra light and character. Two bedrooms have en-suite bathrooms and the principal bedroom is well-proportioned, suitable for a family needing separate sleeping and working spaces.
Practical extras include a laundry room, dedicated home-office space and parking in a garage. Note that marketing references a double garage while the specification lists a single garage; please confirm with the developer. The property is compact for a five-bedroom (approximately 1,417 sq ft) so room sizes are sensible rather than expansive.
Buyers should be aware of a few material considerations: broadband speeds are reported as slow despite excellent mobile signal, and the wider area is flagged as very deprived which may affect resale and local services. An annual service charge of £234.50 applies (reviewed yearly). Overall this is a well-specified family-oriented new build that will suit buyers prioritising warranty-backed, low-maintenance living and flexible internal layouts.
5 bedroom detached house for sale in Off Manuel Terrace,
Whitecross,
Linlithgow,
West Lothian,
EH49 6JL, EH49 — £415,000 • 5 bed • 1 bath • 1201 ft²
5 bedroom detached house for sale in Off Grahamsdyke Road,
Bo'ness
EH51 9DH, EH51 — £418,000 • 5 bed • 1 bath • 1202 ft²
5 bedroom detached house for sale in Off Grahamsdyke Road,
Bo'ness
EH51 9DH, EH51 — £435,000 • 5 bed • 1 bath • 1202 ft²
4 bedroom detached house for sale in Off Manuel Terrace,
Whitecross,
Falkirk,
EH49 6LR, EH49 — £353,000 • 4 bed • 1 bath • 859 ft²
5 bedroom detached house for sale in Off Turnhouse Road,
Edinburgh,
EH12 0AD, EH12 — £629,000 • 5 bed • 1 bath • 1201 ft²
5 bedroom detached house for sale in Off Grahamsdyke Road,
Bo'ness
EH51 9DH, EH51 — £485,000 • 5 bed • 1 bath • 1340 ft²


































































