New-build family home with double garage and private garden.
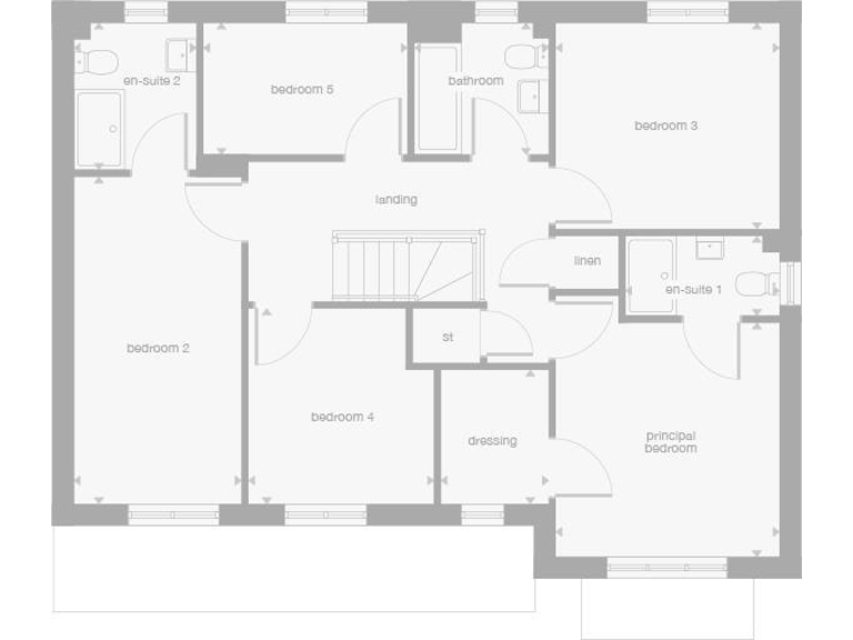
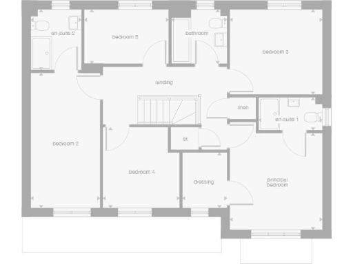
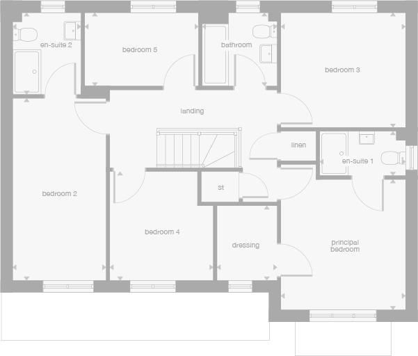
Five bedrooms including principal with dressing and en-suite
A modern five-bedroom detached new build offering a family-focused layout and practical extras. The ground floor opens through a square bay window and double doors into a large open-plan lounge, dining and breakfasting kitchen, with French doors leading to a private garden — a straightforward layout for everyday family life and entertaining. A separate laundry room and downstairs WC add useful practicality.
Upstairs the gallery landing gives access to five bedrooms, including a principal suite with dressing area and en-suite plus a second bedroom with its own en-suite. One bedroom is identified as a flexible home office. The house includes a double garage, driveway parking and a 10-year NHBC new-build warranty for buyer reassurance.
Important practical points: the developer service charge is modest at £124.50 per year, broadband speeds in the area are reported as slow, and the wider locality is classified as very deprived with rural traits. The overall property footprint is described as small for a five-bedroom detached, so garden and internal circulation space are likely modest compared with older family houses. Buyers should confirm the final bathroom count and full tenure details before committing.
4 bedroom detached house for sale in Off Millerhill Road,
Danderhall,
Midlothian,
EH22 1SB, EH22 — £399,000 • 4 bed • 1 bath • 964 ft²
5 bedroom detached house for sale in Off Turnhouse Road,
Edinburgh,
EH12 0AD, EH12 — £629,000 • 5 bed • 1 bath • 1201 ft²
5 bedroom detached house for sale in 1 Bradshaw Lane,
Edinburgh,
EH12 0BB , EH12 — £649,000 • 5 bed • 1 bath • 1136 ft²
5 bedroom detached house for sale in Off B6392,
Bonnyrigg,
Midlothian,
EH19 3FA, EH19 — £554,000 • 5 bed • 1 bath • 1340 ft²
5 bedroom detached house for sale in Off Turnhouse Road,
Edinburgh,
EH12 0AD, EH12 — £690,000 • 5 bed • 1 bath • 1417 ft²
5 bedroom detached house for sale in 1 Bradshaw Lane,
Edinburgh,
EH12 0BB , EH12 — £625,000 • 5 bed • 1 bath • 1168 ft²


































































