Secluded 2.25-acre South Downs estate with barns, stream and approved plans for substantial homes.
Approximately 2.25 acres of private gardens, woodland, stream and waterfall
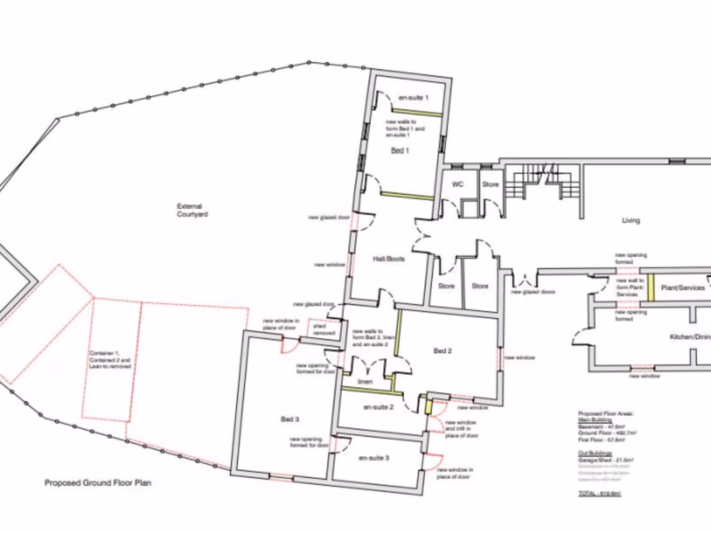
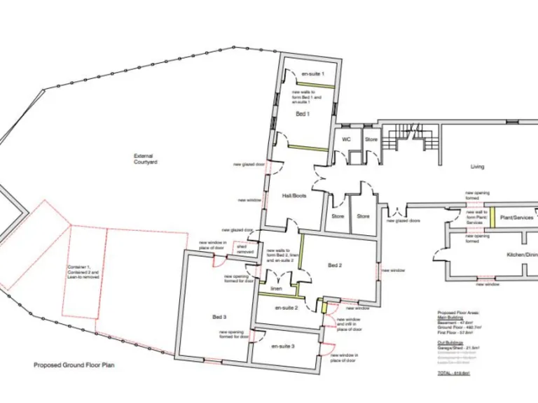
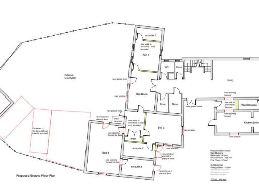
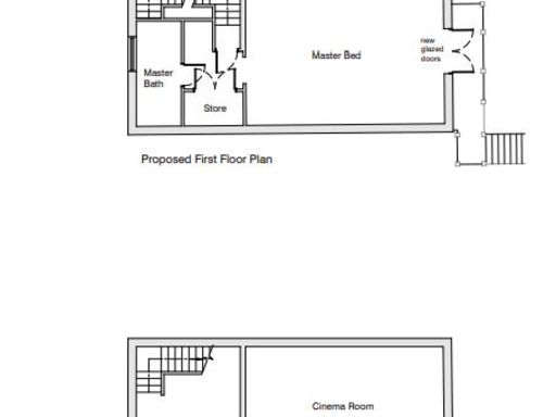
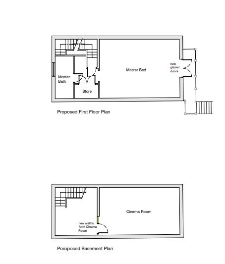
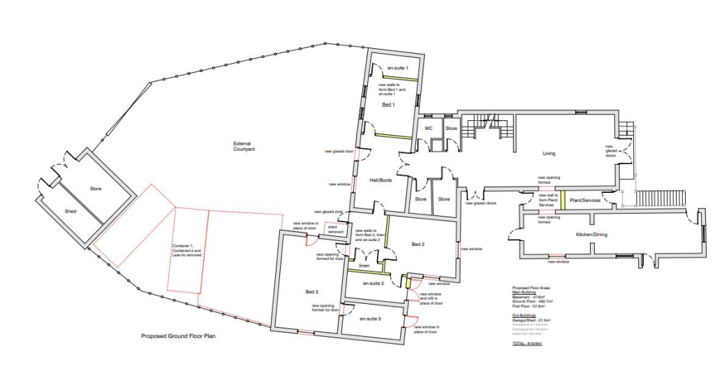
Planning permission approved for barn conversion (total footprint ~7,300 sq ft)
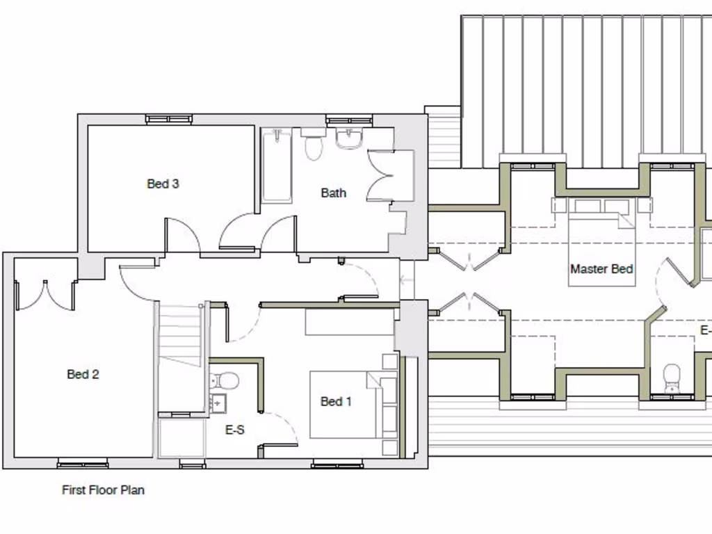
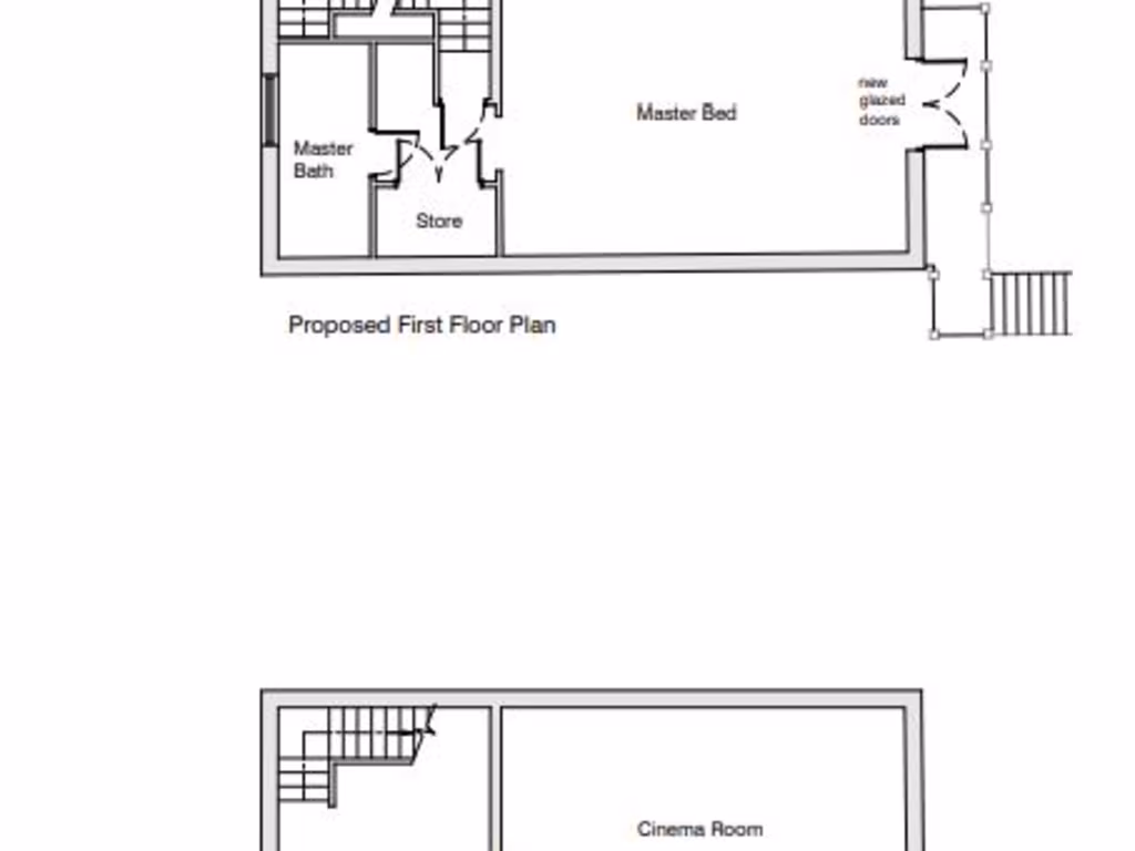
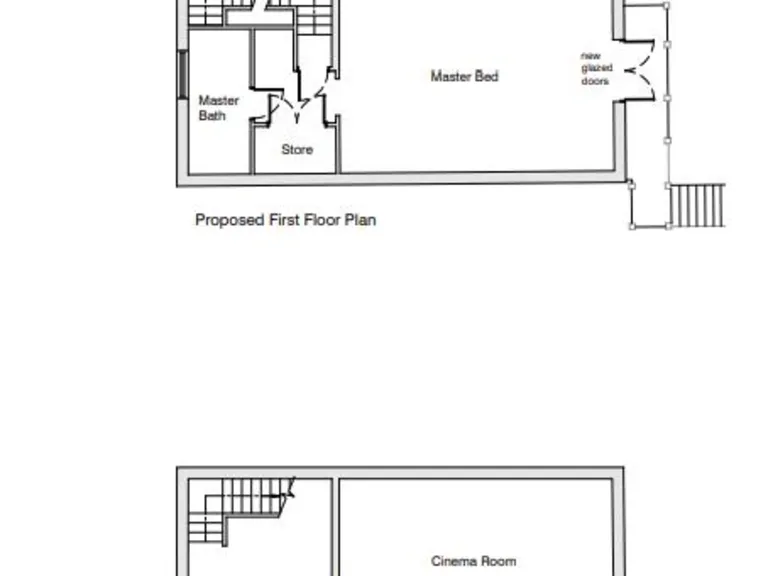
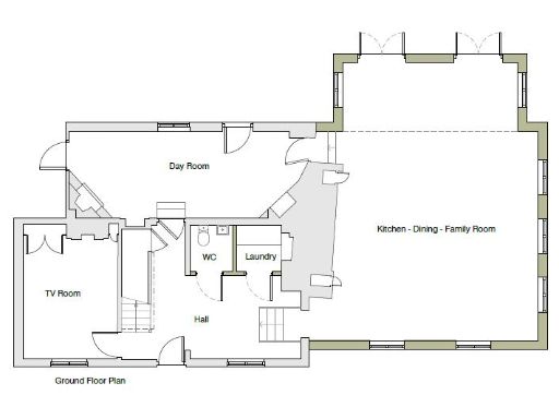
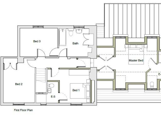
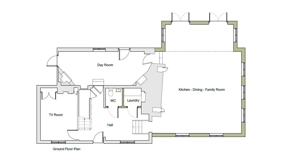
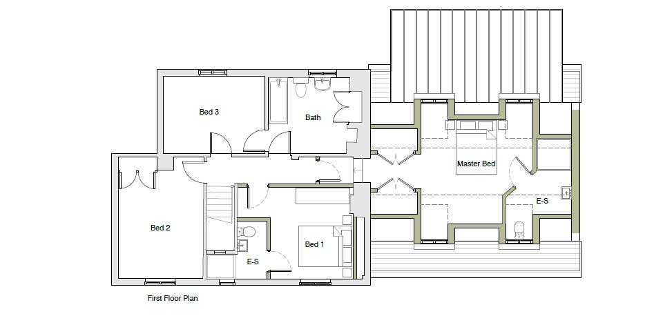
Consent to refurbish/extend main house to ~2,400 sq ft plus 185 sq ft cellar
Unlisted period buildings with high character but currently uninhabitable
Scope to replan for two or three homes, subject to planning approval
Likely hard to mortgage; significant renovation and project management needed
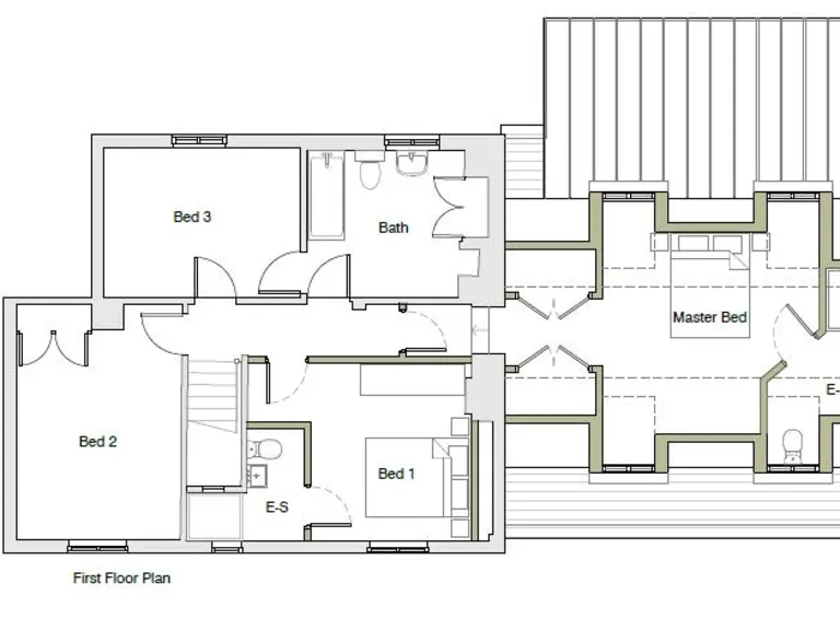
Single bathroom recorded; full modernisation required throughout
Available as whole or offered in two separate lots
Set within approximately 2.25 acres of private gardens, woodland, stream and waterfall, this secluded South Downs property offers a rare canvas for a buyer with vision. Windfall Wood House and adjoining barns are period, unlisted buildings with immense character and planning consent to refurbish and extend the house and convert the barns to residential use (total barn footprint ~7,300 sq ft). The plot’s west-facing aspect and woodland setting create a private country retreat close to Lurgashall village amenities.
The main house is currently uninhabitable and requires comprehensive renovation; consent exists to extend the house to about 2,400 sq ft plus a 185 sq ft cellar with natural light. The barns’ consent envisages generous residential accommodation, but there is clear scope to reconfigure the layout and apply for separate units — two or three homes are achievable subject to planning. None of the buildings are listed, increasing flexibility for refurbishment, alteration or demolition and rebuild (where permitted).
This is a project for experienced renovators, developers or buyers prepared for a significant undertaking. The site’s scale and setting are standout value-drivers: huge overall floor area potential, substantial private grounds, and riverside features. Practical considerations include likely lender restrictions (may be difficult to mortgage), the property’s current uninhabitable condition, and the need for a full refurbishment programme.
For buyers seeking a bespoke rural lifestyle or a redevelopment plot in an acclaimed location, this offering blends character, planning headway and rare mature grounds. The property is best suited to those able to manage a major renovation or a multi-unit development process within the South Downs National Park planning context.
4 bedroom detached house for sale in Jobsons Lane, Lurgashall, GU28 — £650,000 • 4 bed • 1 bath • 2400 ft²
Land for sale in Jobsons Lane, Lurgashall, GU28 — £850,000 • 1 bed • 1 bath • 7600 ft²
Barn conversion for sale in Jobsons Lane, Lurgashall, GU28 — £850,000 • 1 bed • 1 bath • 7600 ft²
4 bedroom detached house for sale in Windfallwood Common, Haslemere, Surrey, GU27 — £2,000,000 • 4 bed • 5 bath • 3811 ft²
House for sale in East Meon, Petersfield, Hampshire, GU32 — £1,750,000 • 1 bed • 1 bath • 4707 ft²
Barn for sale in Trampers Lane, North Boarhunt, PO17 — £950,000 • 2 bed • 1 bath • 3600 ft²










































































































































