Substantial rural site with planning consent for two cottages — major scope to add value..
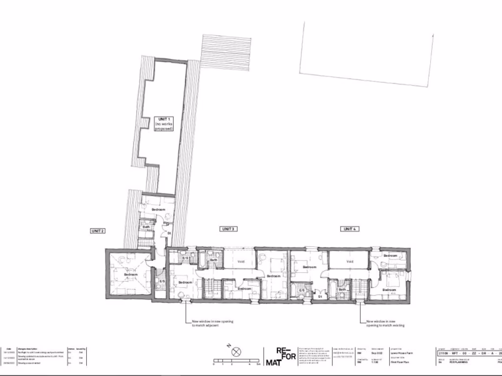
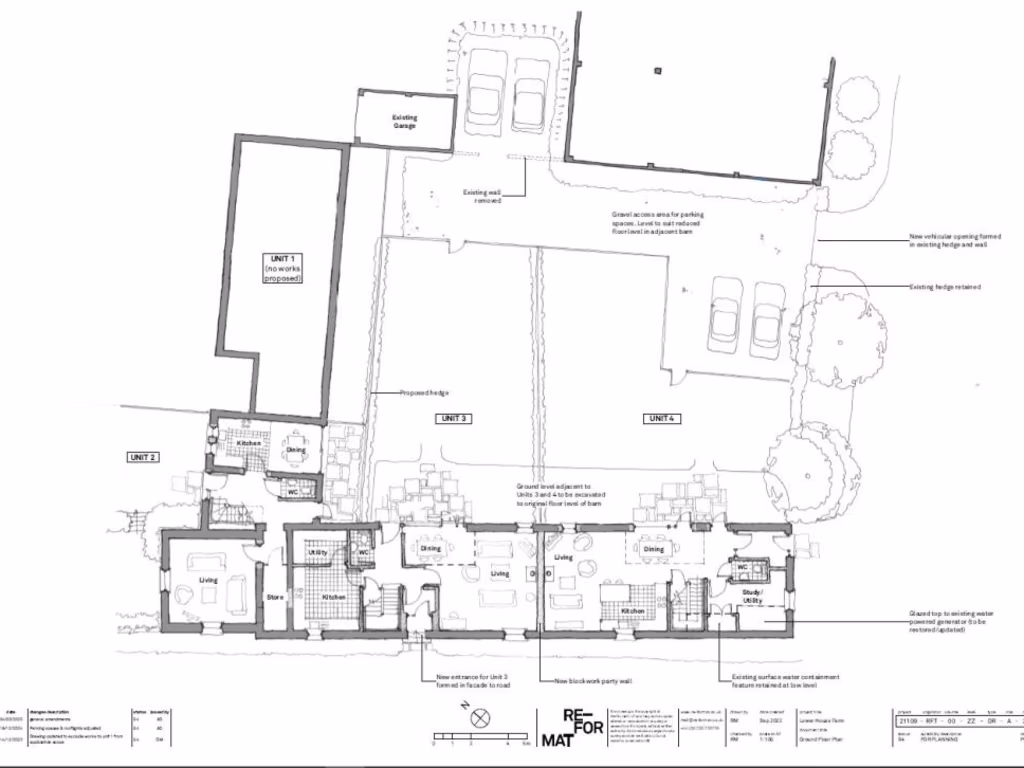
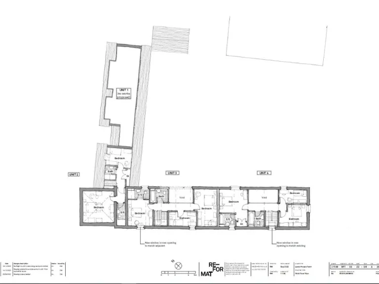
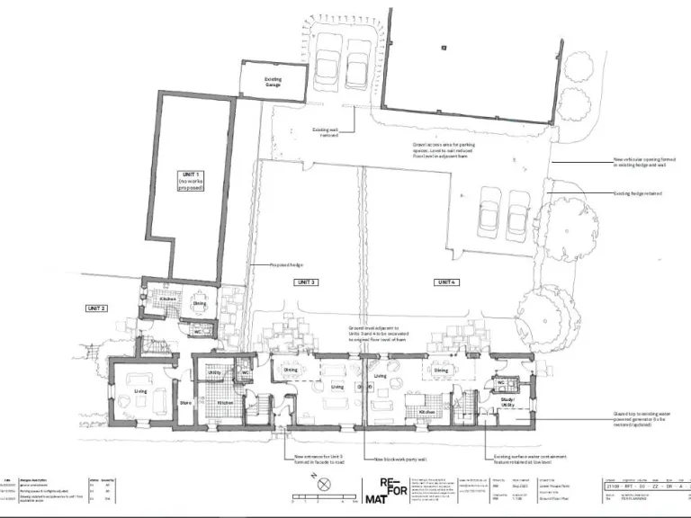
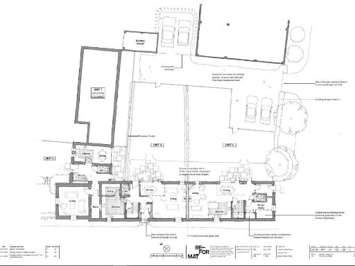
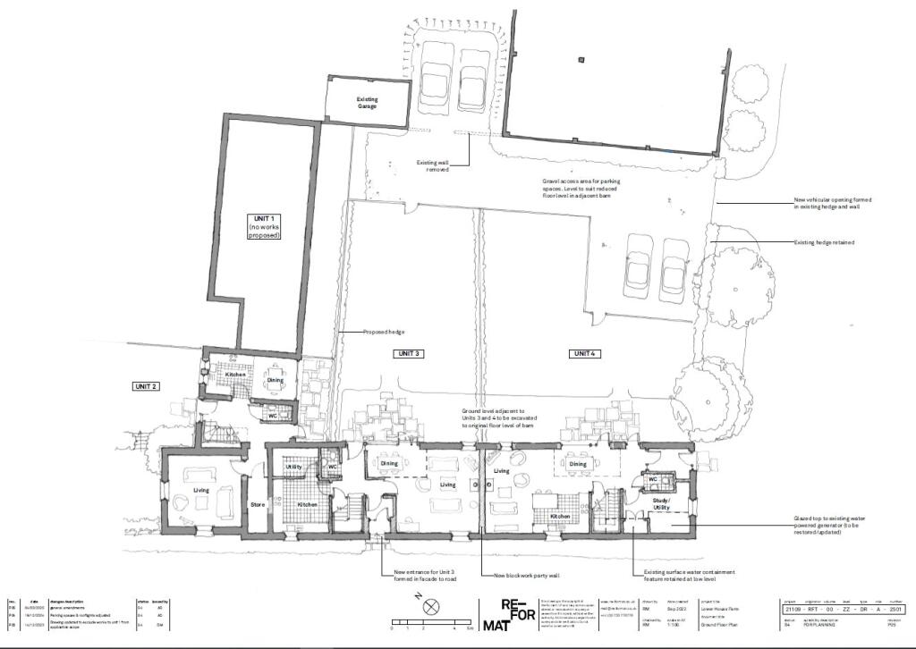
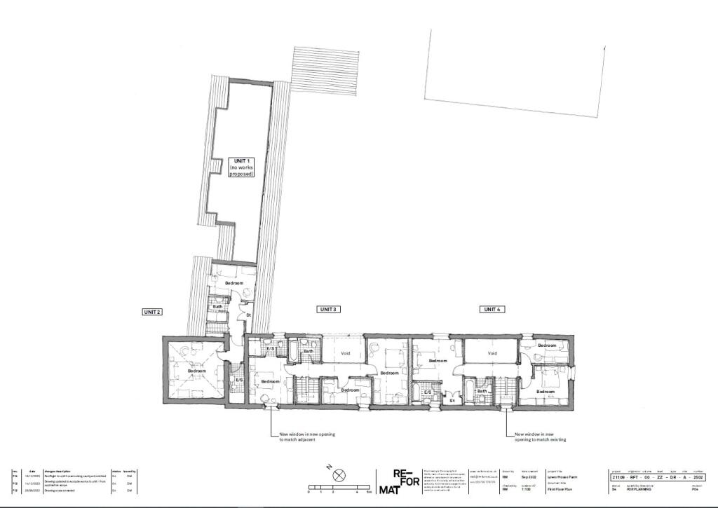
Full planning consent to convert large flint barn into two cottages
Includes one-bedroom Oast House and two-bedroom semi-detached cottage (tenanted)
Extremely large plot with mature garden and attached garage
South Downs National Park location; picturesque, protected setting
Shared private drainage; ecological constraints (Bat Emergence Report 09/2024)
Solid brick walls assumed uninsulated; renovation and insulation needed
Oil-fired boiler heating; not connected to a community fuel supply
Council tax above average; further consents required for scheme refinements
A rare South Downs opportunity: a substantial, historic rural site on an extremely large plot with existing buildings and full planning consent to convert a large flint barn into two cottages (SDNP/23/03414/FUL & SDNP/25/01662/CND). The holding currently includes a characterful one-bedroom Oast House and a two-bedroom semi-detached cottage (both tenanted), plus consented works that offer clear uplift potential for developers, investors or an owner-occupier prepared to manage a project.
The setting is peaceful and highly protected within the South Downs National Park, about one mile east of East Meon and around five miles from Petersfield (London trains). The site benefits from fast fibre broadband, excellent mobile signal, very large gardens, an attached garage and generous parking — strong practical assets for future occupants or holiday-let use.
Buyers should note material constraints: the site lies inside a national park so any refinements to the existing scheme will require further consents; there is shared private drainage; the properties use oil-fired heating (boiler and radiators) and some external walls are solid brick with assumed no insulation. A Bat Emergence Report (09/2024) has been produced and must be considered when carrying out works. Council tax is above average and the buildings will need internal renovation to realise full value.
This is a flexible proposition for those who can manage planning conditions and renovation: the current permissions provide a tested route to increase residential yield, while the mature plot and attractive rural location deliver long-term lifestyle and lettings appeal. Offers are invited with the planning consents in place; purchasers should budget for renovation, ecological mitigation and National Park consent processes.
House for sale in Hay Place Lane, Binsted, Alton, Hampshire, GU34 — £1,400,000 • 1 bed • 1 bath • 10453 ft²
3 bedroom barn conversion for sale in Coombe Road, East Meon, Petersfield, Hampshire, GU32 — £695,000 • 3 bed • 1 bath • 1366 ft²
Plot for sale in Ham Road, Sidlesham, PO20 — £875,000 • 4 bed • 2 bath • 4015 ft²
3 bedroom barn conversion for sale in Monument Lane, Racton, Chichester, West Sussex, PO18 — £1,500,000 • 3 bed • 2 bath • 2173 ft²
Land for sale in Jobsons Lane, Lurgashall, GU28 — £850,000 • 1 bed • 1 bath • 7600 ft²
3 bedroom detached house for sale in Coombe Road, East Meon, Hampshire, GU32 — £1,550,000 • 3 bed • 3 bath • 1515 ft²






























































