Secluded west-facing plot with stream, waterfall and planning consent in the South Downs.
Consent granted for one dwelling (SDNP/21/06422/HOUS) with 5,500 sqft consent drawings
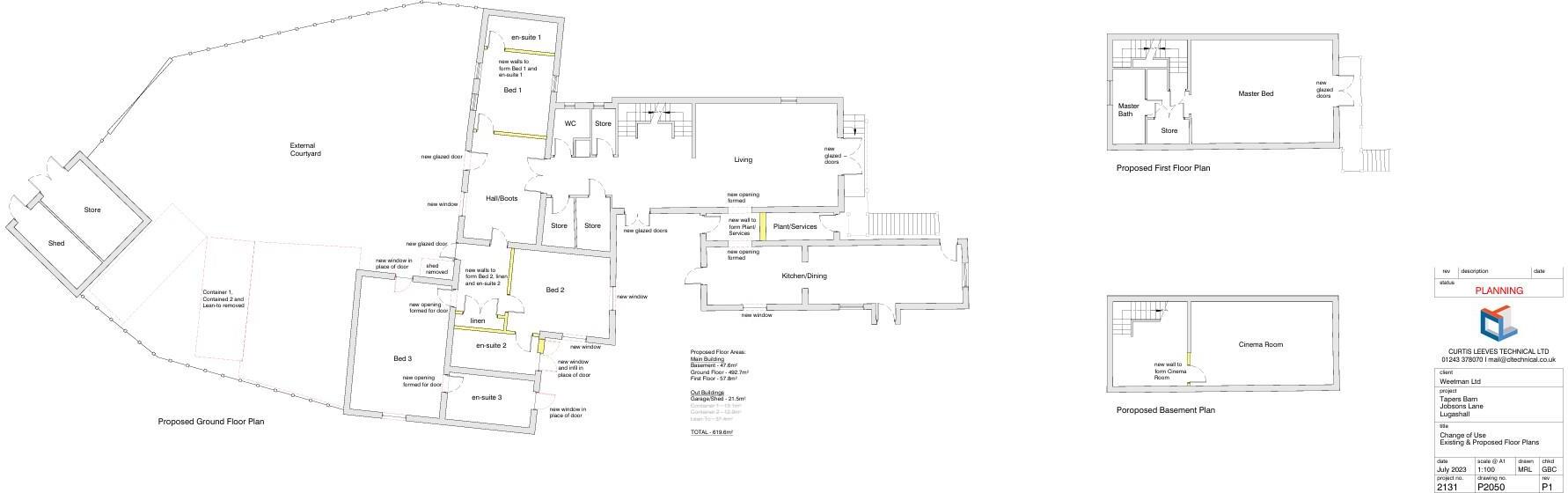
Set within the South Downs National Park, this unlisted period barn sits in extremely large grounds of around three acres including a stream and small waterfall. Consent has been granted for a single residential dwelling (planning ref: SDNP/21/06422/HOUS) with consent drawings for a circa 5,500 sqft house; there is believed potential to re-plan for two new-build barns subject to approvals. The west-facing plot is secluded and wooded, offering strong privacy, attractive outlooks and countryside character.
The buildings are rustic and partly timber/brick with weathered pitched roofs; they are currently derelict in places and require comprehensive restoration or full rebuild. Of particular note: the watercourse on site will need reinstating — this is a material, actionable requirement for any development and should be factored into budgets and timelines. There are no known flood risks and the tenure is freehold.
This opportunity suits a developer or experienced self-builder who can manage a restoration or redevelopment scheme within a protected landscape. The site’s size, location and pre-existing consent deliver clear upside, but buyers must accept planning constraints within a national park, building works in a sensitive ecological setting, and the cost/time implications of reinstating drainage and renovating old structures.
Practical attributes include fast broadband, generally good mobile signal, low local crime and convenient access to sought-after village amenities and nearby schools. The property is sold as land for development; specialist surveys, detailed planning advice and a clear structural and environmental assessment are recommended before exchange.
Barn conversion for sale in Jobsons Lane, Lurgashall, GU28 — £850,000 • 1 bed • 1 bath • 7600 ft²
4 bedroom detached house for sale in Jobsons Lane, Lurgashall, GU28 — £1,250,000 • 4 bed • 1 bath • 7300 ft²
4 bedroom detached house for sale in Jobsons Lane, Lurgashall, GU28 — £650,000 • 4 bed • 1 bath • 2400 ft²
House for sale in East Meon, Petersfield, Hampshire, GU32 — £1,750,000 • 1 bed • 1 bath • 4707 ft²
4 bedroom barn conversion for sale in Tillington, Near Petworth, West Sussex, GU28 — £1,300,000 • 4 bed • 1 bath • 2654 ft²
4 bedroom property for sale in Brighton Road, Woodmancote, BN5 — £350,000 • 4 bed • 2 bath • 1620 ft²






























































