Spacious rural conversion project on a large private plot near Wickham.
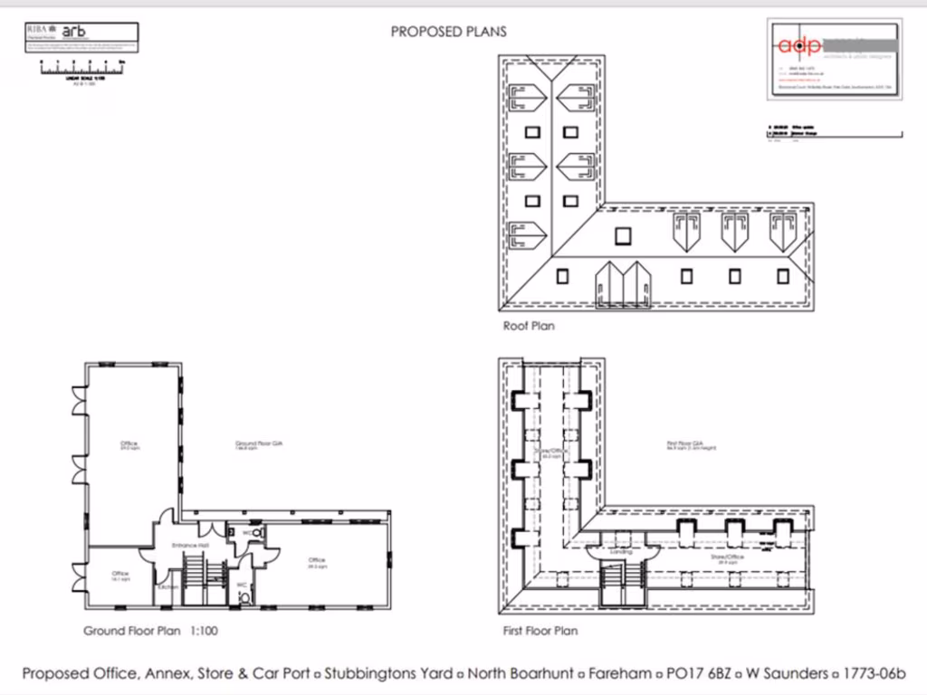
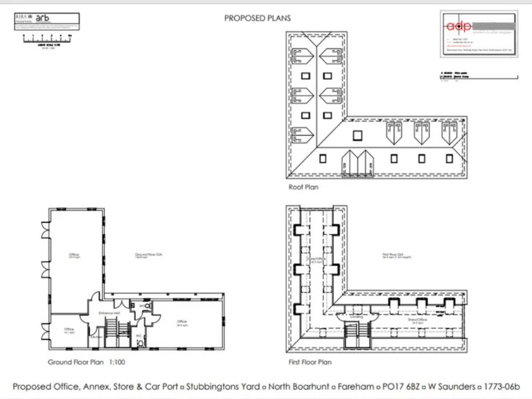
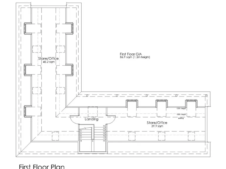
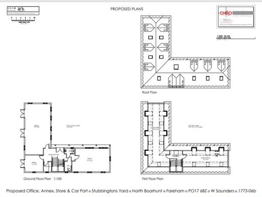
Extremely large detached barn with around 3,600 sq ft (up to 3,900 possible)
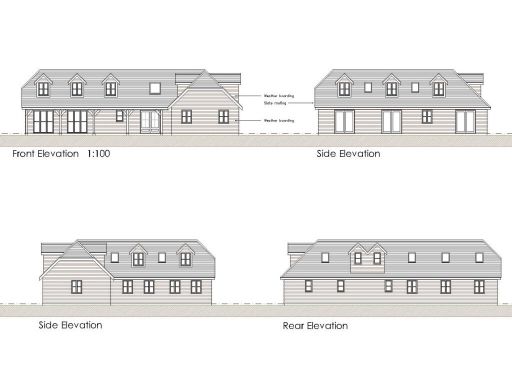
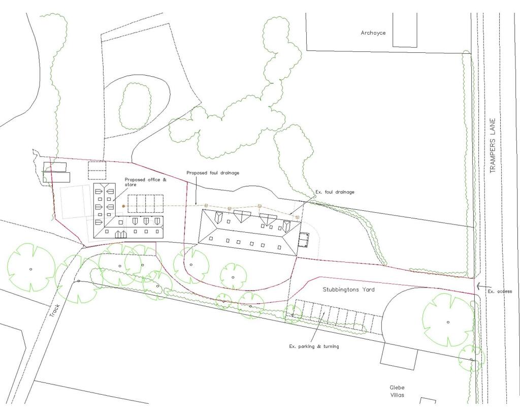
Set well back from Trampers Lane, Woodlands is a substantial detached barn offering rare development potential on a very large, private plot. The existing building has solid bones — cavity walls, reinforced floors and a strengthened roof — so a conversion scheme could be more straightforward and cost-effective than starting from scratch. Services including water, electricity and private drainage are connected and high-speed full-fibre broadband is available, supporting modern living or home-working.
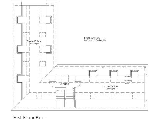
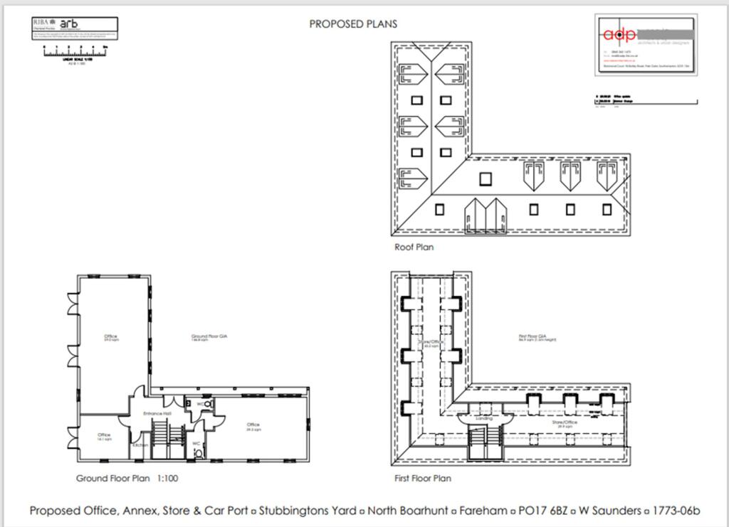
The barn provides around 3,600 sq ft of gross internal area (potentially up to 3,900 sq ft depending on layout choices) and sits within mature landscaped gardens with a generous driveway and off-street parking for several vehicles. Its rural setting close to Wickham and Bishops Waltham combines village tranquillity with easy access to Fareham, Southampton Airport and main road and rail links, making it suitable for family life with commuter convenience.
This is a renovation and conversion project: the property currently needs significant work to create finished living accommodation. It is chain free and freehold, improving flexibility for an incoming buyer. The current internal configuration is basic (listed as two bedrooms and one bathroom) so buyers should plan for full refurbishment, potential internal reconfiguration, and the usual building-control and planning permissions if additional rooms or subdivision is proposed.
For families seeking a spacious, characterful country home or developers aiming to create a high-spec barn conversion, Woodlands offers scale, privacy and genuine scope. Viewings are recommended to appreciate the plot, the barn’s structural advantages and the immediate woodland surroundings.
5 bedroom detached house for sale in Trampers Lane, North Boarhunt, Fareham, PO17 — £1,250,000 • 5 bed • 3 bath • 3500 ft²
3 bedroom detached house for sale in Drove Lane, SO24 — £1,750,000 • 3 bed • 2 bath • 1333 ft²
5 bedroom barn conversion for sale in Upton Lane, Nursling, Southampton, Hampshire, SO16 — £900,000 • 5 bed • 2 bath • 4500 ft²
3 bedroom barn conversion for sale in West Harting, Petersfield, GU31 — £600,000 • 3 bed • 2 bath • 1301 ft²
7 bedroom detached house for sale in Walhampton, Lymington, SO41 — £2,850,000 • 7 bed • 7 bath • 5850 ft²
4 bedroom barn conversion for sale in Kingsley, Hampshire, GU35 — £1,250,000 • 4 bed • 3 bath • 8796 ft²


























































