Period cottage with planning consent, streams, waterfall and woodland on 0.35 acres..
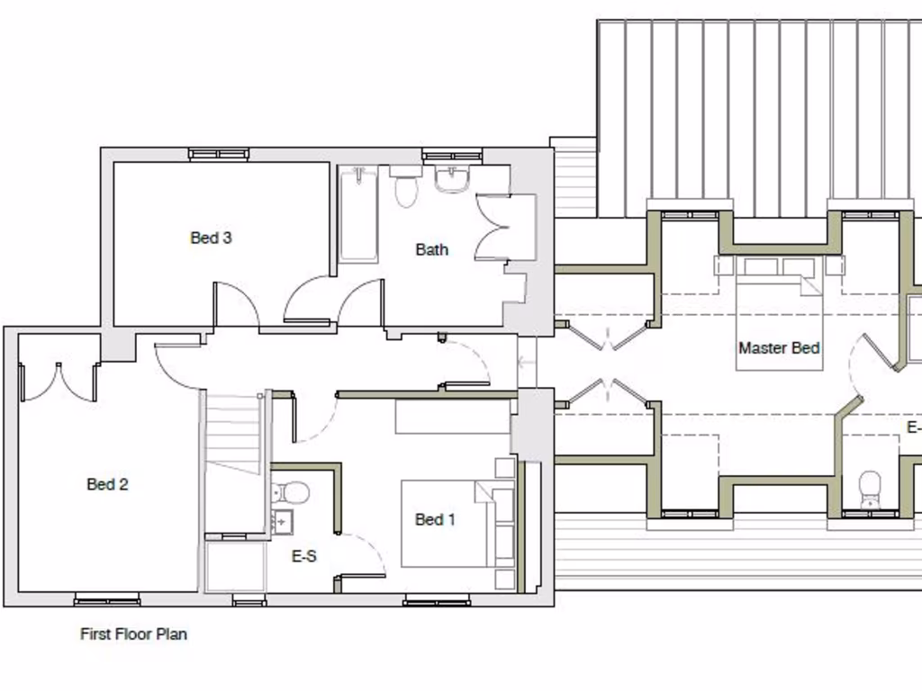
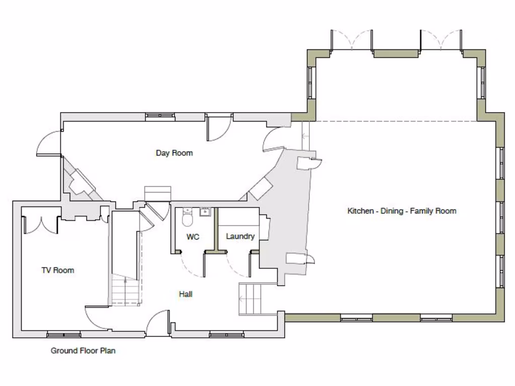
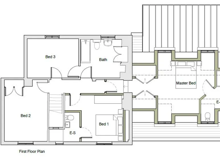
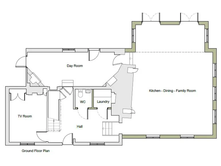
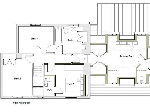
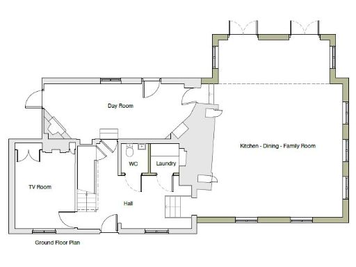
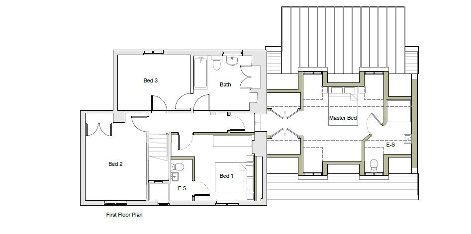
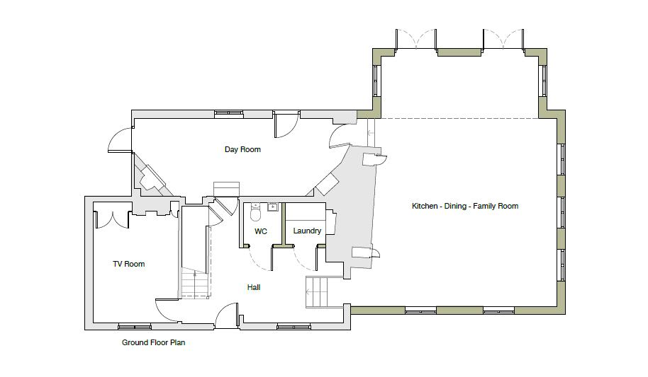
Planning permission approved for refurbishment and extension to ~2,400 sq ft
Windfall Wood House is a rare restoration and redevelopment opportunity in the South Downs National Park. The property is a period, unlisted cottage and barn set in approximately 0.35 acres of private, west-facing grounds with stream, waterfall and woodland — a highly scenic, secluded setting. Planning permission has already been approved for refurbishment and extension to around 2,400 sq ft; demolition and rebuild would also be possible subject to planning.
The house is currently uninhabitable and requires comprehensive renovation throughout. It sits as a four-bedroom, one-bathroom residence with an additional 185 sq ft cellar that has habitable headroom and garden access. The site offers excellent scope for internal reconfiguration, extension or a full rebuild to capitalise on the setting and permitted consent.
Practical considerations: the property will need complete modernisation and likely significant structural, plumbing and electrical works — buyers should budget accordingly. The plot’s seclusion and natural features are major assets but may increase maintenance and conservancy needs (stream and woodland management, fallen-tree risk). Mobile signal is average; broadband speeds are reported as fast. The location is quiet with low crime and suits a buyer seeking a character project rather than a move-in-ready home.
This is well suited to experienced developers, refurbishment specialists or buyers wanting a bespoke countryside home with substantial scope to create a distinctive residence in a protected rural area. The combination of consented plans, large private grounds and attractive natural features creates genuine long-term value, provided the renovation requirements and planning constraints are accepted.
4 bedroom detached house for sale in Jobsons Lane, Lurgashall, GU28 — £1,750,000 • 4 bed • 1 bath • 7300 ft²
4 bedroom detached house for sale in Windfallwood Common, Haslemere, Surrey, GU27 — £2,000,000 • 4 bed • 5 bath • 3811 ft²
Land for sale in Jobsons Lane, Lurgashall, GU28 — £850,000 • 1 bed • 1 bath • 7600 ft²
5 bedroom detached house for sale in Graffham, Petworth, GU28 — £1,100,000 • 5 bed • 2 bath • 2000 ft²
5 bedroom detached house for sale in Dial Post - 5 Bedroom Country Home with land, RH13 — £800,000 • 5 bed • 1 bath • 1352 ft²
4 bedroom semi-detached house for sale in Forest Road, Liss Forest, Hampshire, GU33 — £1,250,000 • 4 bed • 2 bath • 2383 ft²


























































































