Rare large-plot conversion opportunity in a picturesque Sussex village.
Planning permission granted (SDNP/21/06422/HOUS) for one residential dwelling
Consent drawings indicate approximately 5,500 sqft living space
Gross building area around 7,600 sqft; large redevelopment scope
Huge plot: gardens and common land of around three acres
Stream and small waterfall onsite; watercourse needs reinstating
Currently recorded as 1 bed, 1 bath; conversion and works required
Secluded hamlet location in South Downs National Park; low crime
Fast broadband; average mobile signal; rural and relatively isolated
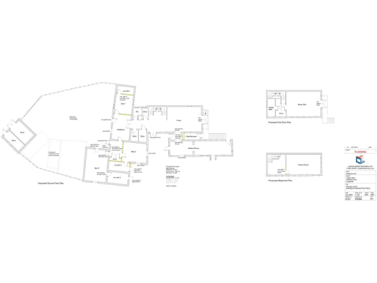
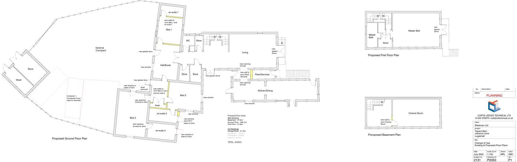
Tappers Barn is a period, unlisted barn set in an attractive, secluded west-facing plot within the South Downs National Park. The property sits in roughly three acres of gardens and adjoining common land, with a stream, small waterfall and woodland providing privacy and strong rural character. The building’s gross area is circa 7,600 sqft, offering exceptional scale and scope for a range of uses.
Planning permission (ref: SDNP/21/06422/HOUS) has been granted for one residential dwelling with consent drawings indicating about 5,500 sqft of accommodation. There is credible potential to reconfigure the consented layout or to pursue a scheme for two new-build barns, which will suit developers or buyers looking for a large conversion/creation project in a sought-after village setting.
There are some material issues to note: the watercourse on the site requires reinstatement and the barn is a renovation project that will need comprehensive works to create a finished home. The current recorded accommodation is minimal (1 bedroom, 1 bathroom) but the approximate room count and consented drawings point to far greater living space once converted. Services are mixed — fast broadband but only average mobile signal — and the setting is rural and relatively isolated.
This property will appeal to developers and experienced self-builders who value space, character and woodland setting over a turnkey house. It offers a rare combination of scale, permitted consent and a large plot in a highly desirable Sussex hamlet, but buyers should factor in reinstatement works, full renovation costs and planning work if pursuing alternative schemes.
Land for sale in Jobsons Lane, Lurgashall, GU28 — £675,000 • 1 bed • 1 bath • 7600 ft²
4 bedroom detached house for sale in Jobsons Lane, Lurgashall, GU28 — £1,250,000 • 4 bed • 1 bath • 7300 ft²
4 bedroom barn conversion for sale in Tillington, Near Petworth, West Sussex, GU28 — £1,300,000 • 4 bed • 1 bath • 2654 ft²
5 bedroom detached house for sale in Tismans Common, Rudgwick, Horsham, West Sussex, RH12 — £1,850,000 • 5 bed • 3 bath • 2688 ft²
5 bedroom barn conversion for sale in Tismans Common, Tismans Common, RH12 — £1,850,000 • 5 bed • 4 bath • 4041 ft²
4 bedroom detached house for sale in Jobsons Lane, Lurgashall, GU28 — £650,000 • 4 bed • 1 bath • 2400 ft²






























































































