Dual-living country retreat with income potential and expansive valley views.
- Elevated Conwy Valley views from both properties
- Main house 3 beds, barn 2 beds; ideal multi-generational use
- Conservatory added 2017; main house rewired 2013
- Barn conversion completed 2016 with vaulted ceilings
- Barn roof contains asbestos (vendor advised)
- Cottage pays contribution towards septic tank usage
- Sold via online auction; cash buyers preferable (EPC)
- Oil central heating in main house; barn electric heating
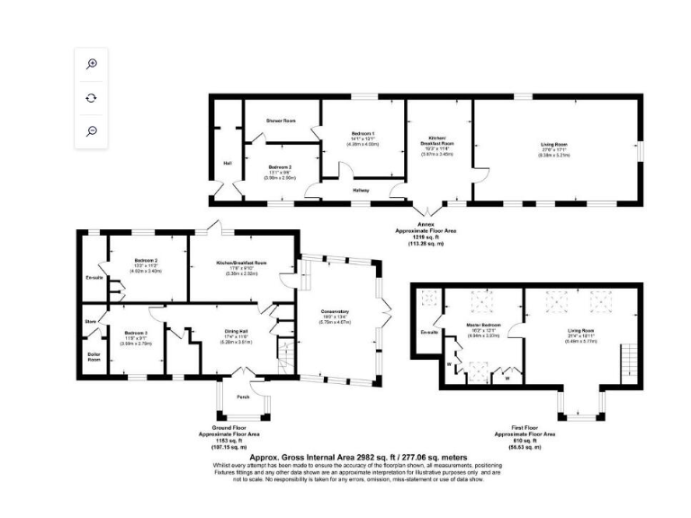
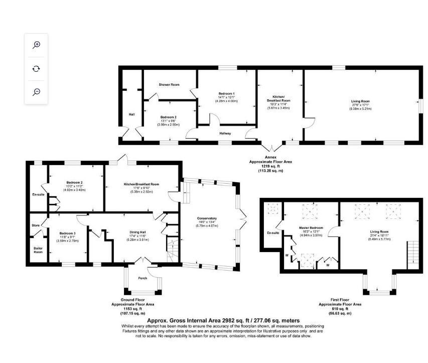
River View Lodge is a rare dual-dwelling offering set in an elevated position with far-reaching views across the Conwy Valley. The main three-bedroom house combines period granite character with modern upgrades — conservatory installed 2017, full rewire in 2013 and oil-fired central heating — while a fully converted two-bedroom barn (2016) provides independent accommodation with vaulted ceilings and a multi-fuel burner.
The layout suits multi-generational living or a holiday-let/income setup (subject to planning). Shared courtyard gardens, a pond, orchard and a Millboard decked terrace create private outdoor spaces. Parking for three vehicles is provided, and the hamlet location offers countryside tranquillity with straightforward road links to Llanrwst, Betws-y-Coed and the A55.
Important negatives and practical points are stated plainly: the property will be sold via online auction (cash buyers preferable due to the EPC rating), the barn roof contains asbestos per vendor information, and the cottage contributes towards septic tank maintenance. Heating is primarily oil for the main house, with electric heating in the barn and conservatory. Buyers should budget for ongoing running costs and any refurbishment if altering layouts or uses.
Overall, this is a flexible and characterful holding on a large plot, offering immediate dual-occupation use and clear potential for income or extended-family arrangements, balanced by specific condition and service considerations that an interested buyer should inspect and price accordingly.
5 bedroom link detached house for sale in Maenan, Llanrwst, LL26 — £400,000 • 5 bed • 4 bath • 2982 ft²
3 bedroom detached house for sale in Llidiart y Fadog, Tal-y-Bont, Conwy, LL32 8SH, LL32 — £200,000 • 3 bed • 1 bath • 1003 ft²
3 bedroom detached house for sale in Llechwedd, Conwy, Conwy, LL32 — £815,000 • 3 bed • 3 bath • 1657 ft²
4 bedroom detached house for sale in Llanbedr-y-Cennin, Conwy, LL32 — £550,000 • 4 bed • 2 bath • 1098 ft²
3 bedroom barn conversion for sale in Ffordd Llanelwy, Betws Yn Rhos, Conwy, LL22 8AN, LL22 — £300,000 • 3 bed • 2 bath • 1886 ft²
4 bedroom detached house for sale in Tyn Y Groes, LL32 — £795,000 • 4 bed • 2 bath • 2382 ft²






















































































































