Contemporary two-bed ground-floor flat with private courtyards and long lease, close to stations and parks..
Two double bedrooms with flexible layout
Built in 2018 — modern construction and fittings
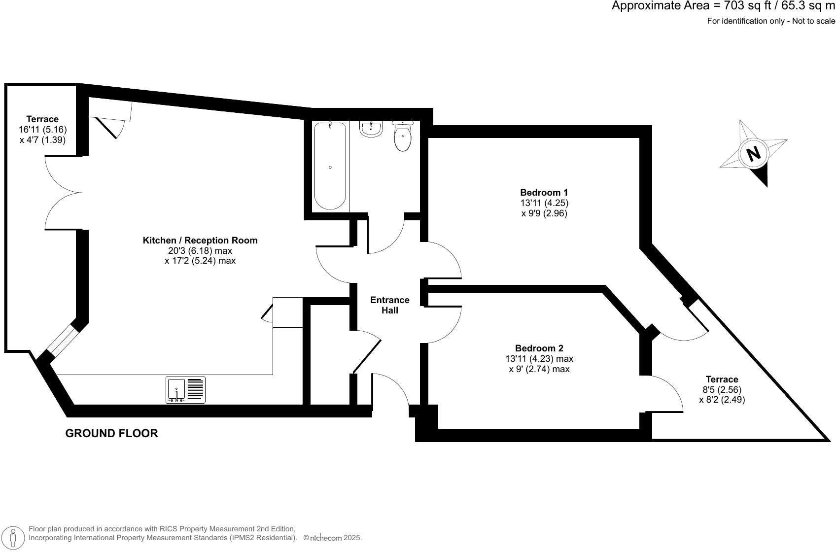
20' open-plan lounge/kitchen with integrated appliances
Private front and rear courtyards for outdoor use
Long lease — approximately 116 years remaining
Within walking distance of two stations and local parks
Higher local crime levels and area deprivation noted
Ground-floor position — potential privacy and street-noise issues
Built in 2018, this well-presented ground-floor flat offers a straightforward, modern layout for first-time buyers or investors seeking a ready-to-move-in home. The 20' open-plan lounge/kitchen with integrated appliances and wood-effect flooring provides an airy social hub, while two double bedrooms give genuine flexibility for sharers or a small family.
Outdoor space is a genuine plus for a ground-floor apartment: private front and rear courtyards suitable for seating and container gardening. The property sits within easy walking distance of Lower Sydenham and Sydenham stations, Bell Green shopping centre and green spaces including Alexandra Recreation Ground and Mayow Park — convenient for commuting and weekend leisure.
Practical details are favourable: a long lease (circa 116 years remaining), mains gas central heating and an average overall floor area of about 65 sqm. Council tax is described as affordable and mobile signal is excellent, which suits home-working or streaming.
Buyers should note material neighbourhood factors: the immediate area records higher crime levels and is classified as relatively deprived, which may affect resale expectations and immediate living environment. Broadband speeds are average. As a ground-floor home, there is also the usual care around privacy and street-level noise. The flat is leasehold — factor in service charges and building management on enquiry.
2 bedroom flat for sale in Kangley Bridge Road, London, SE26 — £325,000 • 2 bed • 1 bath • 730 ft²
2 bedroom flat for sale in Purbeck Gardens, Sydenham, London, SE26 — £435,000 • 2 bed • 2 bath • 786 ft²
2 bedroom flat for sale in Sydenham Road, Sydenham, London, SE26 — £300,000 • 2 bed • 1 bath • 649 ft²
2 bedroom flat for sale in Station Approach, London, SE26 — £425,000 • 2 bed • 2 bath • 756 ft²
2 bedroom flat for sale in Station Approach, London, SE26 — £425,000 • 2 bed • 2 bath • 794 ft²
2 bedroom flat for sale in Purbeck Gardens, London, SE26 — £450,000 • 2 bed • 2 bath • 995 ft²






































































