Refurbished period home with private tiered garden and own entrance.
Almost 1,100 sq ft of refurbished living space
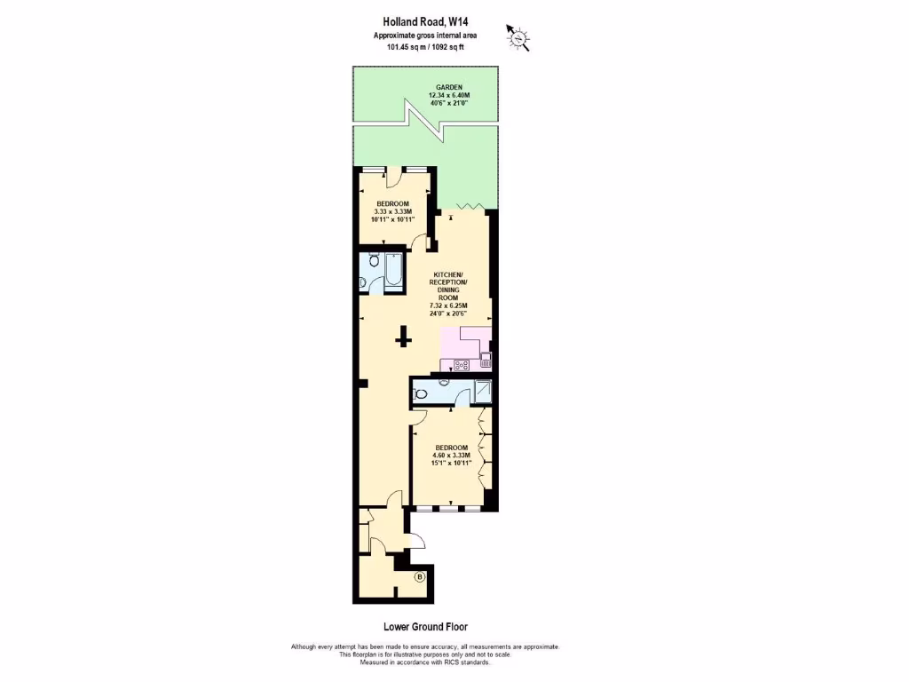
This ground-floor maisonette offers almost 1,100 sq ft of recently refurbished living space on Holland Road, combining period character with contemporary finishes. The open-plan kitchen/reception opens via bi-fold doors onto a large, tiered private garden that backs onto Addison Road houses, giving a strong sense of privacy for central London. The principal bedroom includes built-in storage and an en suite; converted front vaults add useful utility and storage space.
Practical ownership features include an own entrance and a share of the freehold, plus mains gas heating and double glazing. The property is well placed for Holland Park, Westfield and local transport (Central line, Overground nearby), making it suitable as a family home or a well-located pied-à-terre.
Buyers should note some material facts: council tax band E and an EPC rating of C; the building is Victorian with solid brick walls likely lacking cavity insulation. Crime levels in the immediate area are reported above average. Overall, the flat is move-in ready thanks to a recent high-spec refurbishment, with further value possible from targeted improvements to insulation or window upgrades.
2 bedroom flat for sale in Holland Road, London, W14 — £775,000 • 2 bed • 2 bath • 685 ft²
2 bedroom flat for sale in Holland Road, Holland Park, London, W14 — £900,000 • 2 bed • 2 bath • 1084 ft²
3 bedroom flat for sale in Holland Road, London, W14 — £1,550,000 • 3 bed • 3 bath • 1460 ft²
3 bedroom apartment for sale in Addison Road, London, W14 — £1,925,000 • 3 bed • 2 bath • 1757 ft²
3 bedroom apartment for sale in Holland Road, Kensington, W14 — £1,195,000 • 3 bed • 2 bath • 1378 ft²
2 bedroom apartment for sale in Holland Road, London, W14 — £650,000 • 2 bed • 2 bath • 796 ft²














































































