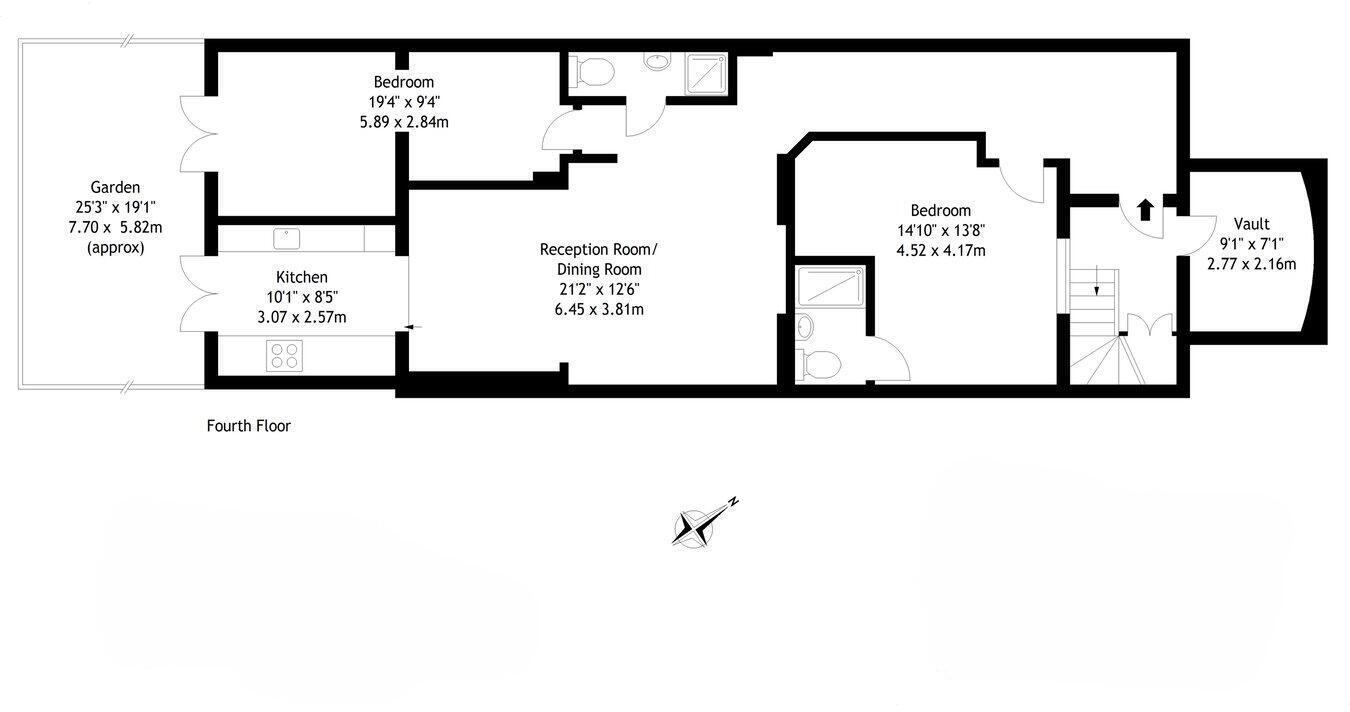
Two-bedroom flat with garden and rare vault storage near Olympia station.
Spacious reception/dining room with period high ceilings
Set on prestigious Holland Road, this two-bedroom lower-ground apartment combines period character with modern living. The layout feels generous for its size, with a spacious reception/dining room, two bathrooms and direct access to a private rear garden from one bedroom. Additional vault storage is included, rare for this building type.
Transport and local amenities are strong selling points: Kensington Olympia station is a very short walk, delivering quick District Line and Overground connections, and a wide range of shops, cafes and schools are within easy reach. The property sits in an inner‑city cosmopolitan area popular with white‑collar professionals.
Buyers should note material facts: the flat is leasehold (long lease c.154 years remaining), set on a lower-ground level, and the building dates from the early 20th century with solid brick walls (no known cavity insulation). Double glazing is present but install date is unknown. Crime levels in the immediate area are above average. Prospective purchasers are advised to commission a survey and check all lease documents and any additional fees (eg lease packs) before committing.
This home will suit buyers seeking a Kensington base with garden access and storage potential, especially first-time buyers wanting period features and good connections. With careful updating and insulation work where needed, the apartment offers comfortable living and long-term value in a highly desirable location.
2 bedroom flat for sale in Holland Road, Holland Park, London, W14 — £750,000 • 2 bed • 2 bath • 908 ft²
2 bedroom flat for sale in Holland Road, Holland Park, London, W14 — £900,000 • 2 bed • 2 bath • 1084 ft²
3 bedroom apartment for sale in Holland Road, Kensington, W14 — £1,195,000 • 3 bed • 2 bath • 1378 ft²
2 bedroom flat for sale in Sinclair Road, London W14 — £750,000 • 2 bed • 2 bath • 822 ft²
2 bedroom flat for sale in Holland Road, London, W14 — £900,000 • 2 bed • 2 bath • 794 ft²
2 bedroom flat for sale in Holland Road, London, W14 — £650,000 • 2 bed • 1 bath • 828 ft²






































