Spacious rural plot with planning consent for a substantial family home.
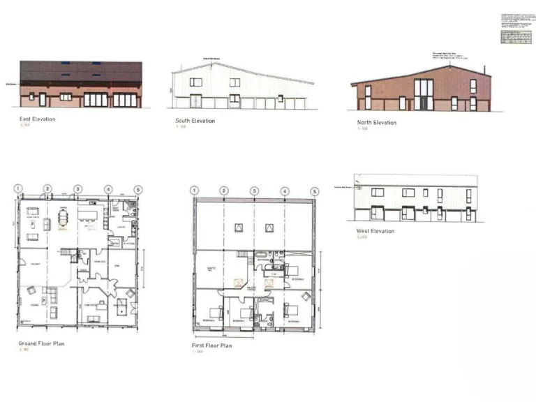
- Planning consent granted for 4‑bed two‑storey conversion (Ref. 78049)
- Substantial internal area proposed: approx. 343 sq m / 3,692 sq ft
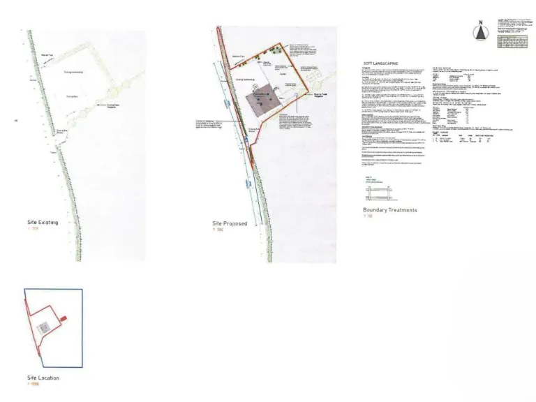
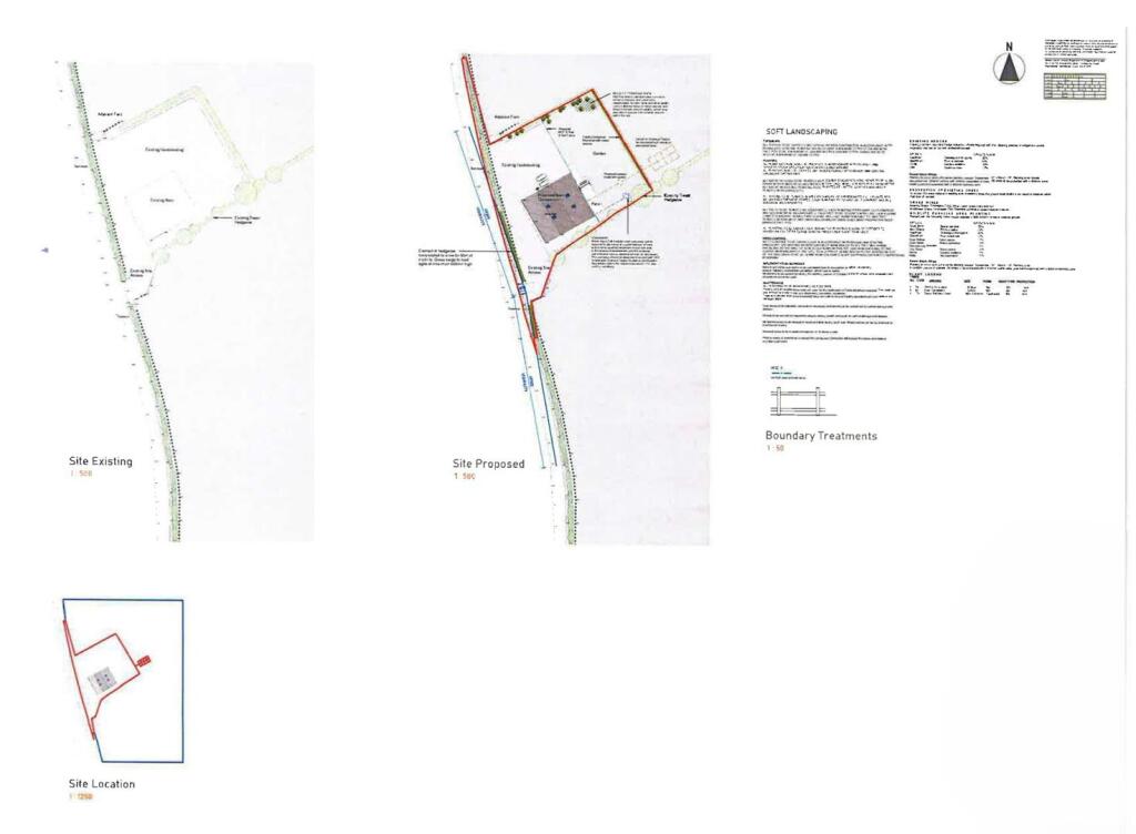
- Plot size c. 0.61 acres with ample parking and generous garden
- On high ground with valley views towards Barnstaple
- Borehole on site for private water supply
- Mains electricity nearby; foul drainage via packaged treatment plant
- Broadband very slow; consider connectivity upgrades
- Consent must be started within three years; conversion works required
A modern agricultural barn with full planning consent offers a rare Grand Design opportunity on high ground above Tawstock. The approved conversion creates a substantial two‑storey 4‑bed home (approx. 343 sq m / 3,692 sq ft) with open-plan family space, gym, games room and separate home office — with ground‑floor scope to form a self‑contained annexe.
Set in about 0.61 acres, the plot provides generous garden areas, ample off‑street parking and strong valley views across Bishops Tawton towards Barnstaple. Practical on‑site features include a borehole for private water and mains electricity available in the lane; proposed foul drainage is to a packaged treatment plant. Adjoining land may be purchased separately, increasing scope for landscaping or expansion.
Important practical points are stated plainly: the barn requires conversion works to become habitable and the planning consent (North Devon Council ref. 78049) must be implemented within three years. The permission also prescribes external materials and finishes (timber cladding/dung boards, corrugated metal roof, aluminium/timber doors and windows). Broadband speeds are very slow and a packaged sewage treatment system will be needed — factors to consider for remote working and day‑to‑day convenience.
For a buyer seeking countryside tranquillity with easy access to Barnstaple and North Devon’s coast, this site offers flexibility: a large primary residence, potential annexe for guests or rental, and room for landscaping or further negotiation on adjoining acreage. Budget realistically for conversion works, services installation and the planning‑specified finishes to realise the property’s full potential.
Land for sale in Tawstock, Barnstaple, EX31 — £350,000 • 4 bed • 2 bath • 26572 ft²
4 bedroom detached house for sale in Bratton Fleming, Barnstaple, EX31 — £550,000 • 4 bed • 4 bath • 6135 ft²
Land for sale in Newland, Landkey, Barnstaple, EX32 — £425,000 • 1 bed • 1 bath • 3730 ft²
Land for sale in Bratton Fleming, Barnstaple, EX31 — £550,000 • 1 bed • 1 bath • 6135 ft²
Land for sale in Newland, Landkey, Barnstaple, EX32 — £425,000 • 4 bed • 1 bath • 3730 ft²
Commercial property for sale in Benton, Bratton Fleming, Barnstaple, EX32 — £595,000 • 5 bed • 4 bath • 3698 ft²


















































