Flexible planning consent for one large home or two four-bedroom houses in a private rural setting.
- 1.24 acres of pasture with southerly countryside views
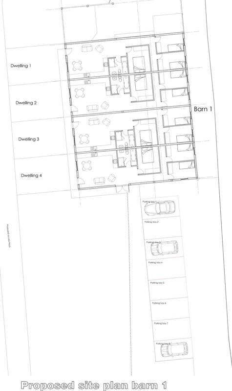
- Barn approx. 3,730 sq ft with conversion consent to one dwelling
- Alternative consent to replace with two 4-bed detached houses
- Mains water and electricity on site; mains drainage nearby
- Purchaser must create gated entrance and fence unfenced boundaries
- Existing barn is basic steel construction; conversion costs likely
- Slow broadband and average mobile signal in the area
- Freehold; no flood risk and very low local crime
A rare countryside development opportunity on approximately 1.24 acres at the edge of Landkey, offering expansive southerly views and substantial floorplate potential. A large modern detached agricultural barn (approx. 3,730 sq ft) has detailed planning permission to convert to one large, high-spec residence or, alternatively, to replace with two detached four-bedroom houses — providing flexibility for a single grand home or a two‑house scheme.
Several positive practical attributes support redevelopment: mains water and electricity are present on site, mains drainage is nearby, and vehicular access is immediate from the roadside. The site is level to gently undulating pasture with hedgerow boundaries, good roadside frontage and a concrete apron adjacent to the barn, which should reduce initial site-preparation works.
Buyers should note material items before budgeting: the existing barn is basic agricultural steel construction and will require investment for conversion or demolition for rebuild. The purchaser will need to create a private gated entrance, fence boundaries and agree easements over retained land for services. Broadband is slow and mobile signal only average, which may influence remote working or holiday-let potential. All planning documents are available via North Devon Council (references provided) and purchasers should commission structural, topographical and services surveys before exchange.
For developers or owner-occupiers seeking seclusion with excellent countryside outlooks and multiple planning routes, this freehold parcel represents a strategic opportunity in a well-connected North Devon location close to Barnstaple and nearby beaches.
Land for sale in Newland, Landkey, Barnstaple, EX32 — £425,000 • 1 bed • 1 bath • 3730 ft²
4 bedroom detached house for sale in Bratton Fleming, Barnstaple, EX31 — £550,000 • 4 bed • 4 bath • 6135 ft²
Land for sale in Rackenford, Tiverton, Devon, EX16 — £100,000 • 1 bed • 1 bath • 2572 ft²
Land for sale in Shebbear, EX21 — £300,000 • 1 bed • 1 bath • 1350 ft²
4 bedroom detached house for sale in Bratton Fleming, Barnstaple, Devon, EX31 — £250,000 • 4 bed • 3 bath • 1319 ft²
Land for sale in Landkey, Barnstaple, EX32 — £299,000 • 1 bed • 1 bath • 2198 ft²






































