DN20 9LG - 6 bed barn conversion opportunity in Brigg And Goole, DN20…

View on Property Piper

6 bedroom barn conversion for sale in Castlethorpe Barns, Castlethorpe, Brigg, Lincolnshire, DN20 9LG, DN20

Summary - Castlethorpe Barns, Castlethorpe, Brigg, Lincolnshire, DN20 9LG DN20 9LG

6 bed 1 bath Barn Conversion

Full planning consent on a 3.48-acre rural redevelopment plot; auction sale..
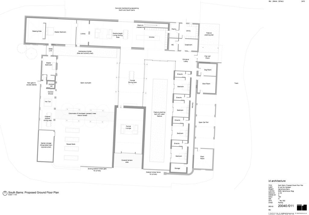
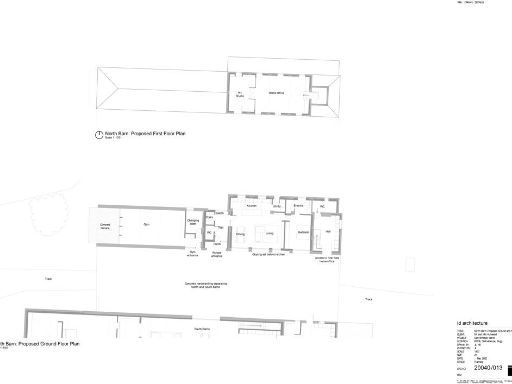
Full planning consent for 5-bed house plus 1-bed annexe (PA/2022/883).
Approximately 3.48 acres of open countryside with long uninterrupted views.
Sold freehold at auction — 10% deposit; up to eight weeks for completion.
Buildings are agricultural/derelict — substantial conversion work required.
Services not apparent on site — buyers must confirm connection costs.
Very slow broadband; excellent mobile signal — impacts remote working.
Single bathroom recorded; internal condition and room layouts unverified.
Secluded hamlet location — limited local services but good nearby schools.
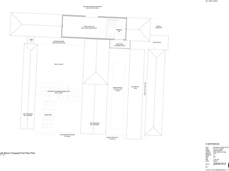
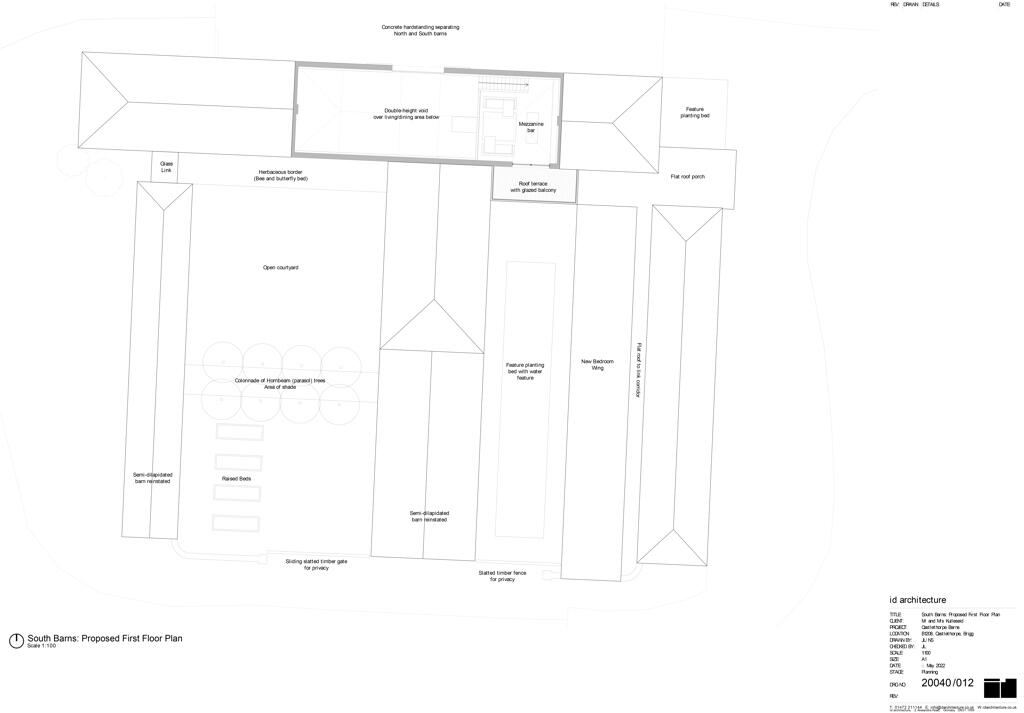
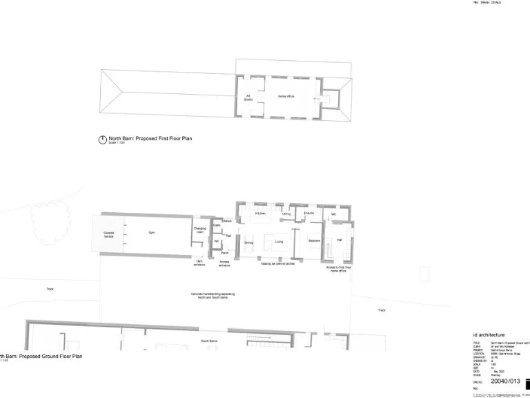
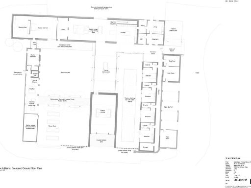
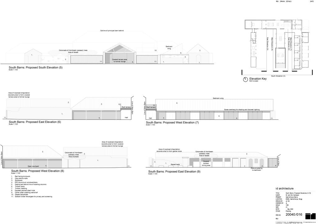
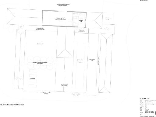
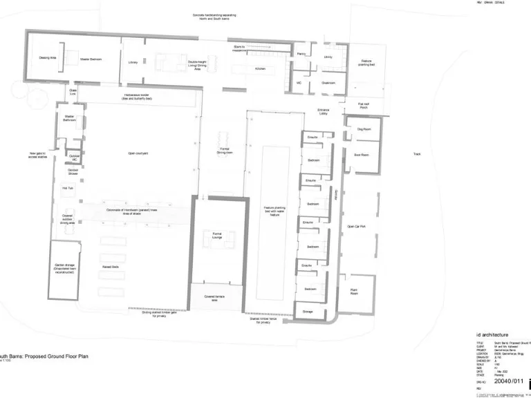
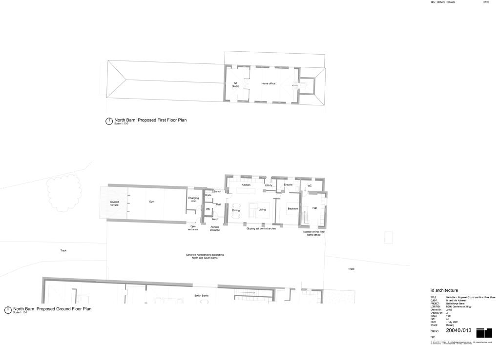
This is a substantial rural redevelopment opportunity: a range of traditional farm buildings with full planning consent (PA/2022/883) to create a 5-bedroom principal house plus a 1-bedroom annexe, set within about 3.48 acres of open countryside. The site offers long, unobstructed views and scope to create a distinctive family home or a lettable annexe in a secluded hamlet setting.

The property will be sold at auction on a freehold basis with vacant possession and requires a 10% deposit on exchange and up to eight weeks for completion. Essential services (mains water, drainage, electricity) are not apparent on site; buyers should obtain firm costed connection details. Broadband is recorded as very slow while mobile signal is excellent — factor communications and connectivity when planning modern living or rental use.

The buildings are essentially agricultural/derelict and will need comprehensive conversion and likely structural and services work. The planning consent is a significant value driver but brings responsibilities: compliance with the approved drawings, potential conditions, and any further local planning or listed-building constraints. This lot is best suited to experienced developers, conversion specialists, or buyers comfortable with rural renovation and the auction purchase process.

Note the practical considerations: the site is remote in an ageing rural neighbourhood classification, crime and deprivation are average, and there is only one bathroom recorded. Prospective bidders should review the legal pack, confirm service connections, and carry out a full survey before bidding.

Property Details

Brochure Descriptions

Image Descriptions

Textual Property Features

Target Audience

AI Tags

Detected Visual Features

Nearby Schools

Nearest Bars And Restaurants

,,,,}

Nearest General Shops

,,}

Nearest Grocery shops

,,}

Nearest Supermarkets

,,}

Nearest Religious buildings

,,}

Nearest Medical buildings

,,,}

Nearest Airports

}

Nearest Leisure Facilities

,,,,}

Nearest Tourist attractions

,,}

Nearest Train stations

,,,,}

Nearest Bus stations and stops

,,,,}

Nearest Hotels

,,}

Tags

Local Market Stats

Similar Properties

Meta

High Res Images

Compatible Images

Low res Images

Thumbnails

Raw Images