DN17 3HZ - 1 bed secluded building plot in Crowle Bank Road, DN17 3HZ

View on Property Piper

Land for sale in The Hideaway, Crowle Bank Road, Althorpe, DN17

Summary - THE HIDEAWAY, CROWLE BANK ROAD DN17 3HZ

1 bed 1 bath Land

Large riverside plot with planning consent and partial works — auction sale, ideal for self-build or investor..
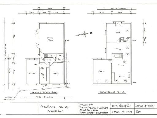
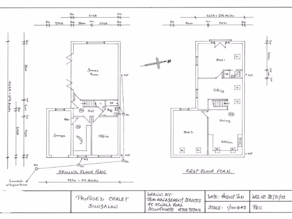
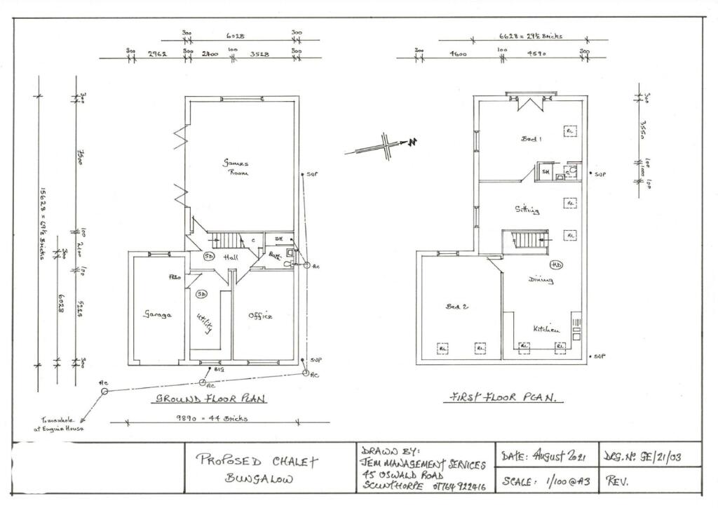
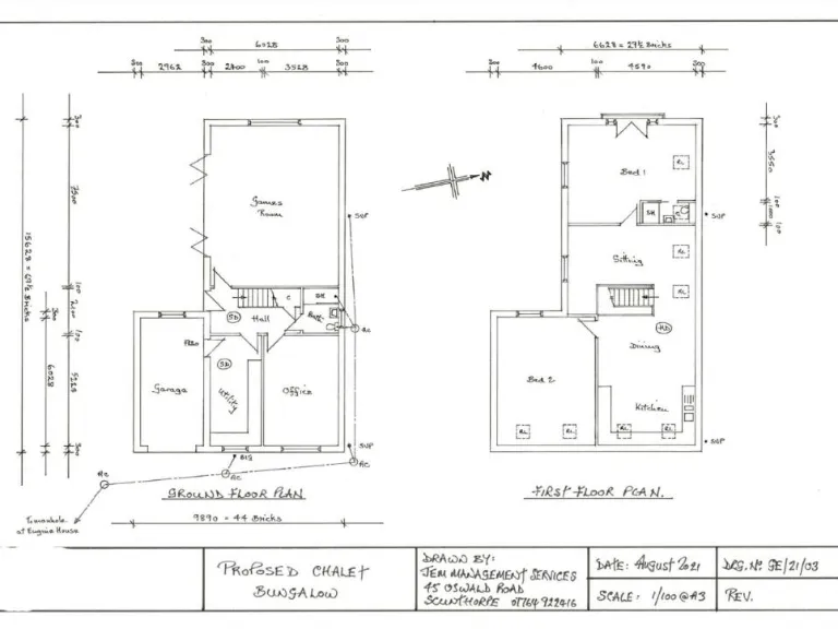
Planning permission granted for 3–4 bed chalet bungalow (Ref: PA/2021/1823)
Footings and brickwork up to first-floor level — works commenced
Large, secluded plot (approx one-third acre) approached via private drive
Newly built garage complete; stable block included with added potential
Site in riverside Althorpe village — rural setting with good access
Medium flood risk — mitigation and insurer checks recommended
Sold by Modern Auction; 4.5% non-refundable reservation fee applies
Layout amendments possible but subject to further planning approval
A substantial, secluded building plot in Althorpe with full planning permission for a 3–4 bedroom detached chalet bungalow (North Lincolnshire Council Ref: PA/2021/1823). Early-stage works have been started — footings and brickwork are up to first-floor level — giving the purchaser a clear head start on a self-build or small development project. A newly built garage and an existing stable block are already on site, adding usable space from day one.

The site sits down a private drive on approximately one-third of an acre, screened by mature hedging and trees for privacy. The position in a quiet riverside village offers a rural lifestyle while remaining within reach of local towns and transport links. There is scope to amend the approved layout subject to local planning consent, useful for buyers wanting a bespoke finish.

Important practical matters: the plot has a medium flood risk, the build is unfinished and will need completion, and sale is by Modern Auction. Bidders must follow the auction process, view the Buyer Information Pack beforehand, and be aware of a non-refundable reservation fee (4.5% of the purchase price, subject to a minimum) and other auction costs. Planning has been granted but any changes require fresh approval.

This is best suited to a developer, investor, or experienced self-builder who values a large, private plot with planning and partial works already in place. The combination of a head-start on construction, included outbuildings, and a desirable rural location represents clear potential — balanced by the responsibilities of completing the build and complying with auction conditions.

Property Details

Brochure Descriptions

Image Descriptions

Textual Property Features

Target Audience

AI Tags

Detected Visual Features

Nearby Schools

Nearest Bars And Restaurants

,,,,}

Nearest General Shops

,,}

Nearest Grocery shops

,,}

Nearest Supermarkets

,,}

Nearest Religious buildings

,,}

Nearest Medical buildings

,,,}

Nearest Airports

}

Nearest Leisure Facilities

,,,,}

Nearest Tourist attractions

,,}

Nearest Train stations

,,,,}

Nearest Bus stations and stops

,,,,}

Nearest Hotels

,,}

Tags

Local Market Stats

Similar Properties

Meta

High Res Images

Compatible Images

Low res Images

Thumbnails

Raw Images