Spacious rural plot with planning approved for a bespoke family home.
Planning consent granted to convert into 4-bed detached dwelling (DC/24/1764)
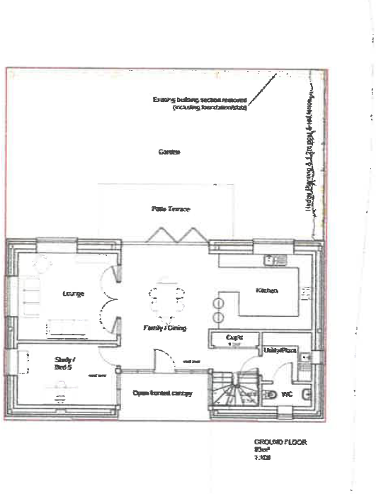
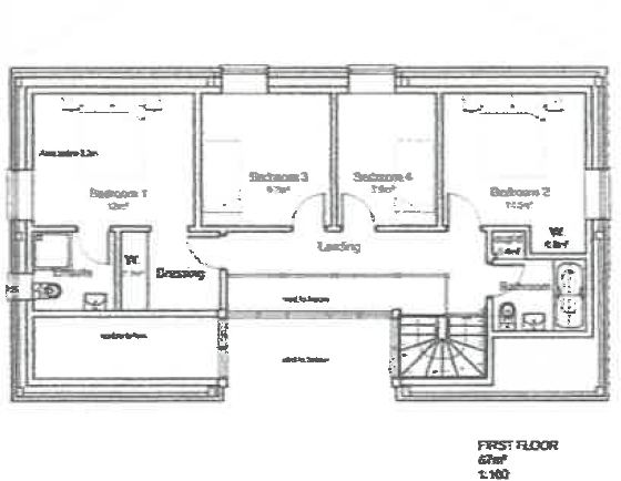
An unusual barn-conversion opportunity on the edge of Henfield with planning consent (ref DC/24/1764) to create a two-storey, four-bedroom detached home of about 1,620 sq ft. The existing precast concrete and corrugated-clad building offers generous internal volume and high ceilings, allowing an open-plan kitchen/dining/lounge arrangement plus study/ground-floor bedroom and utility. The plot is large and semi-rural, with private-lane access, rear garden and front parking — attractive for buyers seeking countryside space close to village amenities.
The site is being sold freehold at a guide price of £350,000. Planning permission is already granted for the conversion, simplifying the route to a finished home. The location benefits from excellent mobile signal, rural views, and nearby schools and woodlands; it suits buyers wanting a bespoke home in a prospering countryside community.
This is a development-for-conversion rather than a ready-made residence. The barn is currently an agricultural structure with corrugated cladding, overgrown edges and an informal unpaved yard; no residential fittings are present. Prospective purchasers should allow for full internal fit-out, insulation, services connection, drainage and landscaping. Broadband speeds are very slow, and access is via a private lane. Buyers should factor conversion costs, specialist contractors and any upgrading required to meet building regs and modern standards.
For a sympathetic conversion the asset offers strong upside: notable plot size, planning in place, flexible internal volume and a semi-rural setting a short distance from Henfield. It will particularly appeal to those prepared to manage a project to create a bespoke family home or high-quality rural dwelling.
Detached house for sale in Littleworth Lane, Horsham, RH13 — £1,000 • 1 bed • 1 bath • 1550 ft²
2 bedroom barn conversion for sale in Church Farm Walk, Upper Beeding, BN44 — £500,000 • 2 bed • 2 bath • 954 ft²
4 bedroom detached house for sale in Sedgwick Park, Horsham, RH13 — £1,250,000 • 4 bed • 2 bath • 2303 ft²
1 bedroom detached house for sale in Henfield Common North, Henfield, BN5 — £300,000 • 1 bed • 1 bath • 3294 ft²
4 bedroom detached house for sale in Cuckfield Road, Ansty, RH17 — £950,000 • 4 bed • 2 bath • 1824 ft²
Property for sale in Ashurst Lane, Plumpton, BN7 — £500,000 • 1 bed • 1 bath • 2395 ft²






























