Design and build your own two‑storey home on serviced north-edge plots.
- Eleven freehold self-build plots, sizes c.207–511 sqm
- Suitable for two-storey detached houses (80–120 sqm approx.)
- Services: foul/surface drainage, water, telecoms, electricity point
- New Soham station ~1.2 miles; easy access to A142/A10/A14
- Purchaser must secure full planning permission; draft to vendor
- Construction completion required within 12 months of start
- Management charge c.£230pa; purchaser responsible for onsite safety
- Plots are infill; limited long-distance views and modest gardens
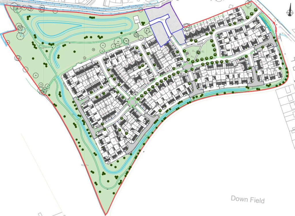
An opportunity to secure one of eleven self-build freehold plots on the northern edge of a new development off Fordham Road, Soham. Plots range from c.207–511 sqm and are sized to accommodate two-storey detached homes of about 80–120 sqm (864–1,217 ft²). Infrastructure provision includes foul and surface water drainage, potable water, telecoms and an electricity connection point; driveways will use permeable paving.
The site benefits from practical commuting links: the new Soham station (c.1.2 miles) provides rail connections to Ely, Cambridge and London, and the A142/A10/A14 are readily accessible by road. Local services include primary and secondary schools (Soham Village College rated Outstanding), shops, medical centre, libraries and regular buses to Cambridge and Newmarket.
Purchasers must obtain full planning permission for their chosen dwelling; the principle of development is already secured under a Section 106 agreement and Reserved Matters approval covers road layout and access. Each buyer must submit a draft planning application to the vendor for approval and complete construction within 12 months of start on site. There is an anticipated annual management charge of approximately £230 and the purchaser is responsible for Health & Safety and any damage caused during build works.
This is best suited to buyers who want control over design and specification — self-builders, small developers or investors comfortable managing a planning process and build programme. It is not for those seeking a completed home: purchasers should be aware of the time, cost and contractual responsibilities involved in delivering a house on a serviced plot.
House for sale in Fordham Road, Ely, Soham, CB7 — £150,000 • 1 bed • 1 bath
House for sale in Fordham Road, Ely, Soham, CB7 — £160,000 • 1 bed • 1 bath
House for sale in Cherry Tree Lane, Ely, Soham, CB7 — £170,000 • 1 bed • 1 bath
House for sale in Cherry Tree Lane, Ely, Soham, CB7 — £170,000 • 1 bed • 1 bath
House for sale in Cherry Tree Lane, Ely, Soham, CB7 — £150,000 • 1 bed • 1 bath
Plot for sale in Cherry Tree Lane, Ely, Soham, CB7 — £150,000 • 1 bed • 1 bath














