BS10 5LP - Plot for sale in Plot | Planning Granted | Southmead, BS10

View on Property Piper

Plot for sale in Plot | Planning Granted | Southmead, BS10

Summary - 382, SOUTHMEAD ROAD BS10 5LP

3 bed 3 bath Plot

### Standout Features:
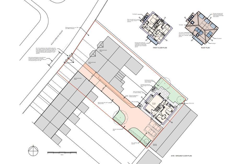
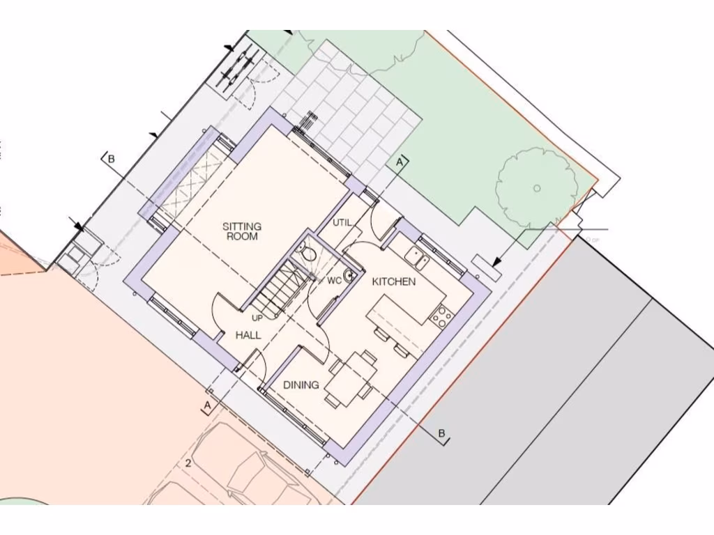
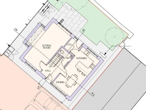
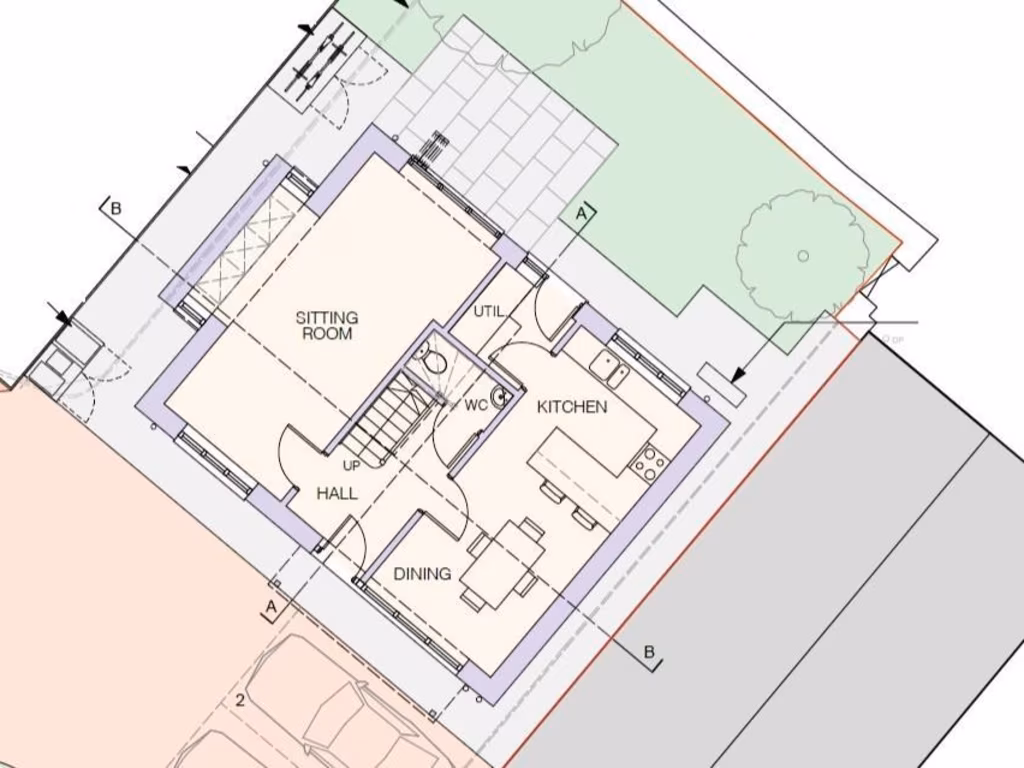
- **Freehold building plot** with planning granted for a ***3-bedroom detached house***.
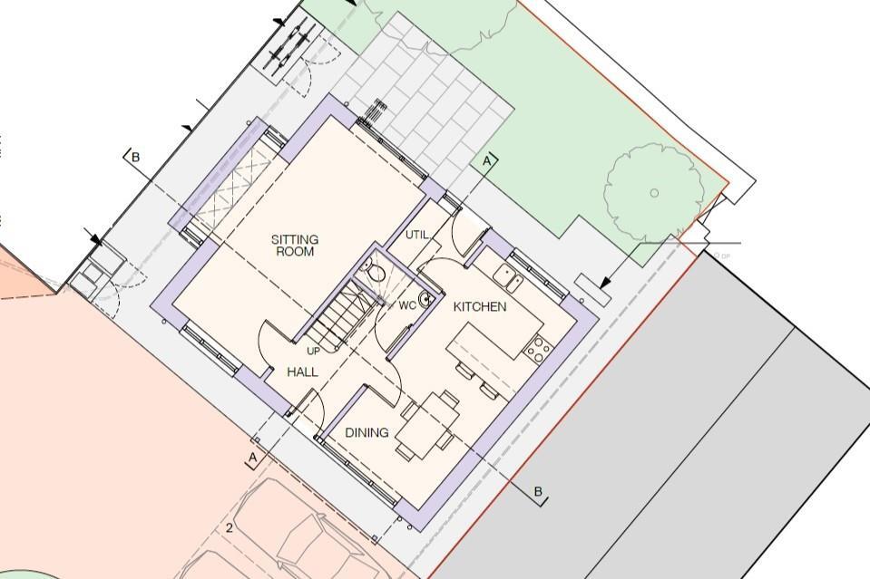
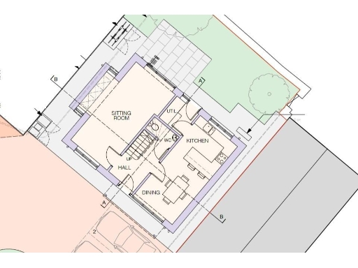
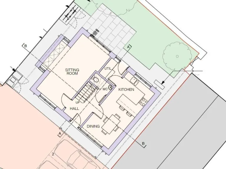
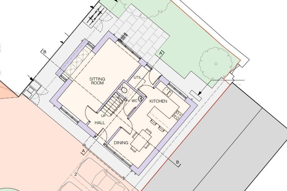
- Approved design includes ***2 reception rooms*** and ***3 bathrooms***, totaling ***1157 sq ft*** of living space.
- Located in a prime area near ***Southmead Hospital***, ideal for professional rentals or family living.
- Enclosed **garden** and **off-street parking** for **2 vehicles**.
- ***Environmental sustainability*** features with alternative energy sources included in the design.

### Summary:
Seize the opportunity to invest in this freehold building plot located at the rear of 382-386 Southmead Road, Bristol. With planning permission already secured for a modern, detached 3-bedroom house, this property offers a promising development project. The contemplated design spans approximately 1157 sq ft, featuring two sizable reception areas and three bathrooms—ideal for family living or rental for professionals.

You’ll benefit from the enclosed garden, providing a private retreat, and parking for two cars, making it convenient for tenants or family life. Positioned in close proximity to Southmead Hospital, this area has high rental potential, particularly from medical professionals, and the development is set among local amenities that enhance day-to-day convenience. While the building plot is already a blank canvas, prospective buyers should consider the average crime rate in the vicinity and the potential need for ongoing maintenance once built. Don’t miss out on this unique opportunity; the auction will take place on July 23rd, 2025—time to envision your future here!

Property Details

Brochure Descriptions

Image Descriptions

Floorplan Description

Rooms

Textual Property Features

Detected Visual Features

Nearby Schools

Nearest Bars And Restaurants

,,,,}

Nearest General Shops

,,}

Nearest Grocery shops

,,}

Nearest Supermarkets

,,}

Nearest Religious buildings

,,}

Nearest Medical buildings

,,,}

Nearest Airports

}

Nearest Leisure Facilities

,,,,}

Nearest Tourist attractions

,,}

Nearest Train stations

,,,,}

Nearest Bus stations and stops

,,,,}

Nearest Hotels

,,}

Tags

Local Market Stats

AirBnB Data

Similar Properties

Meta

High Res Images

Compatible Images

Low res Images

Thumbnails

Raw Images

High Res Floorplan Images

Compatible Floorplan Images

Low res Floorplan Images

FloorplanImages Thumbnail

Raw Floorplan Images