BS7 0XR - Land for sale in St. Lucia Crescent, Horfield, Bristol, BS7

View on Property Piper

Land for sale in St. Lucia Crescent, Horfield, Bristol, BS7

Summary - 23 St. Lucia Crescent BS7 0XR

1 bed 1 bath Land

315m² freehold redevelopment plot with planning for replacement bungalow, near Southmead Hospital..
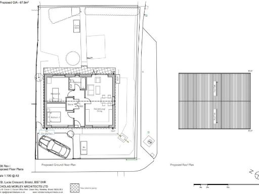
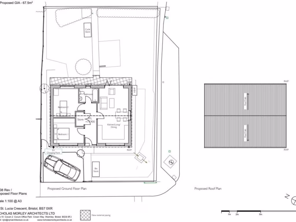
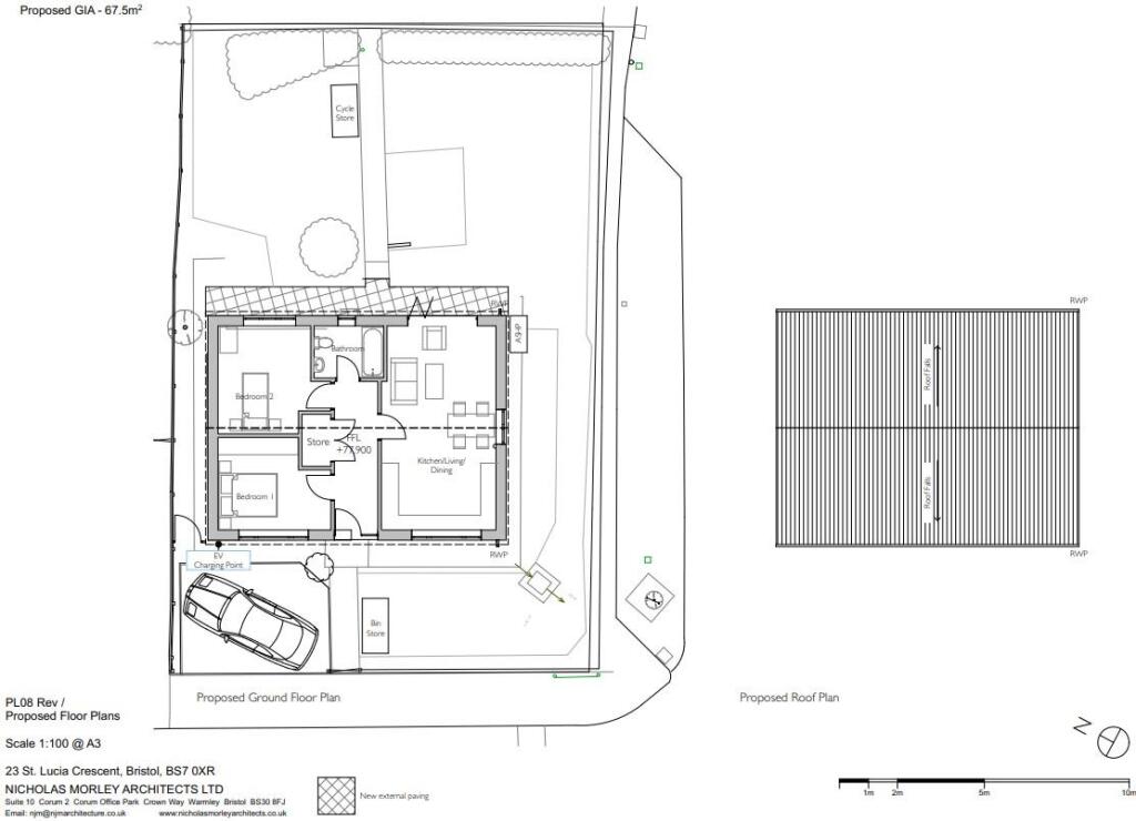
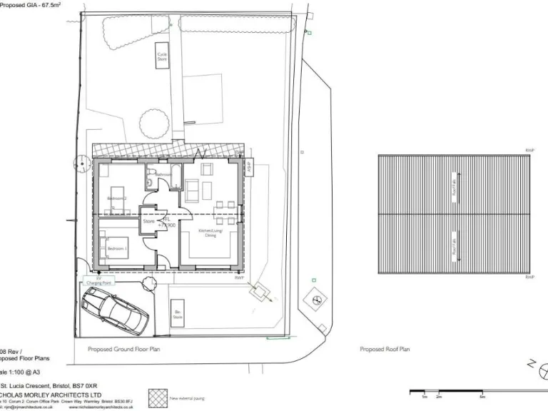
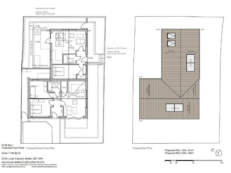
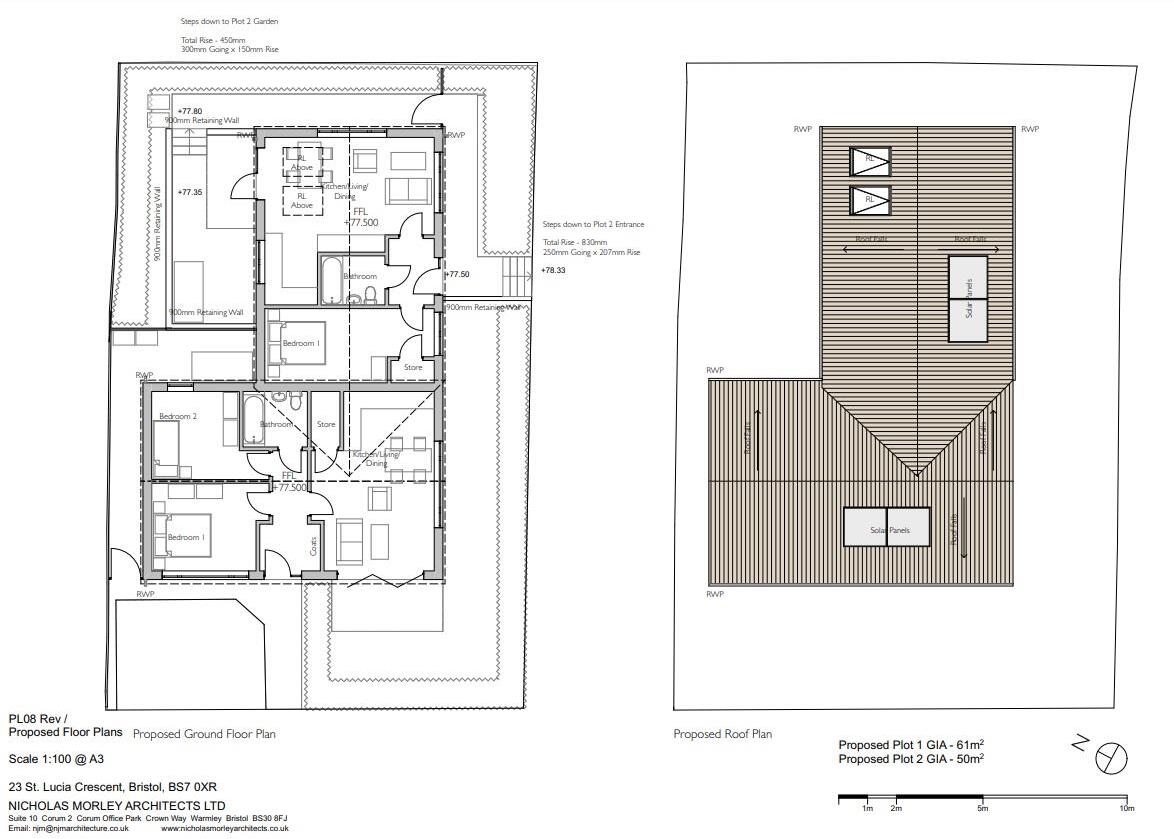
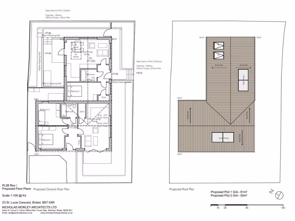
Full planning granted for replacement dwelling (ref: 25/11515/F).
A rare development plot in Horfield with full planning (ref: 25/11515/F) to replace the existing prefab bungalow. The site extends to about 315m² and includes a driveway with off‑street parking, making it straightforward to deliver the consented replacement dwelling. Proximity to Southmead Hospital and recent local redevelopment support demand from builders, investors and owner‑occupiers seeking a single new house in a well‑connected city suburb.

The existing building is a 1960s prefabricated bungalow with assumed system walls and no insulation; energy performance is low (EPC G) and heating is electric storage heaters. These factors make demolition or substantial retrofit likely; the granted planning reduces one execution risk, but buyers should note the previous consent for two bungalows has lapsed and alternative schemes would need re‑submission and approval.

This lot will be sold at auction on 16 October 2025. Purchasers must budget for the buyer’s premium and preliminary deposit, and allow for auction timescales. The area shows signs of uplift but also records higher local crime and relative deprivation, which may affect end‑user rental demand or resale values. Legal and technical due diligence is recommended before bidding.

Overall this is a straightforward, freehold redevelopment opportunity on a decent‑sized corner plot in a commuter area. It suits small builders, developers or investors prepared to work with the constraints of the existing structure, energy upgrades and the local market context.

Property Details

Brochure Descriptions

Image Descriptions

Floorplan Description

Rooms

Textual Property Features

Target Audience

AI Tags

Detected Visual Features

EPC Details

Nearby Schools

Nearest Bars And Restaurants

,,,,}

Nearest General Shops

,,}

Nearest Grocery shops

,,}

Nearest Supermarkets

,,}

Nearest Religious buildings

,,}

Nearest Medical buildings

,,,}

Nearest Airports

}

Nearest Leisure Facilities

,,,,}

Nearest Tourist attractions

,,}

Nearest Train stations

,,,,}

Nearest Bus stations and stops

,,,,}

Nearest Hotels

,,}

Tags

Local Market Stats

AirBnB Data

Similar Properties

Meta

High Res Images

Compatible Images

Low res Images

Thumbnails

Raw Images

High Res Floorplan Images

Compatible Floorplan Images

Low res Floorplan Images

FloorplanImages Thumbnail

Raw Floorplan Images