High-yield HMO conversion opportunity near Bristol city centre.
Freehold corner mixed-use building with prominent road frontage
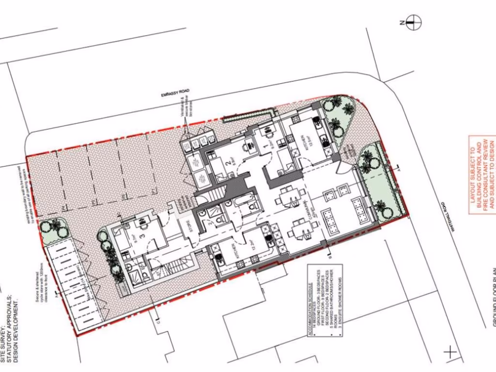
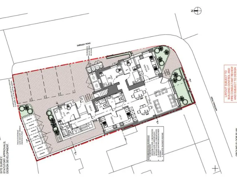
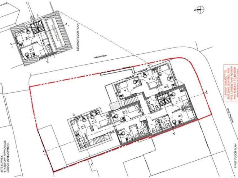
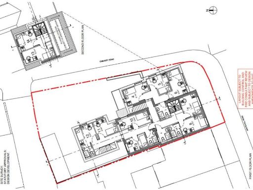
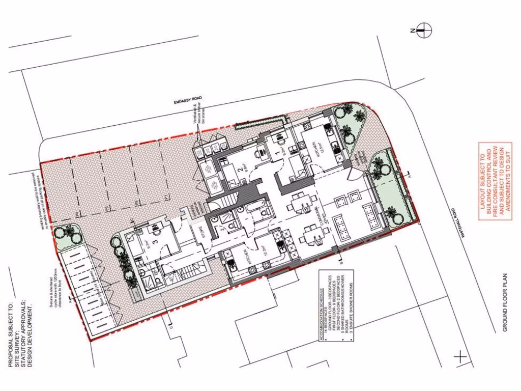
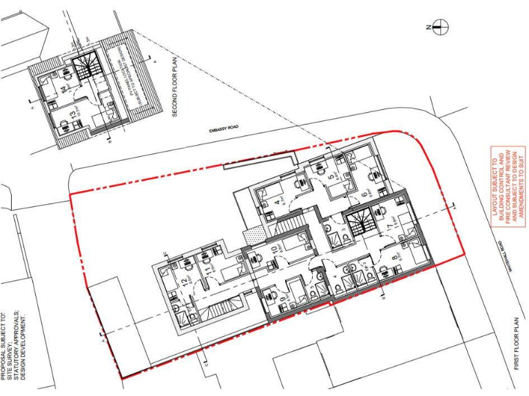
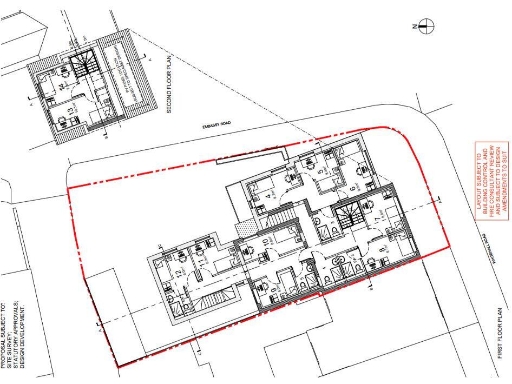
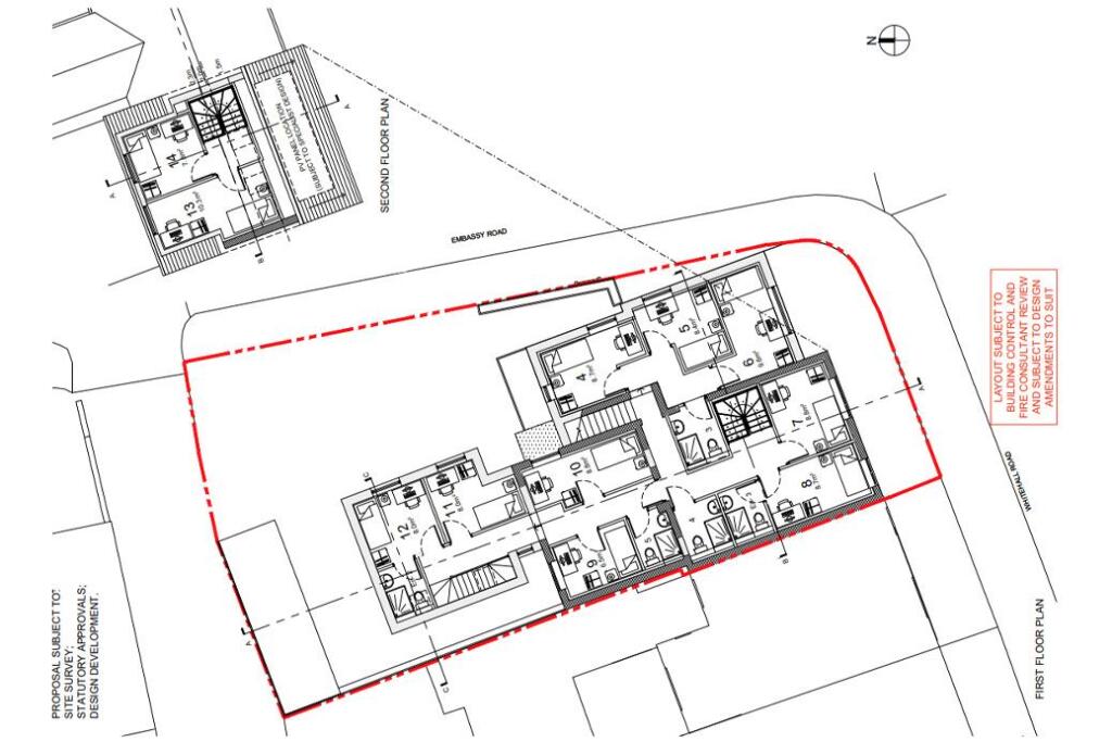
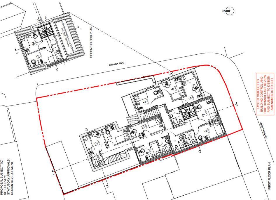
Planning allowed on appeal for 14-bed, 8-bath HMO (c.3,218 sq ft)
Rental appraisal indicates scope for c.£126k annual income
Four off-street parking spaces plus bike/bin stores included
Auction sale — buyer’s premium payable and 8‑week completion
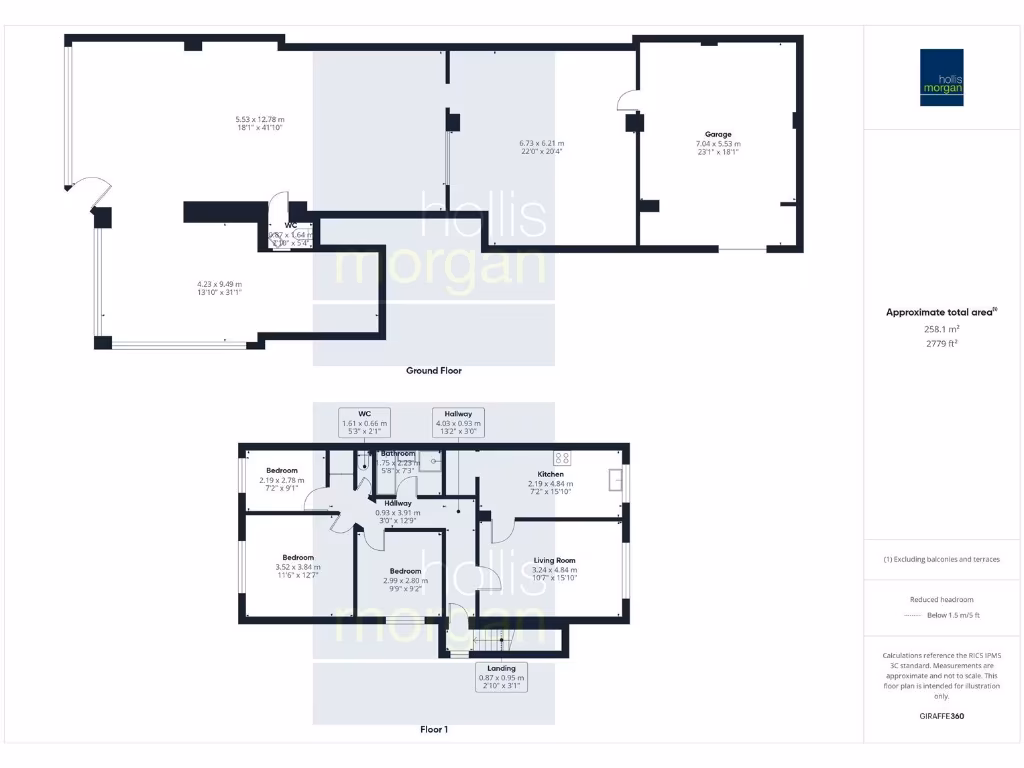
Building c.1930s; solid brick walls, likely needs insulation upgrades
Double glazing pre‑2002; heating mains gas boiler and radiators
Area has above-average crime; buyers should review legal pack
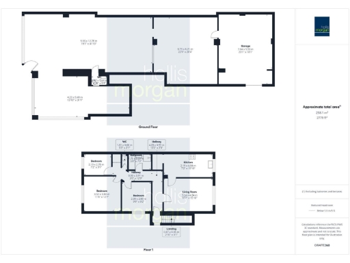
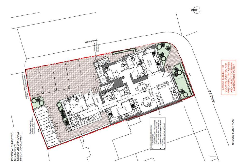
A substantial freehold corner building on Whitehall Road offered as a development opportunity with planning allowed on appeal for a 14-bedroom, 8-bath HMO (c.3,218 sq ft). The scheme includes two communal kitchens, a large reception area, four off‑street parking spaces and provision for bike/bin stores — giving clear scope for high-yield multi-let income (rental appraisal suggests c.£126k pa). The site sits within easy reach of Bristol city centre and local amenities, making it attractive to professional sharers or purpose-built HMO operators.
This is an auction lot, sold with vacant possession and an extended eight-week completion period. Buyers should note a compulsory buyer’s premium payable on exchange and that the sale process requires registration and deposit terms typical of auction purchases. The building dates from c.1930–49 with solid brick walls (no cavity insulation assumed) and double glazing installed prior to 2002; the fabric will likely need thermal and services upgrading during conversion.
Practical positives include freehold tenure, off‑street parking for four cars, prior approval for a ground-floor flat as an alternative use, fast broadband and excellent mobile signal. Important cautions: the property sits in an area with above-average crime, some retrofit work and possible insulation/energy upgrades will be required, and the HMO consent was granted on appeal after an earlier refusal — full planning details and drawings should be checked in the legal pack before bidding.
Commercial property for sale in 14 BED + 8 BATH HMO | £126k pa | BS5 — £435,000 • 14 bed • 8 bath • 3218 ft²
Commercial property for sale in HMO | £92,500 pa | BS7 — £825,000 • 10 bed • 8 bath • 1797 ft²
10 bedroom terraced house for sale in HMO | £92,500 pa | BS7 — £775,000 • 10 bed • 8 bath • 1833 ft²
Plot for sale in Hmo | £54K | Bonus Plot | Fishponds, BS15 — £525,000 • 6 bed • 3 bath • 1165 ft²
10 bedroom terraced house for sale in Hmo / Family Home | Redland, BS6 — £995,000 • 10 bed • 3 bath • 3226 ft²
Commercial property for sale in Freehold Mixed Use | £56K Pa, BS6 — £475,000 • 5 bed • 4 bath • 2184 ft²






































































































































































































































